18 750 $/мес
25  $/м²
торговое помещение, помещение свободного назначения, помещение для оказания услуг, офисное помещение
750 м²
3 нед. назад
3 нед. назад
11 (сегодня 0, вчера 0)
Описание
Оренда окремостоячої будівлі 750 м²
Печерськ, вул. Болсуновська, 4
Орендна ставка: 25 $/м²

Без комісії для орендаря. Представник власника.

Стан та інженерія:
Будівля підготовлена до експлуатації, по всій будівлі виконано:
- повну інженерію
- електрику
- вентиляцію
- кондиціонування
- пожежну безпеку
- встановлено ліфт

Опції для орендаря:

1. Завершення ремонту під ключ (під зразок 3-го поверху)
Термін завершення: 1 місяць.

2. Можемо завершити ремонт усієї будівлі у такому ж стилі але з побажаннями орендаря:
• узгодження дизайну
• підбір матеріалів
• підлога, світло, стіни
• санвузли
• підвал (кабінет, спортзал або зона відпочинку)

Термін завершення: від 1 місяця.

3. Передаємо в поточному стані та погоджуємо канікули.


Окремостояча будівля на Печерську — це не про квадратні метри.
Це про контроль, автономність і статус.


Функціональне призначення. Підходить для:
- приватної клініки з розділенням потоків
- штаб-квартири компанії
- IT або R&D-хабу
- юридичного чи консалтингового офісу
- освітнього або аналітичного центру


Основні характеристики:
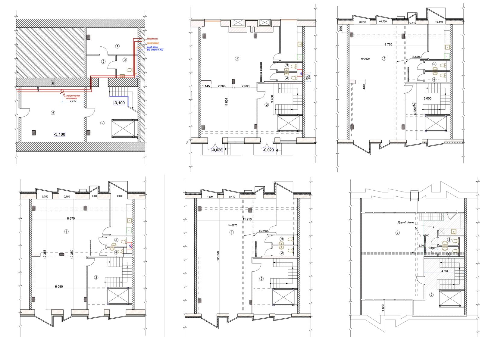
Загальна площа: 750 м²
Поверховість: 5 поверхів + повноцінний підвал
2 окремі фасадні входи
Ліфт, що спускається у підвал
Закрита територія
Приватні паркомісця (дефіцит для Печерська)


Підвал:
- сухий, утеплений
- ліфт спускається безпосередньо у підвал
- можливий спортзал, офіс и укритті, технічні або складські приміщення, укриття

Паркінг:
2 власні паркомісця
можливість оренди + 5 додаткових

Локація:
Печерськ — ділове ядро міста
поруч бульвар Миколи Міхновського
представницьке бізнес-оточення
зручний під’їзд
висока привабливість для медицини та бізнесу


Комерційні умови:
Орендна ставка: 25 $/м2
OPEX / експлуатаційні витрати: додатково ± 1$/м2
Комунальні платежі: за фактом споживання
Гарантійний депозит: 2 місяці
Термін договору: від 1 року


Додатково
Можливий продаж будівлі за ціною 2 500 000 $.
Пропозиція без комісії для орендаря / покупця.
Детали
Объект коммерческой недвижимости, Класс A, Отдельно стоящее здание, Офисное помещение, Помещение для оказания услуг, Помещение свободного назначения, Торговое помещение. Объект на 0, 1, 2, 3, 4, 5 этажах, В здании 5 этажей. Проведены черные трубы. Подвал расположен под зданием. Есть охраняемая автопарковка. Без комиссии
Property Partners
Верифицированный профиль
Gold partner
15
Лет опыта
4
Года на сайте
Активных объявлений 25
Эксклюзивных объектов 1
Рекламная активность 343
Последний визит на сайт сегодня
Рекомендовать
Адрес
Ваша жалоба принята!
Выберите способ подтверждения
Чтобы ваша рекомендация была засчитана, подтвердите свою личность
* Личные данные не будут отображаться на сайте и будут служить только для подтверждения личности.
Как верифицироваться через Дію?
Считайте QR-код сканером в приложении Действие и подтвердите авторизацию Действие.
QR-код будет действителен еще 02:00
Как верифицироваться через Bankid?
Верификация BankID откроется в новом окне. Если страница верификации не открылась, значит окно было заблокировано вашим браузером.
Чтобы разрешить открытие окна, выполните следующие шаги:

1. Проверьте адресную строку браузера на наличие сообщения об ошибке или значка блокировки. Нажмите на него.
2. Если у вас установлен блокировщик всплывающих окон, временно отключите его для этого сайта.
3. Проверьте настройки вашего браузера и убедитесь, что блокировка всплывающих окон отключена или настроена на разрешение открытия данного окна.

Если проблема остается нерешенной, свяжитесь с нашей службой поддержки.
Как верифицироваться через Дію?
Верификация Дія откроется в новом окне. Если страница верификации не открылась, значит окно было заблокировано вашим браузером.
Чтобы разрешить открытие окна, выполните следующие шаги:

1. Проверьте адресную строку браузера на наличие сообщения об ошибке или значка блокировки. Нажмите на него.
2. Если у вас установлен блокировщик всплывающих окон, временно отключите его для этого сайта.
3. Проверьте настройки вашего браузера и убедитесь, что блокировка всплывающих окон отключена или настроена на разрешение открытия данного окна.

Если проблема остается нерешенной, свяжитесь с нашей службой поддержки.
Поздравляем!
Рекомендация засчитана!
В скором времени рекомендация появится на странице риелтора.
Рекомендация не засчитана.
Вы уже оставляли рекомендацию данному риелтору.
В пропозиції є незбережені дані.