3 321 475 $
2 500  $/м²
Нова Дарниця, 132
торговое помещение, помещение свободного назначения, помещение для оказания услуг, офисное помещение, банковское помещение
1328.59 м²
1 нед. назад
6 мес. назад
41 (сегодня 0, вчера 0)
Описание
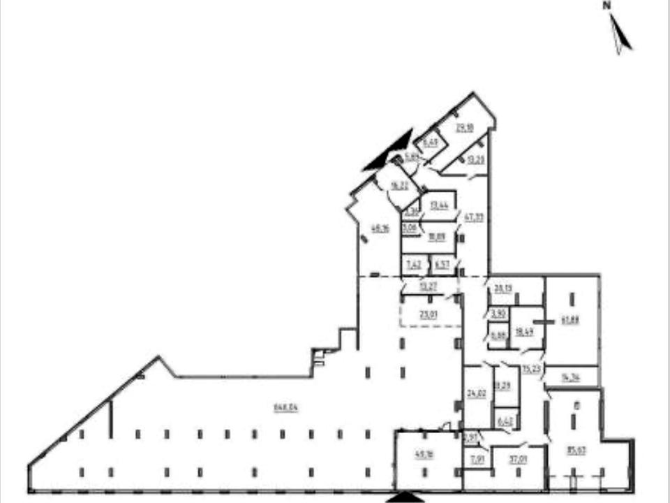
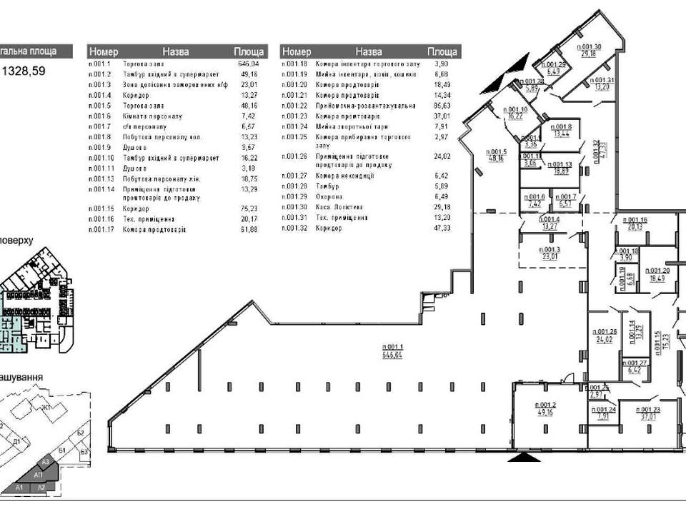
Об’єкт: комерційне приміщення — планування в ЖК Brother

Площа: 1328.59 м²

Поверх: перший

Розташування: ЖК Brother — сучасний житловий комплекс, що будується / будується / в процесі продажу або здачі в експлуатацію.

Ціна: 36 153 349 грн

Сильні сторони

Достатня площа (1328.59 м²) — гарний розмір для шоуруму, офісу, представництва, салону, або ретейлу вищого рівня.

Нове планування — часто дає можливість власнику вигідно адаптувати (ремонт/внутрішнє наповнення) під вимоги орендаря.

ЖК Brother — сучасний комплекс, ймовірно з новими мешканцями / майбутнім потоком, що підвищує потенціал попиту.
Детали
Объект коммерческой недвижимости, Класс A, Помещение в жилом здании, Незавершенное здание, Банковское помещение, Офисное помещение, Помещение для оказания услуг, Помещение свободного назначения, Торговое помещение. Объект на 1 этаже, В здании 8 этажей. Без комиссии
THE Capital
Верифицированный профиль
PRO аккаунт
Професійний акаунт
Platinum partner
2
Года опыта
8
Месяцев на сайте
Активных объявлений 552
Эксклюзивных объектов 0
Рекламная активность 19412
Последний визит на сайт сегодня
Рекомендовать
Адрес
Киев, Нова Дарниця, 132, Дарницкий р-н
Ваша жалоба принята!
Выберите способ подтверждения
Чтобы ваша рекомендация была засчитана, подтвердите свою личность
* Личные данные не будут отображаться на сайте и будут служить только для подтверждения личности.
Как верифицироваться через Дію?
Считайте QR-код сканером в приложении Действие и подтвердите авторизацию Действие.
QR-код будет действителен еще 02:00
Как верифицироваться через Bankid?
Верификация BankID откроется в новом окне. Если страница верификации не открылась, значит окно было заблокировано вашим браузером.
Чтобы разрешить открытие окна, выполните следующие шаги:

1. Проверьте адресную строку браузера на наличие сообщения об ошибке или значка блокировки. Нажмите на него.
2. Если у вас установлен блокировщик всплывающих окон, временно отключите его для этого сайта.
3. Проверьте настройки вашего браузера и убедитесь, что блокировка всплывающих окон отключена или настроена на разрешение открытия данного окна.

Если проблема остается нерешенной, свяжитесь с нашей службой поддержки.
Как верифицироваться через Дію?
Верификация Дія откроется в новом окне. Если страница верификации не открылась, значит окно было заблокировано вашим браузером.
Чтобы разрешить открытие окна, выполните следующие шаги:

1. Проверьте адресную строку браузера на наличие сообщения об ошибке или значка блокировки. Нажмите на него.
2. Если у вас установлен блокировщик всплывающих окон, временно отключите его для этого сайта.
3. Проверьте настройки вашего браузера и убедитесь, что блокировка всплывающих окон отключена или настроена на разрешение открытия данного окна.

Если проблема остается нерешенной, свяжитесь с нашей службой поддержки.
Поздравляем!
Рекомендация засчитана!
В скором времени рекомендация появится на странице риелтора.
Рекомендация не засчитана.
Вы уже оставляли рекомендацию данному риелтору.
В пропозиції є незбережені дані.