3 321 475 $
2 500  $/м²
Нова Дарниця, 132
торгівельне приміщення, приміщення вільного призначення, приміщення для надання послуг, офісне приміщення, банківське приміщення
1328.59 м²
1 тиж. тому
6 міс. тому
41 (сьогодні 0, вчора 0)
Опис
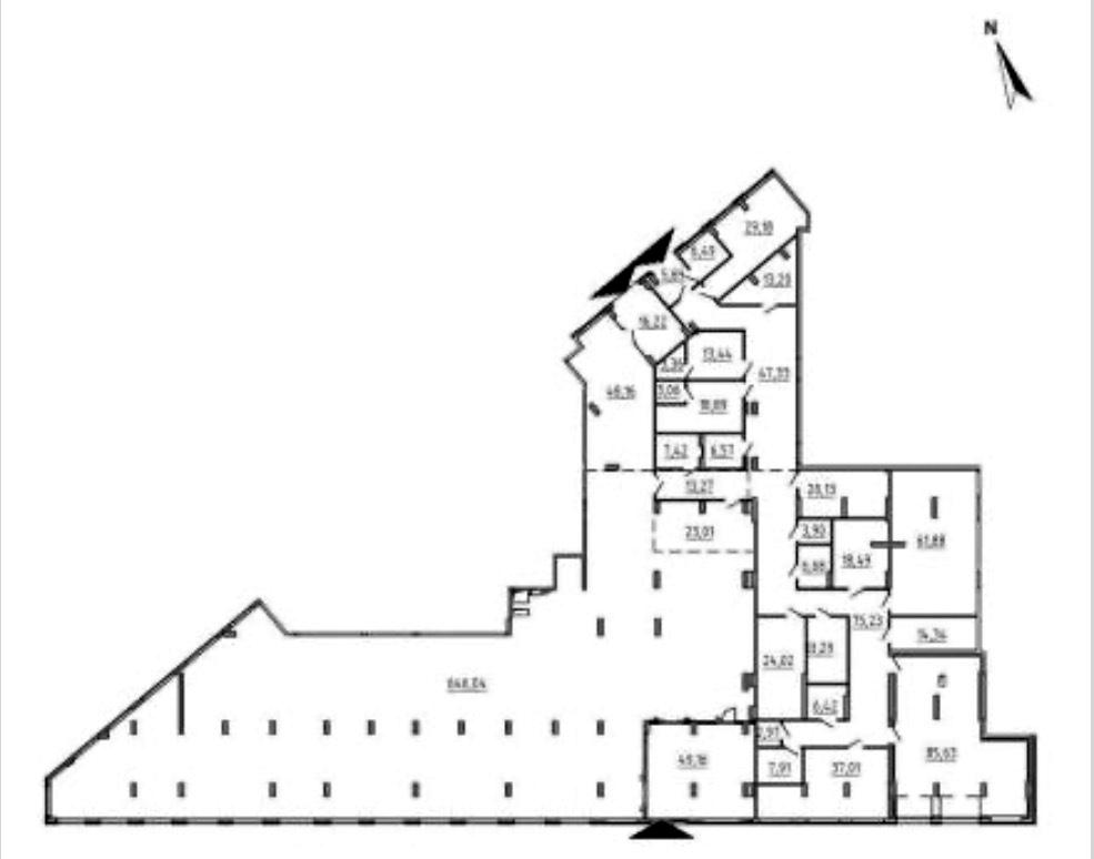
Об’єкт: комерційне приміщення — планування в ЖК Brother

Площа: 1328.59 м²

Поверх: перший

Розташування: ЖК Brother — сучасний житловий комплекс, що будується / будується / в процесі продажу або здачі в експлуатацію.

Ціна: 36 153 349 грн

Сильні сторони

Достатня площа (1328.59 м²) — гарний розмір для шоуруму, офісу, представництва, салону, або ретейлу вищого рівня.

Нове планування — часто дає можливість власнику вигідно адаптувати (ремонт/внутрішнє наповнення) під вимоги орендаря.

ЖК Brother — сучасний комплекс, ймовірно з новими мешканцями / майбутнім потоком, що підвищує потенціал попиту.
Деталі
Об'єкт комерційної нерухомості, Клас A, Приміщення в житловому будинку, Незавершена будівля, Банківське приміщення, Офісне приміщення, Приміщення для надання послуг, Приміщення вільного призначення, Торгівельне приміщення. Об'єкт на 1 поверсі, У будівлі 8 поверхів. Без комісії
THE Capital
Верифікований профіль
PRO аккаунт
Професійний акаунт
Platinum partner
2
Роки досвіду
8
Місяців на сайті
Активних оголошень 552
Ексклюзивних об'єктів 0
Рекламна активність 19412
Останній візит на сайт сьогодні
Рекомендувати
Адреса
Київ, Нова Дарниця, 132, Дарницький р-н
Вашу скаргу прийнято!
Оберіть спосіб підтвердження
Щоб вашу рекомендацію було зараховано, підтвердіть свою особистість
* Особисті дані не відображатимуться на сайті та слугуватимуть лише для підтвердження особистості.
Як верифікуватись через Дію?
Зчитайте QR-код сканером у застосунку Дія й підтвердьте авторизацію Дія.Підписом
QR-код буде дійсний ще 02:00
Як верифікуватись через Bankid?
Верифікація BankID відкриється у новому вікні. Якщо сторінка верифікації не відкрилася, вікно було заблоковане вашим браузером.
Щоб дозволити відкриття вікна, виконайте такі кроки:

1. Перевірте адресний рядок браузера на повідомлення про помилку або піктограму блокування. Натисніть на нього.
2. Якщо у вас встановлено блокувальник спливаючих вікон, тимчасово відключіть його для цього сайту.
3. Перевірте налаштування вашого браузера і переконайтеся, що блокування спливаючих вікон вимкнено або налаштовано на дозвіл відкриття цього вікна.

Якщо проблема залишається невирішеною, зверніться до нашої служби підтримки.
Як верифікуватись через Дію?
Верифікація Дія відкриється у новому вікні. Якщо сторінка верифікації не відкрилася, вікно було заблоковане вашим браузером.
Щоб дозволити відкриття вікна, виконайте такі кроки:

1. Перевірте адресний рядок браузера на повідомлення про помилку або піктограму блокування. Натисніть на нього.
2. Якщо у вас встановлено блокувальник спливаючих вікон, тимчасово відключіть його для цього сайту.
3. Перевірте налаштування вашого браузера і переконайтеся, що блокування спливаючих вікон вимкнено або налаштовано на дозвіл відкриття цього вікна.

Якщо проблема залишається невирішеною, зверніться до нашої служби підтримки.
Вітаємо!
Рекомендацію зараховано!
Незабаром рекомендація зʼявиться на сторінці рієлтора.
Рекомендацію не зараховано.
Ви вже залишали рекомендацію даному рієлтору.
В пропозиції є незбережені дані.