1
115 000 $
1 237
$/м²
Урловская ул., 34
Утеплена панель
2010 год постройки
сегодня
10 мес. назад
552 (сегодня 2,
вчера 4)
Описание
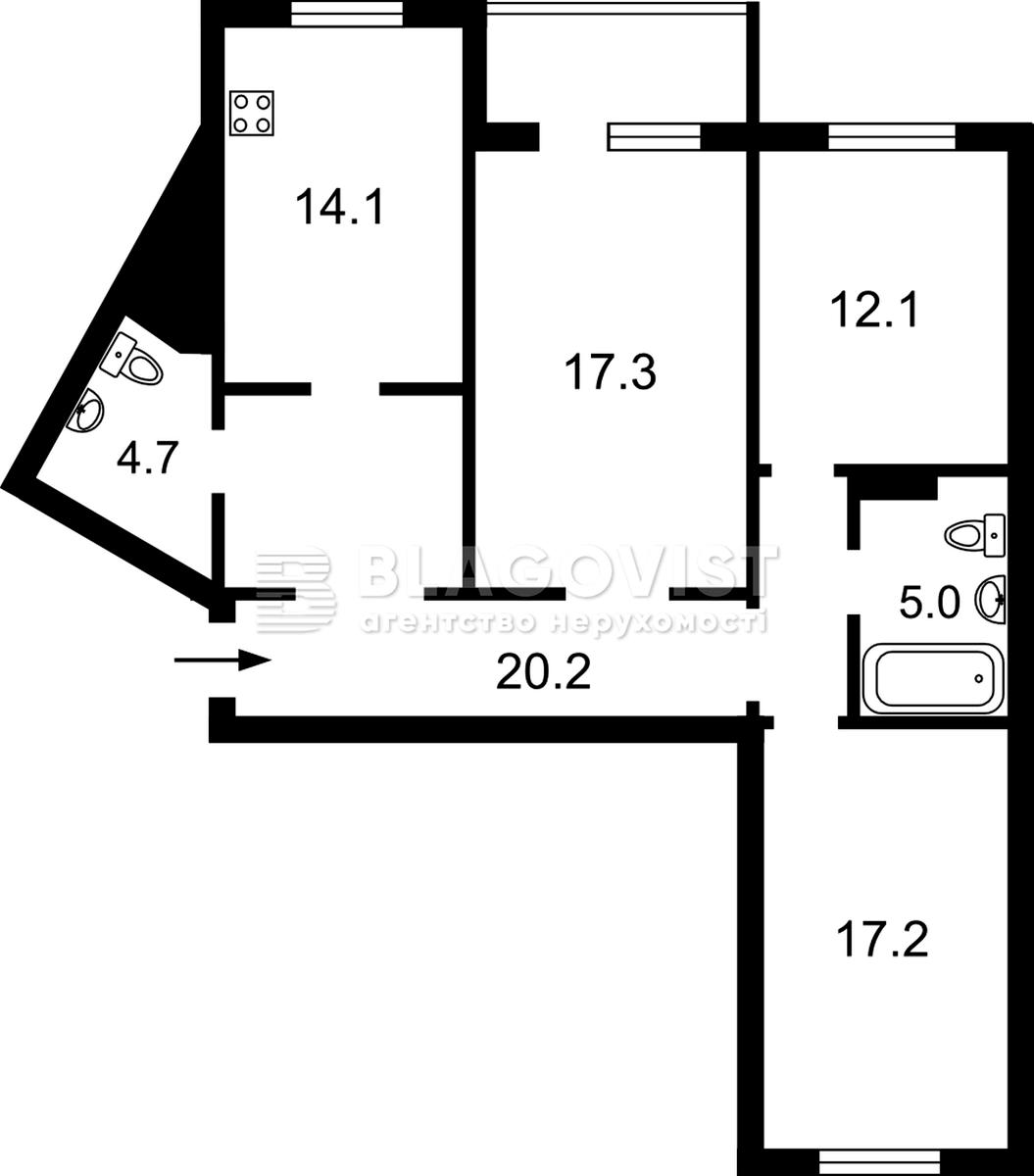
Продаж просторої 3-кімнатної квартири на Осокорках, вулиця Урлівська, 34
Пропонується до продажу світла та функціональна 3-кімнатна квартира в одному з найкомфортніших районів Лівого берега - Осокорки, Позняки
Будинок 2012 року (серія КТУ), сучасний термобудинок із керамзито-бетонними стінами та залізобетонними перекриттями. Охайні під’їзди, консьєрж, кодовий замок, 2 швидкісні ліфти. Встановлений генератор - ліфти та водопостачання працюють навіть під час відключень.
Про квартиру:
* 93 м2
* розташована на 21/25 поверсі (чудовий вид)
* двостороння
* зручне планування: 3 окремі кімнати
* 2 санвузли
* балкон
* косметичний ремонт
* укомплектована меблями та технікою
Інфраструктура та локація:
* метро Осокорки та Позняки — зручне сполучення
* поруч озеро Жандарка — ідеальне місце для прогулянок
* магазини, супермаркети, школи, садочки — все поруч
* зупинки громадського транспорту (маршрути 177, 577)
Будинок обслуговується ОСББ, є безкоштовна парковка біля будинку.
Ідеальний варіант для сім’ї або інвестиції під оренду.
Пропонується до продажу світла та функціональна 3-кімнатна квартира в одному з найкомфортніших районів Лівого берега - Осокорки, Позняки
Будинок 2012 року (серія КТУ), сучасний термобудинок із керамзито-бетонними стінами та залізобетонними перекриттями. Охайні під’їзди, консьєрж, кодовий замок, 2 швидкісні ліфти. Встановлений генератор - ліфти та водопостачання працюють навіть під час відключень.
Про квартиру:
* 93 м2
* розташована на 21/25 поверсі (чудовий вид)
* двостороння
* зручне планування: 3 окремі кімнати
* 2 санвузли
* балкон
* косметичний ремонт
* укомплектована меблями та технікою
Інфраструктура та локація:
* метро Осокорки та Позняки — зручне сполучення
* поруч озеро Жандарка — ідеальне місце для прогулянок
* магазини, супермаркети, школи, садочки — все поруч
* зупинки громадського транспорту (маршрути 177, 577)
Будинок обслуговується ОСББ, є безкоштовна парковка біля будинку.
Ідеальний варіант для сім’ї або інвестиції під оренду.
Детали
В квартире 3 комнаты, Технологія будівництва - Утеплена панель. Планировка комнат Раздельная. Газа нет. Есть балкон. В квартире есть Кабельное ТВ, Кондиционер, Стиральная машина, Ванна, Холодильник, Посудомойная машина. Дом построен в 2010 году. Общее состояние квартиры - С ремонтом. Горячая вода - электрический бойлер. Количество санузлов: 2. Интернет беспроводной. Работает без света - вода, отопление, интернет, лифт. Комиссия за услуги 5 %
В квартире есть
История изменения цены
| 18.12.2025 | - 2 000 $ | 115 000 $ |
| 09.07.2025 | 117 000 $ |


