Повна Енергонезалежність дома! Сонячна електростанція на даху.
Автономне живлення квартири на 15 квт.
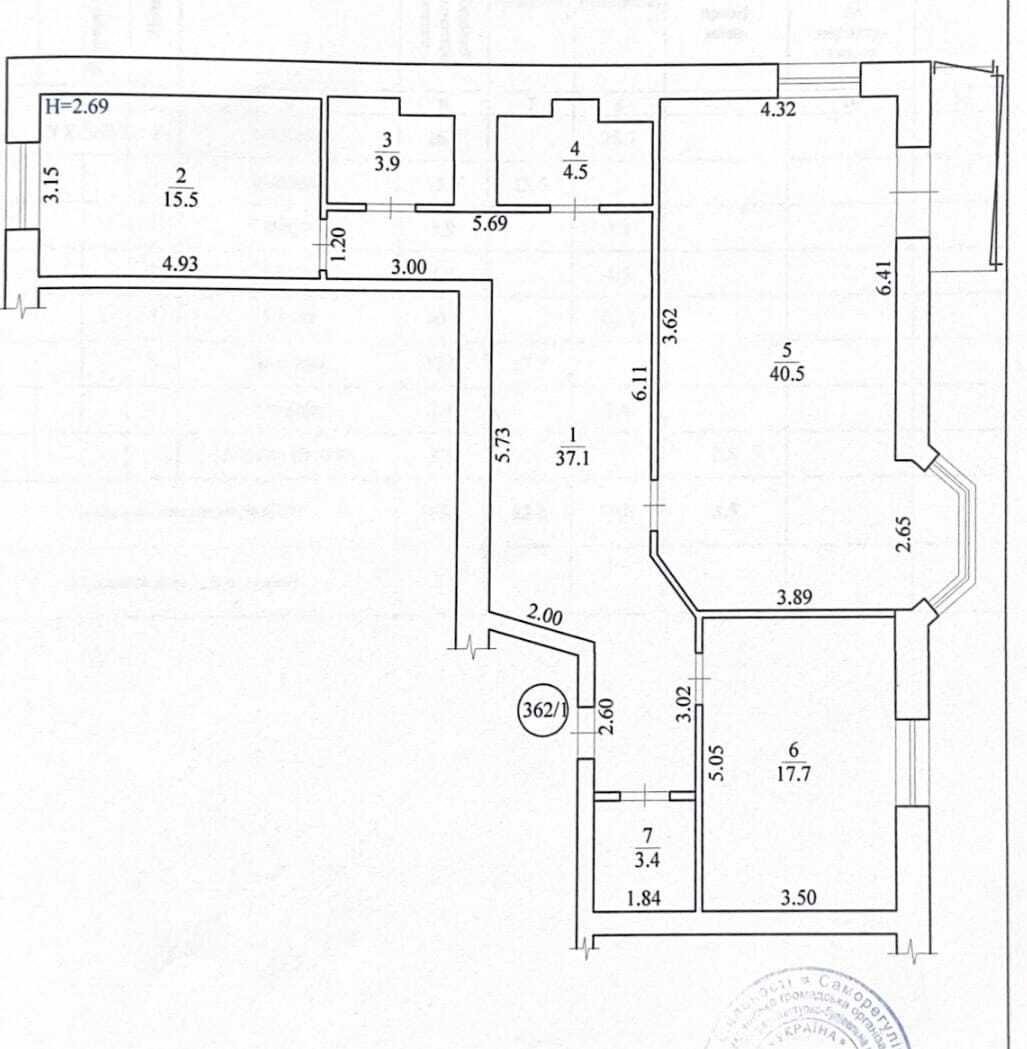
Унікальна 3-кімнатна квартира з тристороннім видом – максимальне природне освітлення та приголомшливі краєвиди.
Простір, де поєднуються міський комфорт, тиша та надійність.
🏡 Комфорт та Природа
• Тиша: Повна відсутність шуму від дороги!
• Природа: Вранці в теплу пору року ви будете насолоджуватися співом птахів із прилеглого лісу.
• Планування: 2 санвузли (душ + ванна).
• Величезна система зберігання: 9 метрів шаф-купе + окрема гардеробна.
• Вбудована кухонна техніка, два холодильники.
• Опалення централізоване, теплі підлоги + інверторні кондиціонери (працюють до -25C як тепловий насос повітря-повітря).
🌳 Інфраструктура для сім'ї
• Дворівневий паркінг може слугувати як бомбосховище.
• Закритий двір забезпечує комфорт та безпеку для всієї родини:
• 2 сучасні дитячі майданчики.
• 2 обладнані тренувальні майданчики.
• Магазини та салони краси в комплексі.
• Школи та садочки в пішій доступності.
💰 Умови Продажу:
• Можливий безготівковий розрахунок з ПДВ.
• Є можливість придбати 2 паркомісця та комору.
Будинок та двір:
🔋 Надійність та Безпека 24/7
• Енергонезалежність (Унікально): Будинок оснащений сонячними панелями та акумуляторами, що гарантує ПОВНУ АВТОНОМНІСТЬ під час блекаутів (ліфти, вода, опалення, світло).
• Захист: Цілодобова охорона території (професійна фірма) + відеоспостереження.
Детали
В квартире 3 комнаты, высота потолков 2.73 метра, Технологія будівництва - Монолітно-каркасна, Тип будинку - Спец. проект. Планировка комнат Раздельная. В квартире есть Подогрев полов, Кондиционер, Стиральная машина, Сушильная машина, Душевая кабина, Ванна, Холодильник, Микроволновка. Общее состояние квартиры - С ремонтом. Работает без света - вода, отопление, интернет, лифт, резервное питание квартиры (акумуляторы)
Публикация объявлений доступна для зарегистрированных пользователей в роли “Риелтор” или “Владелец“.
Если на вашей странице АН остались объявления, которые вы хотите опубликовать, пожалуйста, напишите нам за кем из риелторов вашего агентства их закрепить.
Зарегистрируйте риелторов АН на RIELTOR.UA и привяжите их аккаунты к аккаунту АН, чтобы:
видеть совокупную статистику и расходы по объявлениям ваших риелторов,
пополнять баланс вашим риелторам,
видеть в кабинете все объявления, созданные вашими риелторами,
объявления риелторов были брендированы логотипом вашего АН