1
126 880 $
1 347  $/м²
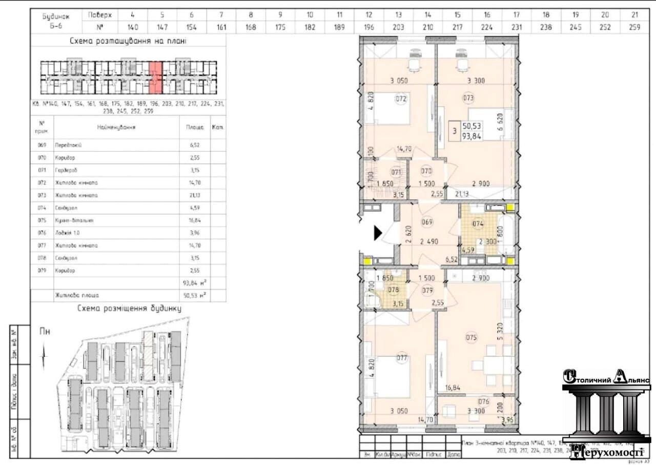
94.2 / 50.5 / 17 м²
этаж 14 из 21
Монолітно-каркасна
Спец. проект
2025 год постройки
3 нед. назад
1 мес. назад
96 (сегодня 1, вчера 0)
Описание
Від Власника, без комісії. Рідкісна пропозиція для великої родини! Комплекс з закритою теріторією!
Будинок "Нотінгем", 3-кімнатна квартира 94,2 кв.м, три окремі спальні та простора кухня студіо 17 кв.м. Лічильники на опалення, воду та електроенергію. В комплексі власна котельня, в будинку три ліфта, один спускається в дворівневий паркінг. По території охорона та відеонагляд, охоронна компанія "SHERIF".

ЖК "Нова Англія" Двір БЕЗ АВТОМОБІЛІВ! надзвичайне місто в місті, видовий прогулянковий майданчик, підземний та наземний паркінг, на території велика школа "Європейський колегіум", дитячий садок, якісні, сучасні, великі дитячі майданчики, дитячі гуртки, спортивний майданчик, тенісний корт, міні-футбол, салони краси, клініки, сімейний врач, майданчик для собак, салони для тварин. Затишні кафе, ресторан, маркети. Метро "Васильківська" 10-15 хвилин пішки.
Детали
В квартире 3 комнаты, высота потолков 2.7 метра, Технологія будівництва - Монолітно-каркасна, Тип будинку - Спец. проект. Газа нет, кухонная плита электрическая. Есть балкон. Дом построен в 2025 году. Общее состояние квартиры - Без ремонта. Безбарьерность: вход в дом на уровне земли, дверные проемы в доме шириной более 0.9 м, парковочные места для людей з инвалидностью, лифт, приспособленный к инвалидной коляске. Горячая вода - электрический бойлер. Количество санузлов: 2. Интернет проводной (кабельный). Работает без света - вода, отопление, интернет. Владелец соглашается продать по программе єВідновлення. Тип кухни - кухня-студия. Количество спален: 3. Без комиссии
Столичний Альянс Нерухомості
Верифицированный профиль
Gold partner
10
Лет опыта
1
Верифицированная рекомендация
3
Года на сайте
Активных объявлений 28
Эксклюзивных объектов 0
Рекламная активность 16111
Последний визит на сайт вчера
Рекомендовать
Адрес
Ваша жалоба принята!
Выберите способ подтверждения
Чтобы ваша рекомендация была засчитана, подтвердите свою личность
* Личные данные не будут отображаться на сайте и будут служить только для подтверждения личности.
Как верифицироваться через Дію?
Считайте QR-код сканером в приложении Действие и подтвердите авторизацию Действие.
QR-код будет действителен еще 02:00
Как верифицироваться через Bankid?
Верификация BankID откроется в новом окне. Если страница верификации не открылась, значит окно было заблокировано вашим браузером.
Чтобы разрешить открытие окна, выполните следующие шаги:

1. Проверьте адресную строку браузера на наличие сообщения об ошибке или значка блокировки. Нажмите на него.
2. Если у вас установлен блокировщик всплывающих окон, временно отключите его для этого сайта.
3. Проверьте настройки вашего браузера и убедитесь, что блокировка всплывающих окон отключена или настроена на разрешение открытия данного окна.

Если проблема остается нерешенной, свяжитесь с нашей службой поддержки.
Как верифицироваться через Дію?
Верификация Дія откроется в новом окне. Если страница верификации не открылась, значит окно было заблокировано вашим браузером.
Чтобы разрешить открытие окна, выполните следующие шаги:

1. Проверьте адресную строку браузера на наличие сообщения об ошибке или значка блокировки. Нажмите на него.
2. Если у вас установлен блокировщик всплывающих окон, временно отключите его для этого сайта.
3. Проверьте настройки вашего браузера и убедитесь, что блокировка всплывающих окон отключена или настроена на разрешение открытия данного окна.

Если проблема остается нерешенной, свяжитесь с нашей службой поддержки.
Поздравляем!
Рекомендация засчитана!
В скором времени рекомендация появится на странице риелтора.
Рекомендация не засчитана.
Вы уже оставляли рекомендацию данному риелтору.
В пропозиції є незбережені дані.