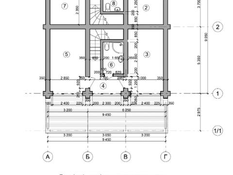
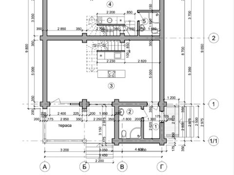
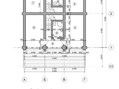
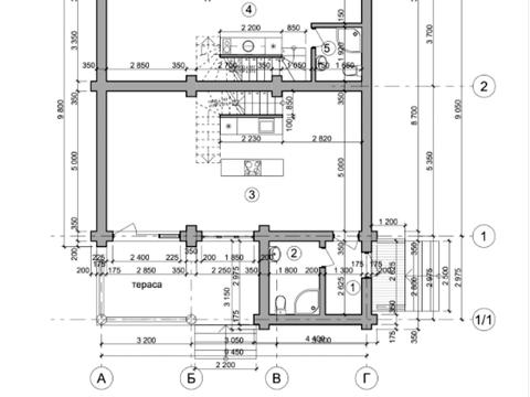
ПРОДАЖ БУДИНКУ
Адреса — село Рибник Дрогобицького району Львівської області (Східниця).
Кількість кімнат — пʼять
Поверховість — 2 поверхи.
Матеріал стін — дерево
Земельна ділянка — 11,5 соток, огороджена. Призначення — для будівництва і обслуговування житлового будинку.
Загальна площа будинку — 199 м², кухня — 10 м².
Будинок в 0-циклі, тобто ще без ремонту (частковий )
Опалення — електричний котел, камін, підігрів підлоги .
З підігрівом підлоги на кухні та у санвузлах.
Тераси — дві.
Санвузли - два.
Перший поверх будинку включає: кухню, велику простору вітальню, дві ізольовані кімнати, кабінет, два санвузли та дві тераси.
Другий поверх: дві ізольовані кімнати.
Наявні комунікації: електрик...
ПРОДАЖ БУДИНКУ
Адреса — село Рибник Дрогобицького району Львівської області (Східниця).
Кількість кімнат — пʼять
Поверховість — 2 поверхи.
Матеріал стін — дерево
Земельна ділянка — 11,5 соток, огороджена. Призначення — для будівництва і обслуговування житлового будинку.
Загальна площа будинку — 199 м², кухня — 10 м².
Будинок в 0-циклі, тобто ще без ремонту (частковий )
Опалення — електричний котел, камін, підігрів підлоги .
З підігрівом підлоги на кухні та у санвузлах.
Тераси — дві.
Санвузли - два.
Перший поверх будинку включає: кухню, велику простору вітальню, дві ізольовані кімнати, кабінет, два санвузли та дві тераси.
Другий поверх: дві ізольовані кімнати.
Наявні комунікації: електрик...
ПРОДАЖ БУДИНКУ
Адреса — село Рибник Дрогобицького району Львівської області (Східниця).
Кількість кімнат — пʼять
Поверховість — 2 поверхи.
Матеріал стін — дерево
Земельна ділянка — 11,5 соток, огороджена. Призначення — для будівництва і обслуговування житлового будинку.
Загальна площа будинку — 199 м², кухня — 10 м².
Будинок в 0-циклі, тобто ще без ремонту (частковий )
Опалення — електричний котел, камін, підігрів підлоги .
З підігрівом підлоги на кухні та у санвузлах.
Тераси — дві.
Санвузли - два.
Перший поверх будинку включає: кухню, велику простору вітальню, дві ізольовані кімнати, кабінет, два санвузли та дві тераси.
Другий поверх: дві ізольовані кімнати.
Наявні комунікації: електрик...
ПРОДАЖ БУДИНКУ
Адреса — село Рибник Дрогобицького району Львівської області (Східниця).
Кількість кімнат — пʼять
Поверховість — 2 поверхи.
Матеріал стін — дерево
Земельна ділянка — 11,5 соток, огороджена. Призначення — для будівництва і обслуговування житлового будинку.
Загальна площа будинку — 199 м², кухня — 10 м².
Будинок в 0-циклі, тобто ще без ремонту (частковий )
Опалення — електричний котел, камін, підігрів підлоги .
З підігрівом підлоги на кухні та у санвузлах.
Тераси — дві.
Санвузли - два.
Перший поверх будинку включає: кухню, велику простору вітальню, дві ізольовані кімнати, кабінет, два санвузли та дві тераси.
Другий поверх: дві ізольовані кімнати.
Наявні комунікації: електрик...
ПРОДАЖ БУДИНКУ
Адреса — село Рибник Дрогобицького району Львівської області (Східниця).
Кількість кімнат — пʼять
Поверховість — 2 поверхи.
Матеріал стін — дерево
Земельна ділянка — 11,5 соток, огороджена. Призначення — для будівництва і обслуговування житлового будинку.
Загальна площа будинку — 199 м², кухня — 10 м².
Будинок в 0-циклі, тобто ще без ремонту (частковий )
Опалення — електричний котел, камін, підігрів підлоги .
З підігрівом підлоги на кухні та у санвузлах.
Тераси — дві.
Санвузли - два.
Перший поверх будинку включає: кухню, велику простору вітальню, дві ізольовані кімнати, кабінет, два санвузли та дві тераси.
Другий поверх: дві ізольовані кімнати.
Наявні комунікації: електрик...
Продається дерев'яний будинок у селі Новий Кропивник, неподалік курорту Східниця. Прекрасне місце для тихого і спокійного життя серед природи.
Основні характеристики:
- Площа ділянки: 24 сотих
- Дерев'яний будинок + стодола
- Площа будинку: 70 м
- Кількість кімнат: 4
- Один поверх
- Дах шифер
Комунікації:
- Електропостачання
- Колодязь на ділянці
- Можливість газифікації
- Пічне опалення
Будинок розташований у мальовничій місцевості, що забезпечує спокій та затишок. Ідеальне місце для відпочинку або постійного проживання. Не втрачайте шанс придбати цей чудовий будинок за вигідною ціною!
Код обєкту 13582.
Продається просторий будинок у с. Новий Кропивник, одразу при в’їзді до смт. Східниця. Загальна площа — 338 м² (141 м² житлова). Земельна ділянка — 20 соток. Відстань до центру Східниці — лише 1500 м, до найближчого джерела «Нафтусі» — 1000 м.
Будинок розрахований на дві сім’ї, поруч господарська споруда. Це чудовий варіант для комфортного проживання чи інвестиції.
Ексклюзив від Cherry Estate. За деталями та додатковими фото звертайтесь у повідомлення. Дзвоніть — покажемо сьогодні. Можливий торг.
Продається мальовнича українська хатина у с. Новий Кропивник (Перепростиня) разом із земельною ділянкою 25 соток. Є можливість приватизувати ще 25 соток.
Переваги:
світло та вода проведені
господарська будівля, сад, пивниця
гарне місце для життя та бізнесу (відпочинок, туризм)
поруч курортне містечко Східниця та скеля Тустань
Земля в горах – чудова інвестиція для створення відпочинкового комплексу чи приватної садиби.
Можливий торг. Ексклюзив від Cherry Estate – телефонуйте, домовимось про показ сьогодні!
ПРОДАЖ БУДИНКУ
Адреса —село Коритище, вулиця І. Франка, Східницька ОТГ, Львівська область.
Кількість кімнат — пʼять.
Поверховість — двоповерховий будинок.
Матеріал стін — дерево .
Земельна ділянка — 6 соток (неогороджена). Призначення — для будівництва і обслуговування житлового будинку.
Загальна площа будинку — 144 м², житлова — 48 м².
Будинок в 0-циклі, тобто ще без ремонту.
Опалення — передбачений підігрів підлоги (на кухні / коридорі / санвузлі), кондиціонер та камін.
Балкони — три, тераса - одна.
Санвузли — чотири / суміжні.
Перший поверх будинку включає: (тамбур, два санвузла, 2 кімнати (кухню-їдальню).
Другий поверх: (коридор, чотири житлові кімнати, два санвузли).
Наявні комунікаці...
ПРОДАЖ БУДИНКУ
Адреса — село Східниця, вулиця Шевченка, Львівська область
Кількість кімнат — пʼять
Поверховість — двоповерховий будинок.
Матеріал стін — дерево
Земельна ділянка — 12 соток, огороджена. Призначення — для будівництва і обслуговування житлового будинку.
Загальна площа будинку — 158 м², житлова — 89.8 м², кухня — 12.7 м².
В будинку зроблений авторський ремонт, наявні меблі та побутова техніка
Опалення — електричний та твердопаливний котли. Камін з "рукавами" обігріву . Підігрів підлоги 1 поверху.
Балкони — два.
Санвузол — два, суміжні. Третій в гостьовому будинку.
Перший поверх будинку включає: дві житлові кімнати, санвузол, кухні, комора.
Другий поверх: три житлові кімнати, г...
ПРОДАЖ БУДИНКУ
Адреса — село Східниця, вулиця Шевченка, Львівська область
Кількість кімнат — пʼять
Поверховість — двоповерховий будинок.
Матеріал стін — дерево
Земельна ділянка — 12 соток, огороджена. Призначення — для будівництва і обслуговування житлового будинку.
Загальна площа будинку — 158 м², житлова — 89.8 м², кухня — 12.7 м².
В будинку зроблений авторський ремонт, наявні меблі та побутова техніка
Опалення — електричний та твердопаливний котли. Камін з "рукавами" обігріву . Підігрів підлоги 1 поверху.
Балкони — два.
Санвузол — два, суміжні. Третій в гостьовому будинку.
Перший поверх будинку включає: дві житлові кімнати, санвузол, кухні, комора.
Другий поверх: три житлові кімнати, г...
ПРОДАЖ МАЄТКУ
Адреса — смт Східниця, Львівської області.
Кількість кімнат — сім кімнат в основному будинку і дві кімнати в гостьовому.
Поверховість: основний будинок — триповерховий + цокольний поверх; гостьовий будинок — двоповерховий.
Дах — керамічна черепиця.
Земельна ділянка — 21 сотка, огороджена. Призначення — для будівництва і обслуговування житлового будинку.
Загальна площа основного будинку — 298,7 м², житлова — 93,1 м², кухня-вітальня — 52,5 м².
Загальна площа гостьового будинку — 110 м².
В будинку зроблений авторський ремонт, наявні меблі та побутова техніка відомих брендів.
Опалення в основному будинку — газовий котел + твердопаливний котел + 3 каміни. Житлові кімнати опалюютьс...
ПРОДАЖ МАЄТКУ
Адреса — смт Східниця, Львівської області.
Кількість кімнат — сім кімнат в основному будинку і дві кімнати в гостьовому.
Поверховість: основний будинок — триповерховий + цокольний поверх; гостьовий будинок — двоповерховий.
Дах — керамічна черепиця.
Земельна ділянка — 21 сотка, огороджена. Призначення — для будівництва і обслуговування житлового будинку.
Загальна площа основного будинку — 298,7 м², житлова — 93,1 м², кухня-вітальня — 52,5 м².
Загальна площа гостьового будинку — 110 м².
В будинку зроблений авторський ремонт, наявні меблі та побутова техніка відомих брендів.
Опалення в основному будинку — газовий котел + твердопаливний котел + 3 каміни. Житлові кімнати опалюютьс...
ПРОДАЖ БУДИНКУ
Адреса — село Східниця, вулиця Шевченка, Львівська область
Кількість кімнат — пʼять
Поверховість — двоповерховий будинок.
Матеріал стін — дерево
Земельна ділянка — 12 соток, огороджена. Призначення — для будівництва і обслуговування житлового будинку.
Загальна площа будинку — 158 м², житлова — 89.8 м², кухня — 12.7 м².
В будинку зроблений авторський ремонт, наявні меблі та побутова техніка
Опалення — електричний та твердопаливний котли. Камін з "рукавами" обігріву . Підігрів підлоги 1 поверху.
Балкони — два.
Санвузол — два, суміжні. Третій в гостьовому будинку.
Перший поверх будинку включає: дві житлові кімнати, санвузол, кухні, комора.
Другий поверх: три житлові кімнати, г...
ПРОДАЖ БУДИНКУ
Адреса — с. Східниця, Львівська область.
Кількість кімнат — сім.
Поверховість —двоповерховий.
Матеріал стін — цегла.
Земельна ділянка — 6 соток, неогороджена. Призначення — для будівництва і обслуговування житлового будинку
Загальна площа будинку — 323 м², житлова — 124 м², кухня — 62 м².
Будинок в 0-циклі, тобто ще без ремонту.
Санвузли — чотири.
Перший поверх будинку включає: дві кімнати, коридор, кухня-їдальня, санвузол.
Другий поверх (мансарда) включає: три кімнати, 2 санвузли.
Підвальне приміщення включає: господарські приміщення площею 106 кв.м, з окремим входом з двора та сходами першого поверху.
Наявні комунікації: електрика та газ - 5 метрів від будинку (у сусідів п...
ПРОДАЖ БУДИНКУ
Адреса — с. Східниця, Львівська область.
Кількість кімнат — сім.
Поверховість —двоповерховий.
Матеріал стін — цегла.
Земельна ділянка — 6 соток, неогороджена. Призначення — для будівництва і обслуговування житлового будинку
Загальна площа будинку — 323 м², житлова — 124 м², кухня — 62 м².
Будинок в 0-циклі, тобто ще без ремонту.
Санвузли — чотири.
Перший поверх будинку включає: дві кімнати, коридор, кухня-їдальня, санвузол.
Другий поверх (мансарда) включає: три кімнати, 2 санвузли.
Підвальне приміщення включає: господарські приміщення площею 106 кв.м, з окремим входом з двора та сходами першого поверху.
Наявні комунікації: електрика та газ - 5 метрів від будинку (у сусідів п...
ПРОДАЖ БУДИНКУ
Адреса —село Коритище, вулиця І. Франка, Східницька ОТГ, Львівська область.
Кількість кімнат — пʼять.
Поверховість — двоповерховий будинок.
Матеріал стін — дерево .
Земельна ділянка — 6 соток (неогороджена). Призначення — для будівництва і обслуговування житлового будинку.
Загальна площа будинку — 144 м², житлова — 48 м².
Будинок в 0-циклі, тобто ще без ремонту.
Опалення — передбачений підігрів підлоги (на кухні / коридорі / санвузлі), кондиціонер та камін.
Балкони — три, тераса - одна.
Санвузли — чотири / суміжні.
Перший поверх будинку включає: (тамбур, два санвузла, 2 кімнати (кухню-їдальню).
Другий поверх: (коридор, чотири житлові кімнати, два санвузли).
Наявні комунікаці...
ПРОДАЖ БУДИНКУ
Адреса — село Рибник Дрогобицького району Львівської області (Східниця).
Кількість кімнат — пʼять
Поверховість — 2 поверхи.
Матеріал стін — дерево
Земельна ділянка — 11,5 соток, огороджена. Призначення — для будівництва і обслуговування житлового будинку.
Загальна площа будинку — 199 м², кухня — 10 м².
Будинок в 0-циклі, тобто ще без ремонту (частковий )
Опалення — електричний котел, камін, підігрів підлоги .
З підігрівом підлоги на кухні та у санвузлах.
Тераси — дві.
Санвузли - два.
Перший поверх будинку включає: кухню, велику простору вітальню, дві ізольовані кімнати, кабінет, два санвузли та дві тераси.
Другий поверх: дві ізольовані кімнати.
Наявні комунікації: електрик...
ПРОДАЖ БУДИНКУ
Адреса — село Східниця, вулиця Шевченка, Львівська область
Кількість кімнат — пʼять
Поверховість — двоповерховий будинок.
Матеріал стін — дерево
Земельна ділянка — 12 соток, огороджена. Призначення — для будівництва і обслуговування житлового будинку.
Загальна площа будинку — 158 м², житлова — 89.8 м², кухня — 12.7 м².
В будинку зроблений авторський ремонт, наявні меблі та побутова техніка
Опалення — електричний та твердопаливний котли. Камін з "рукавами" обігріву . Підігрів підлоги 1 поверху.
Балкони — два.
Санвузол — два, суміжні. Третій в гостьовому будинку.
Перший поверх будинку включає: дві житлові кімнати, санвузол, кухні, комора.
Другий поверх: три житлові кімнати, г...
ПРОДАЖ БУДИНКУ
Адреса — село Східниця, вулиця Шевченка, Львівська область
Кількість кімнат — пʼять
Поверховість — двоповерховий будинок.
Матеріал стін — дерево
Земельна ділянка — 12 соток, огороджена. Призначення — для будівництва і обслуговування житлового будинку.
Загальна площа будинку — 158 м², житлова — 89.8 м², кухня — 12.7 м².
В будинку зроблений авторський ремонт, наявні меблі та побутова техніка
Опалення — електричний та твердопаливний котли. Камін з "рукавами" обігріву . Підігрів підлоги 1 поверху.
Балкони — два.
Санвузол — два, суміжні. Третій в гостьовому будинку.
Перший поверх будинку включає: дві житлові кімнати, санвузол, кухні, комора.
Другий поверх: три житлові кімнати, г...
Публікація оголошень доступна для зареєстрованих користувачів в ролі “Рієлтор” чи “Власник“.
Якщо на вашій сторінці АН залишились оголошення, які ви хочете опублікувати, будь ласка, напишіть нам за ким із рієлторів вашого агентства їх закріпити.
Зареєструйте рієлторів АН на RIELTOR.UA, та привʼяжіть їхні акаунти до акаунту АН, щоб:
бачити сукупну статистику та витрати по оголошенням ваших рієлторів,
поповнювати баланс вашим рієлторам,
бачити в кабінеті всі оголошення, створені вашими рієлторами,
оголошення рієлторів були брендовані логотипом вашого АН