95 000 $
766  $/м²
Злакова, 9/1
БЕЗ КОМІСІЇ єОселя Відеотур
124 / 34.35 / 24 м²
2 поверхи
2 сот
Таунхаус
4 кімнати
2024 рік побудови
2 дні тому
6 міс. тому
27 (сьогодні 0, вчора 0)
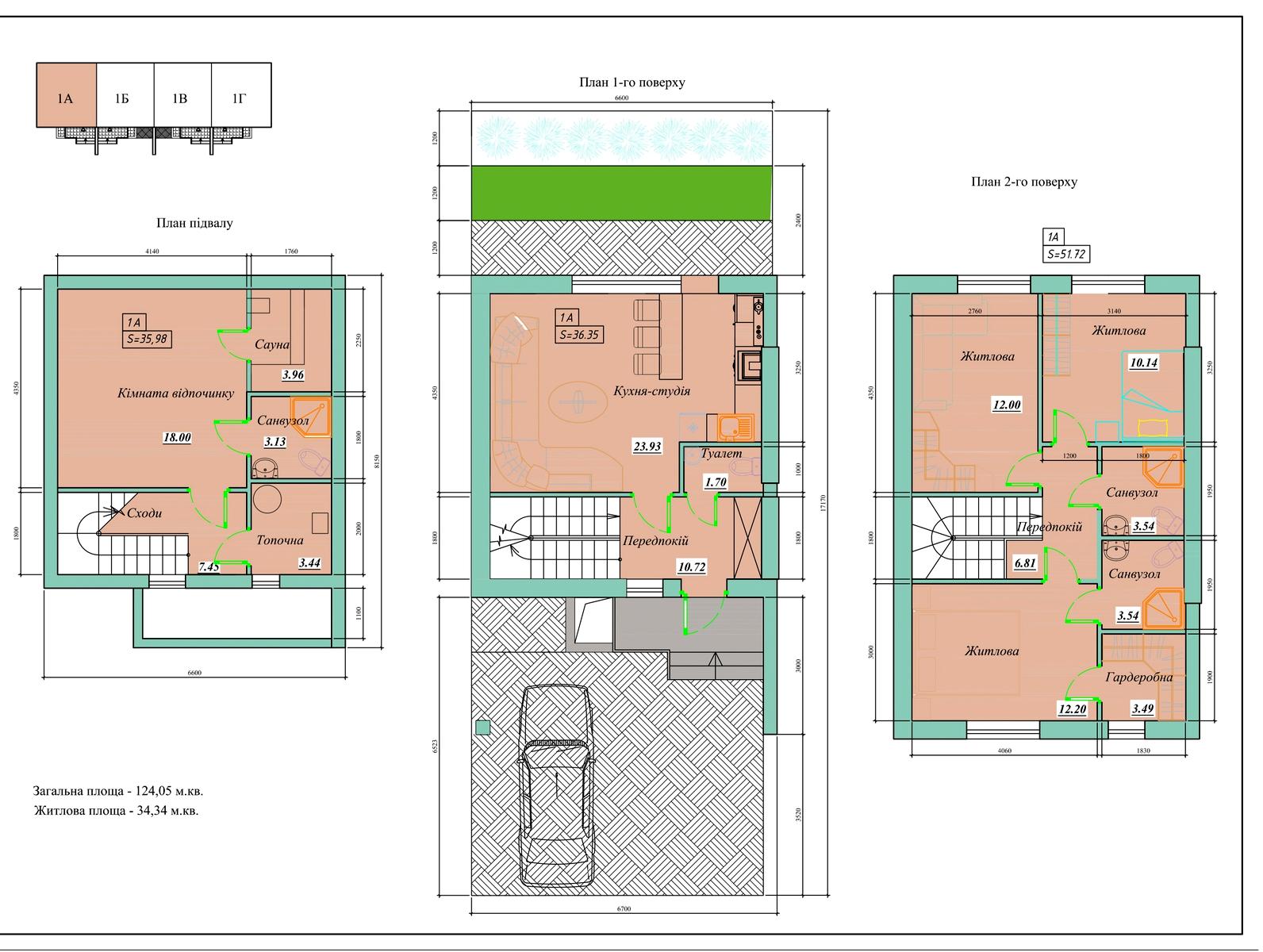
Опис
Продам таун хауса в Савіньон/Зелений Гай.
Двоповерховий.
Загальна площа 124м².
Три кімнати.
Перший поверх: кухня-студія, с/у.
Другий поверх: дві спальні, с/у.
І цоколь (сховище) 35м².
Стан таун хауса без ремонту.
Вільне планування.
Земельна ділянка 2.65 сотки.
Діє розтермінування на індивідуальних умовах.
Телефонуйте!
А наявності весь пакет документів.
Деталі
Таунхаус, 2 поверхи, 4 кімнати. Матеріал стін - пінобетон, матеріал перекриттів - збірний залізобетон. Під'їзд до будинку - асфальт. Площа ділянки 2 сотки. Висота стелі 3 метра. Планування кімнат Суміжно-роздільне. В будинку немає балконів. Тип кухні - кухня-студія. Є підвал. У будинку є Ванна, Лазня. Будинок побудований в 2024 році. Своя каналізація. Загальний стан будинку - Без ремонту. Газ природний. Холодна вода - водопровід. Гаряча вода - газовий котел. Опалення котел газовий. Кількість санвузлів: 4. Власник погоджується продати по програмі єОселя. Працює без світла - вода, газ, опалення, інтернет, резервне живлення (акумулятори/генератор). Без комісії
У будинку є
  • Ванна
На ділянці є
  • Лазня
Верифікований профіль
3
Роки досвіду
2
Роки на сайті
Активних оголошень 58
Ексклюзивних об'єктів 0
Рекламна активність 3211
Останній візит на сайт 2 дні тому
Рекомендувати
Планування

Адреса
смт. Таїрове, Злакова, 9/1
Вашу скаргу прийнято!
Оберіть спосіб підтвердження
Щоб вашу рекомендацію було зараховано, підтвердіть свою особистість
* Особисті дані не відображатимуться на сайті та слугуватимуть лише для підтвердження особистості.
Як верифікуватись через Дію?
Зчитайте QR-код сканером у застосунку Дія й підтвердьте авторизацію Дія.Підписом
QR-код буде дійсний ще 02:00
Як верифікуватись через Bankid?
Верифікація BankID відкриється у новому вікні. Якщо сторінка верифікації не відкрилася, вікно було заблоковане вашим браузером.
Щоб дозволити відкриття вікна, виконайте такі кроки:

1. Перевірте адресний рядок браузера на повідомлення про помилку або піктограму блокування. Натисніть на нього.
2. Якщо у вас встановлено блокувальник спливаючих вікон, тимчасово відключіть його для цього сайту.
3. Перевірте налаштування вашого браузера і переконайтеся, що блокування спливаючих вікон вимкнено або налаштовано на дозвіл відкриття цього вікна.

Якщо проблема залишається невирішеною, зверніться до нашої служби підтримки.
Як верифікуватись через Дію?
Верифікація Дія відкриється у новому вікні. Якщо сторінка верифікації не відкрилася, вікно було заблоковане вашим браузером.
Щоб дозволити відкриття вікна, виконайте такі кроки:

1. Перевірте адресний рядок браузера на повідомлення про помилку або піктограму блокування. Натисніть на нього.
2. Якщо у вас встановлено блокувальник спливаючих вікон, тимчасово відключіть його для цього сайту.
3. Перевірте налаштування вашого браузера і переконайтеся, що блокування спливаючих вікон вимкнено або налаштовано на дозвіл відкриття цього вікна.

Якщо проблема залишається невирішеною, зверніться до нашої служби підтримки.
Вітаємо!
Рекомендацію зараховано!
Незабаром рекомендація зʼявиться на сторінці рієлтора.
Рекомендацію не зараховано.
Ви вже залишали рекомендацію даному рієлтору.
В пропозиції є незбережені дані.