36 300 $
1 100  $/м²
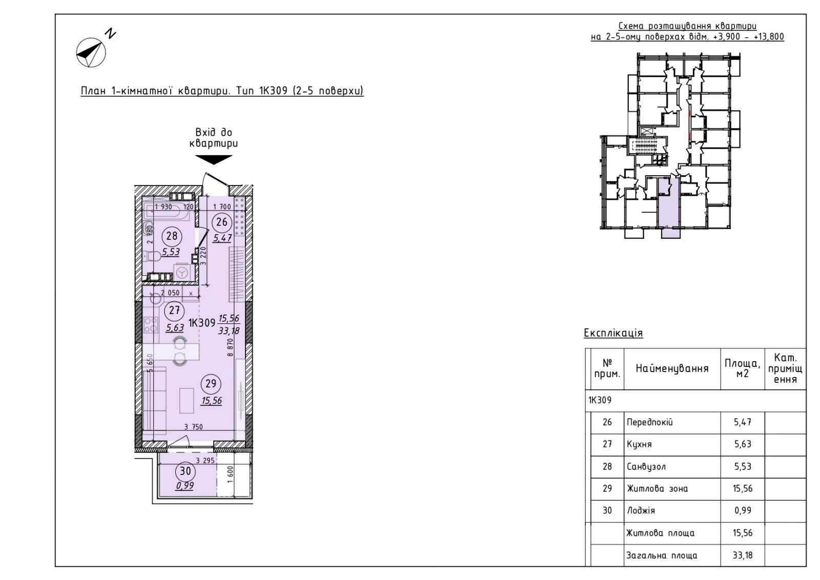
33 / 16 / 6 м²
поверх 3 з 7
2 дні тому
6 міс. тому
55 (сьогодні 0, вчора 0)
Опис
Продається квартира від забудовника ЖК 44 AVENUE, м. Ужгород, вул. Мукачівська 44.

Продаж без комісії агентству!

44 AVENUE – розміщений на території 1 гектару. Це перший житловий комплекс в Україні, що підтримує підключення до сонячних панелей. Також завдяки системі “розумний дім” ви зможете керувати опаленням, домофоном і шлагбаумом прямо зі смартфона. Буде встановлено безшумний ліфт і відеонагляд для забезпечення вашого комфорту та безпеки.
Жити в 44 AVENUE – означає бути в центрі подій. ЖК розташований у самому серці міста, поруч із історичними пам’ятками, мальовничою набережною та престижними закладами освіти. У пішій доступності – школи, садочки, лікерні, фітнес-зал, магазини та кафе. Також на території ЖК є сучасне бомбосховище та підземний паркінг. Ви отримуєте не житло, а унікальну атмосферу міського життя з доступом до всього необхідного.

Будівництво 1-2 черги розпочато.
Здача об’єкту в експлуатацію 4-квартал 2026 р.

Характеристика будівництва:
Зовні будинок 7-поверховий, побудований по монолітно-каркасній технології з використанням червоної цегли, фасад вентильований із травертину, утепленний мінватою, панорамні енергозберігаючі вікна.
1 поверх – комерція, 2-7 житлові.

Всередині забудовником надається чистова стяжка, електрокотел + батареї, стіни поштукатурені, розведена сантехніка, заведений силовий кабель без розводки, якісні вхідні двері.

До вашої уваги пропонуємо квартиру площею 33,18 м.кв.

Також під час будівництва є можливість змінити планування.

Ціна при 100% оплаті 1100 $/м.кв.

Ціна при 50% оплаті 1150 $/м.кв.

Ціна при 30% оплаті 1200 $/м.кв.

Можна без внесення задатку.

Розтермінування надається до здачі об’єкту в експлуатацію.

Код: 35816
Деталі
В квартирі 1 кімната. У квартирі є Ванна. Загальний стан квартири - Без ремонту. Без комісії
У квартирі є
  • Ванна
Variant
Верифікований профіль
Silver partner
6
Років досвіду
2
Роки на сайті
Активних оголошень 107
Ексклюзивних об'єктів 0
Рекламна активність 3732
Останній візит на сайт вчора
Рекомендувати
Історія зміни ціни
13.10.2025 - 7 700 $ 36 300 $
10.10.2025 44 000 $
Адреса
Вашу скаргу прийнято!
Оберіть спосіб підтвердження
Щоб вашу рекомендацію було зараховано, підтвердіть свою особистість
* Особисті дані не відображатимуться на сайті та слугуватимуть лише для підтвердження особистості.
Як верифікуватись через Дію?
Зчитайте QR-код сканером у застосунку Дія й підтвердьте авторизацію Дія.Підписом
QR-код буде дійсний ще 02:00
Як верифікуватись через Bankid?
Верифікація BankID відкриється у новому вікні. Якщо сторінка верифікації не відкрилася, вікно було заблоковане вашим браузером.
Щоб дозволити відкриття вікна, виконайте такі кроки:

1. Перевірте адресний рядок браузера на повідомлення про помилку або піктограму блокування. Натисніть на нього.
2. Якщо у вас встановлено блокувальник спливаючих вікон, тимчасово відключіть його для цього сайту.
3. Перевірте налаштування вашого браузера і переконайтеся, що блокування спливаючих вікон вимкнено або налаштовано на дозвіл відкриття цього вікна.

Якщо проблема залишається невирішеною, зверніться до нашої служби підтримки.
Як верифікуватись через Дію?
Верифікація Дія відкриється у новому вікні. Якщо сторінка верифікації не відкрилася, вікно було заблоковане вашим браузером.
Щоб дозволити відкриття вікна, виконайте такі кроки:

1. Перевірте адресний рядок браузера на повідомлення про помилку або піктограму блокування. Натисніть на нього.
2. Якщо у вас встановлено блокувальник спливаючих вікон, тимчасово відключіть його для цього сайту.
3. Перевірте налаштування вашого браузера і переконайтеся, що блокування спливаючих вікон вимкнено або налаштовано на дозвіл відкриття цього вікна.

Якщо проблема залишається невирішеною, зверніться до нашої служби підтримки.
Вітаємо!
Рекомендацію зараховано!
Незабаром рекомендація зʼявиться на сторінці рієлтора.
Рекомендацію не зараховано.
Ви вже залишали рекомендацію даному рієлтору.
В пропозиції є незбережені дані.