185 000 $
949
$/м²
Лесі Українки
195 / 130 / 25 м²
2 поверхи
10 сот
Будинок
5 кімнат
2022 рік побудови
вчора
11 міс. тому
98 (сьогодні 0,
вчора 0)
Опис
Будинок в новій котеджній забудові поруч з озером в селі Вишеньки район вул. Лесі Українки.
Загальна S будинку 195 кв кв.м (враховує тераси), опалювальна площа 150 кв.м.
2 поверхи на 10 сотках.
Будинок від забудовників, фасадні роботи виконані, є огорожа по периметру.
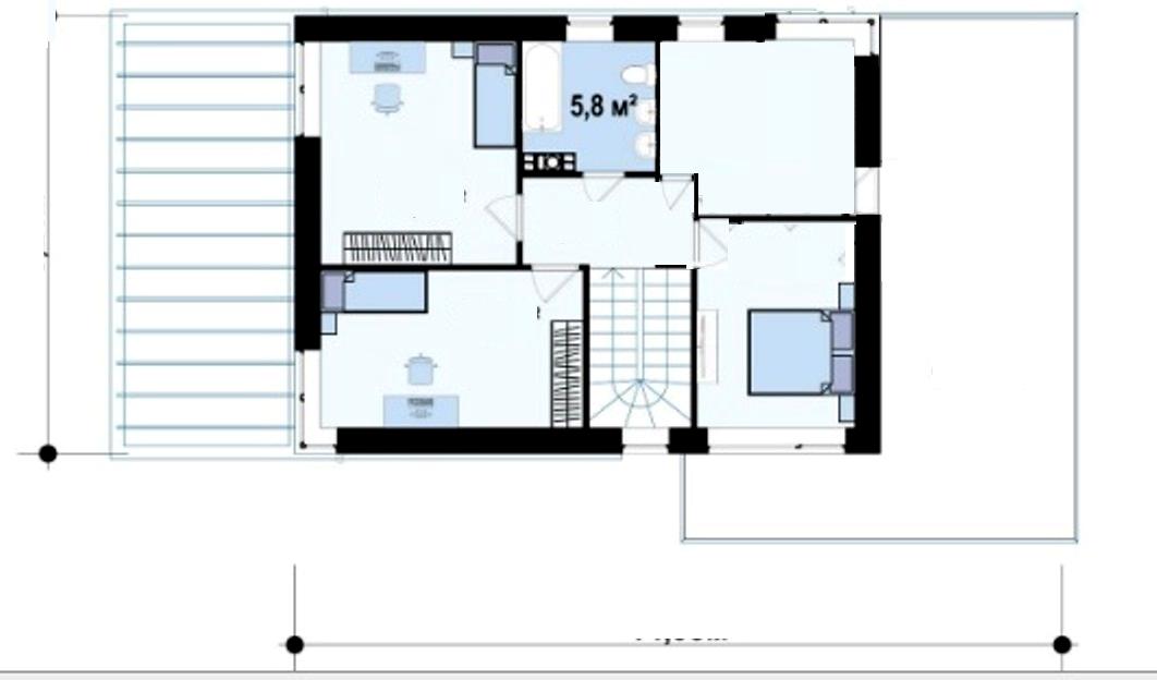
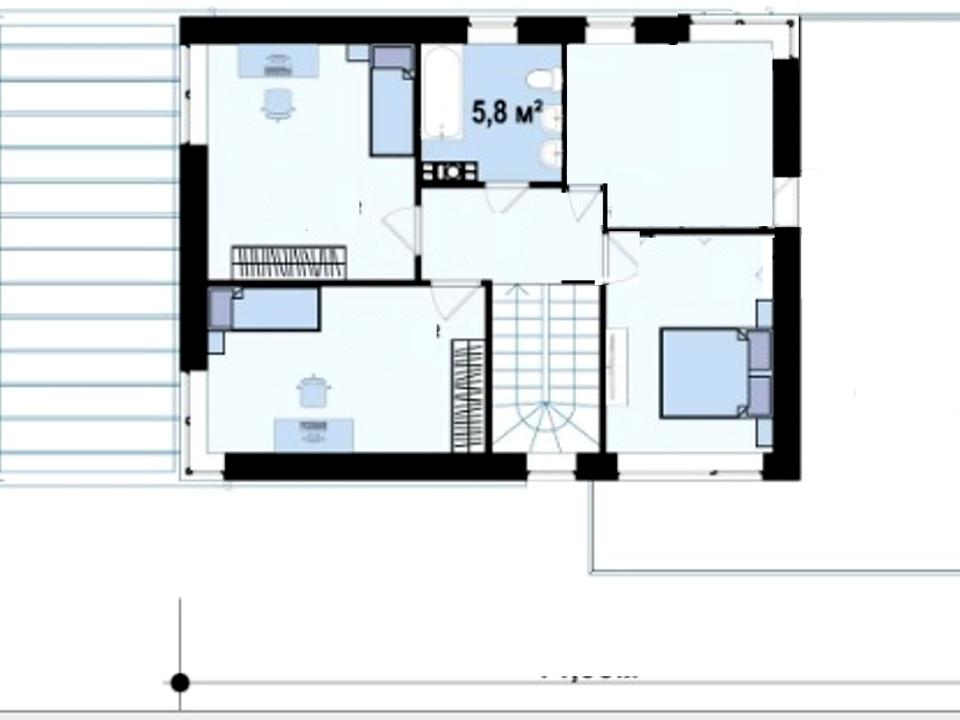
Продумане планування будинку: 1 поверх - великий зал 31 кв.м, зонована кухня (14 кв.м) з виходом на простору затишну терасу, гардеробна, санвузол, спальня або кабінет; 2-й поверх - 4 спальні з вбудованими шафами і санвузол.
З майстер-спальні вихід на велику терасу з прекрасним видом на озеро і ліс!
Є гараж.
Сусіди - котеджне містечко і безпосередній сусід - ділянка з садом і озером!
Ціна без комісії!
Деталі інтер’єру:
відкриті сходи,
вихід на терасу через розсувні панорамні вікна-двері
Інфраструктура:
300 м від центра села та зупинки транспорту. Поруч облаштоване озеро
Планування:
2 тераси, 4 спальні, 2 санвузла
Загальна S будинку 195 кв кв.м (враховує тераси), опалювальна площа 150 кв.м.
2 поверхи на 10 сотках.
Будинок від забудовників, фасадні роботи виконані, є огорожа по периметру.
Продумане планування будинку: 1 поверх - великий зал 31 кв.м, зонована кухня (14 кв.м) з виходом на простору затишну терасу, гардеробна, санвузол, спальня або кабінет; 2-й поверх - 4 спальні з вбудованими шафами і санвузол.
З майстер-спальні вихід на велику терасу з прекрасним видом на озеро і ліс!
Є гараж.
Сусіди - котеджне містечко і безпосередній сусід - ділянка з садом і озером!
Ціна без комісії!
Деталі інтер’єру:
відкриті сходи,
вихід на терасу через розсувні панорамні вікна-двері
Інфраструктура:
300 м від центра села та зупинки транспорту. Поруч облаштоване озеро
Планування:
2 тераси, 4 спальні, 2 санвузла
Деталі
Будинок, 2 поверхи, 5 кімнат. Матеріал стін - газоблок, фундамент будинку - залізобетон, матеріал перекриттів - збірний залізобетон. Під'їзд до будинку - асфальт. Площа ділянки 10 соток. Висота стелі 3 метра. Планування кімнат Роздільне. В будинку 2 балкони. Тип кухні - кухня-студія. Немає підвалу. У будинку є Ванна, Сигналізація, Гараж, Тераса. Будинок побудований в 2022 році. Загальний стан будинку - Без ремонту. Холодна вода - свердловина. Кількість санвузлів: 2. Покриття даху - металочерепиця. Кількість паркомісць: 3 і більше. Кількість спален: 4. Без комісії
У будинку є
На ділянці є
Адреса
Ділянка
площа
0.1 га
10 соток
1000 м2
10 соток
1000 м2
власність
Приватна власність
використання
для будівництва і обслуговування житлового будинку, господарських будівель і споруд (присадибна ділянка)
категорія
Землі житлової та громадської забудови
























