Цегляна
Новобудова
2022 рік побудови
1 тиж. тому
2 міс. тому
132 (сьогодні 0,
вчора 1)
Опис
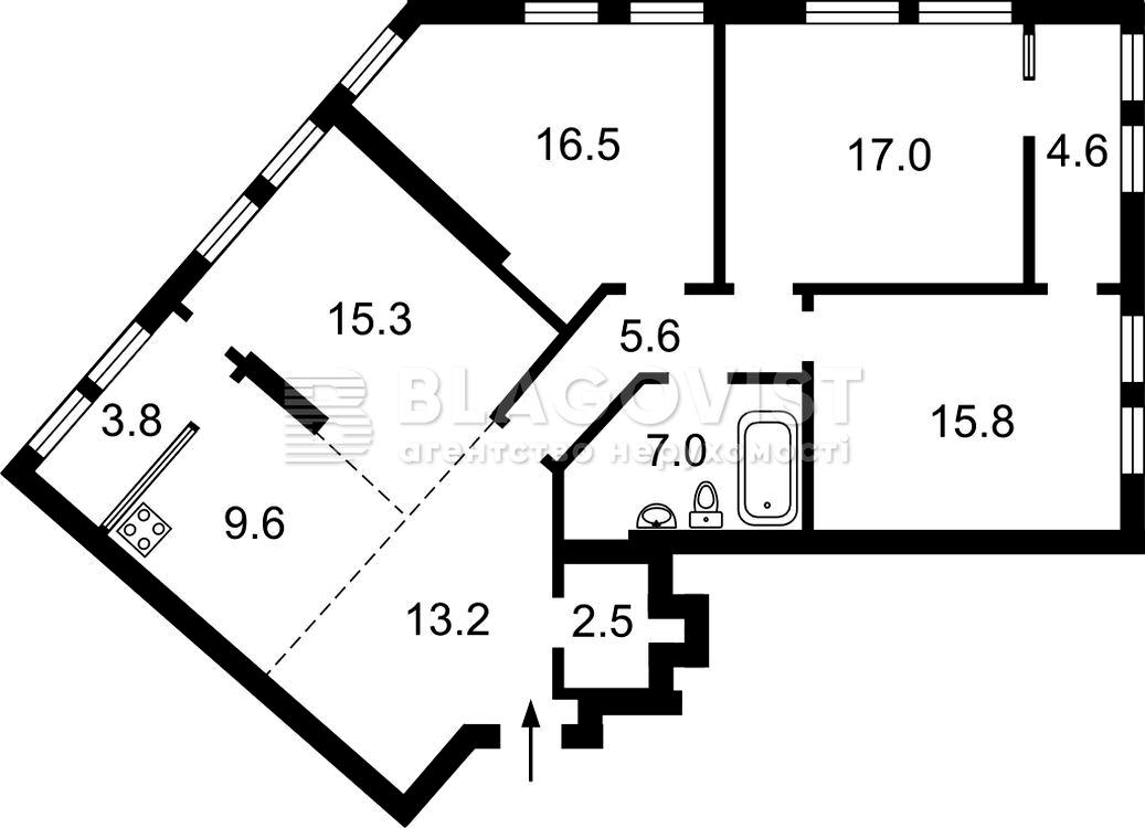
Без комісії! До Вашої уваги 3-кімнатна квартира в ЖК бізнес-класу "Madison Garden" . В квартирі дуже гарне планування. Дуже світла з гарним краєвидом. Великі вікна . Кімнати правильної форми. При бажанні можна вдало перепланувати. Комплекс побудований по монолітно-каркасній технології з керамічною цеглою та утепленням фасаду, що гарантує енергоефективність, відмінну звукоізоляцію та довговічність. Закрита територія з охороною та відеоспостереженням. Критий паркінг та наземна парковка. До метро Лісова 15 хвилин.
Запрошуємо Вас на перегляд. Є декілька варіантів квартир у комплексі. Тако ж є квартири у ЖК Crona Park 2
Запрошуємо Вас на перегляд. Є декілька варіантів квартир у комплексі. Тако ж є квартири у ЖК Crona Park 2
Деталі
В квартирі 3 кімнати, висота стелі 3 метра, Технологія будівництва - Цегляна, Тип будинку - Новобудова. Кухонна плита електрична. Є 2 балкони. Будинок побудований в 2022 році. Загальний стан квартири - Без ремонту. Гаряча вода - централізована. Працює без світла - вода, опалення, інтернет, ліфт. Власник погоджується продати по програмі єВідновлення. Без комісії

























