1 500 $/міс
Проектна вул.
БЕЗ КОМІСІЇ Відеотур
135 / 80 / 40 м²
2 поверхи
8 сот
Будинок
5 кімнат
6 днів тому
6 днів тому
26 (сьогодні 0, вчора 0)
Опис
БЕЗ КОМІСІЇ! Оренда затишного заміського будинку з ремонтом та меблями у с. Гореничі, Бучанський р-н, 10 км до метро Житомирська, зручна транспортна розв’язка. Поруч АТБ, 400 м озеро, ліс, піша доступність Фора, Аптека, Сільпо, WineTime, Macdonalds, ресторани, кафе, відділення Нової пошти.
2 поверховий будинок загальною площею 150 м2, розташовано на ділянці - 6 соток. Ділянка огороджена парканом та воротами.

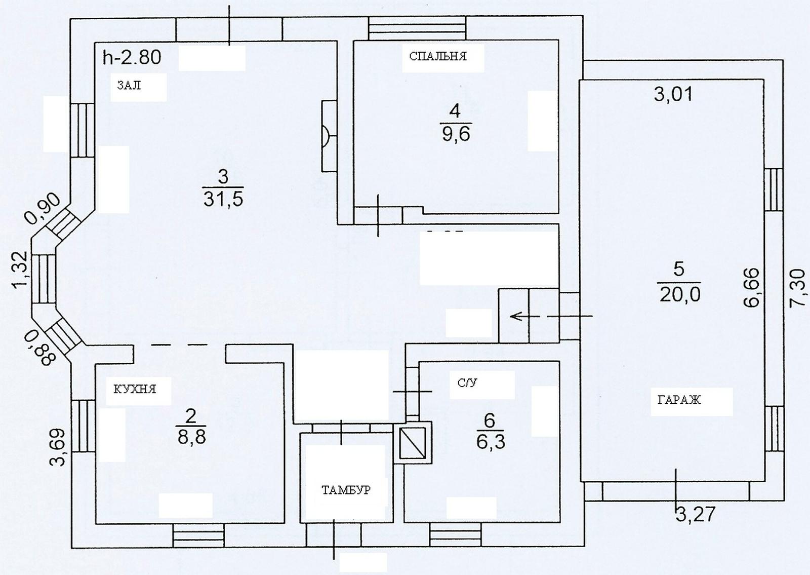
Планування будинку:
Будинок, 2 поверхи, 4 кімнати + 1 літня. Площа ділянки 6 соток. Планування кімнат Роздільне.
Перший поверх: тамбур, велика кухня - вітальня, спальня, сан.вузол+душова, дерев’яні сходи на 2 поверх, гараж.
Другий поверх: сан.вузол+ванна кімната, три спальні, коридор, три балкони.
У будинку є шафи та меблі, ліжка, смарт ТВ, холодильник, морозильна камера, ПММ, пральна машина, кондиціонер, камін. Загальний стан будинку - євроремонт.

Будинок з газо та електропостачанням. Вхід (хвіртка) картковий доступ та в’їзд (ворота) з вулиці. Ворота автоматичні відкатні з пультом ДУ.
Стіни будинку вироблені із керамоблоків з утепленням 10 см.
Опалення: газовий котел, тепла підлога + батареї.
Плита на кухні комбінована: газ + електро.
Альтернативне опалення для першого поверха – камін.
Другий поверх забезпечений канальним кондиціонером. Перший поверх кондиціонування повітря не потребує. Проектна система вентиляції.
Перекриття цоколь/1пов та 1пов/2пов – залізобетон.
Гараж: опалення (або підігрів за потребою) электрична тепла підлога, вхід с 1-го поверху, ворота автоматичні під’ємні секційні з керуванням з пульта ДУ.

Будинок забезпечений системою резервного електроживлення (UPS с акумуляторами), для безперебійної работи газового котла, освітлення, інтернету, розеток з непотужним живленням, водопостачання.
Також є дизельний генератор електроэнергії.
Водопостачання від власної свердловини та криниці. Фільтрація води для будинка – фільтр Ecosoft та Osmos для питної води.
Підігрів горячой води комбінованний – газ/електро.
Каналізация автономна: септик.

Біля будинка відкрита тераса у тіні дерев з комфортним гумовим покриттям (як на дитячих майданчиках).
На ділянці також є:
• будиночок для відпочинку: кімната відпочинку 15 м2 + сан.вузол+душова, фінськая сауна з каменкою на дровах (готовність за 1 місяць, окрема домовленність);
• підвал для зберігання овочів та фруктів;
• сарай для садового інвентаря та зберігання дров;
• газон з системой поливу;
• садові дерева, рослі берези, кущі;
• пічка-мангал.

Переваги
Працює без світла - вода, газ, опалення, інтернет GPON (гігабітна пасивна оптоволоконна мережа) + WiFi, інтернет-телебачення, резервне живлення (акумулятори/генератор).
10 км до метро Житомирська, зручна транспортна розв’язка. Поруч АТБ, Поштомат НП, за 400 м озеро, ліс, піша доступність Фора, Аптека, Сільпо, WineTime, Macdonalds, ресторани, кафе, відділення Нової пошти.

Інфраструктура
Поруч АТБ, 400 м озеро, ліс, піша доступність Фора, Аптека, Сільпо, WineTime, Macdonalds, ресторани, кафе, відділення Нової пошти. До Києва 10 км, це 7 хвилин на машині. Поруч зупинка громадського транспорту, на громадському транспорті до метро Житомирська 15-20 хвилин.
Деталі
Будинок, 2 поверхи, 5 кімнат. Площа ділянки 8 соток. У будинку є Газон, Зона мангалу, Тераса. Загальний стан будинку - З ремонтом. Працює без світла - вода, газ, опалення, інтернет, резервне живлення (акумулятори/генератор). Без комісії
На ділянці є
  • Газон
  • Зона мангалу
  • Тераса
Риэлторско-Консалтинговая компания "ЮНАЛИЯ"
Верифікований профіль
Platinum partner
28
Років досвіду
13
Років на сайті
Активних оголошень 14
Ексклюзивних об'єктів 0
Рекламна активність 13341
Останній візит на сайт вчора
Рекомендувати
Історія зміни ціни
14.04.2026 + 200 $ 1 500 $
14.04.2026 1 300 $
Адреса
с. Гореничі, Проектна вул.
Вашу скаргу прийнято!
Оберіть спосіб підтвердження
Щоб вашу рекомендацію було зараховано, підтвердіть свою особистість
* Особисті дані не відображатимуться на сайті та слугуватимуть лише для підтвердження особистості.
Як верифікуватись через Дію?
Зчитайте QR-код сканером у застосунку Дія й підтвердьте авторизацію Дія.Підписом
QR-код буде дійсний ще 02:00
Як верифікуватись через Bankid?
Верифікація BankID відкриється у новому вікні. Якщо сторінка верифікації не відкрилася, вікно було заблоковане вашим браузером.
Щоб дозволити відкриття вікна, виконайте такі кроки:

1. Перевірте адресний рядок браузера на повідомлення про помилку або піктограму блокування. Натисніть на нього.
2. Якщо у вас встановлено блокувальник спливаючих вікон, тимчасово відключіть його для цього сайту.
3. Перевірте налаштування вашого браузера і переконайтеся, що блокування спливаючих вікон вимкнено або налаштовано на дозвіл відкриття цього вікна.

Якщо проблема залишається невирішеною, зверніться до нашої служби підтримки.
Як верифікуватись через Дію?
Верифікація Дія відкриється у новому вікні. Якщо сторінка верифікації не відкрилася, вікно було заблоковане вашим браузером.
Щоб дозволити відкриття вікна, виконайте такі кроки:

1. Перевірте адресний рядок браузера на повідомлення про помилку або піктограму блокування. Натисніть на нього.
2. Якщо у вас встановлено блокувальник спливаючих вікон, тимчасово відключіть його для цього сайту.
3. Перевірте налаштування вашого браузера і переконайтеся, що блокування спливаючих вікон вимкнено або налаштовано на дозвіл відкриття цього вікна.

Якщо проблема залишається невирішеною, зверніться до нашої служби підтримки.
Вітаємо!
Рекомендацію зараховано!
Незабаром рекомендація зʼявиться на сторінці рієлтора.
Рекомендацію не зараховано.
Ви вже залишали рекомендацію даному рієлтору.
В пропозиції є незбережені дані.