5 900 $/міс
7  $/м²
Комісія 50%
офісне приміщення
891 м²
2 тиж. тому
3 міс. тому
6 (сьогодні 0, вчора 0)
Опис
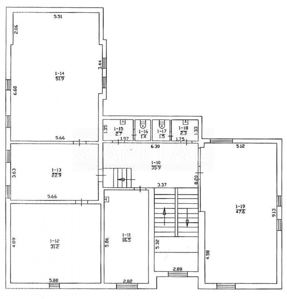
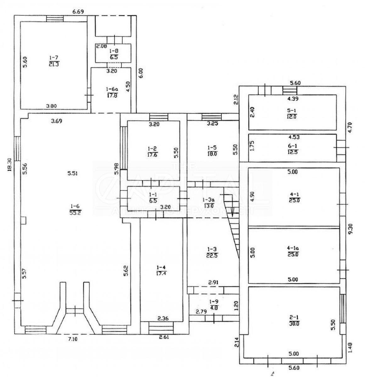
Здається в оренду офісно-складський комплекс загальною площею 891 м2, з них 465 м2 складського приміщення та 426 м2 офісні приміщення.

Офісна частина загальною площею 426 кв.м. Окрема капітальна цегляна будівля. 2 поверхи, 9 кабінетів від 17 до 52 кв.м, нежилий фонд, автономне опалення твердопаливним котлом, інтернет оптоволокно. Вартість оренди офісної частини 280 грн./кв. м.

Складська частина загально. площею 465 м2. Окрема капітальна цегляна будівля на закритій території. Висота потолків 5 м. Троє ролетних воріт, 380В, під’їзд, стоянка фур. Бетована рівна підлога. 259 грн./кв. м.

На території постійна охорона та відеонагляд.
Закрита територія, зручна транспортна розв'язка, біля центральних вулиць та Гостомельського шосе (9 км до Києва), асфальтований широкий заїзд на територію, стоянка.

Перегляд в зручний для Вас час разом з експертом агенції THE Capital!

A21444
Деталі
Об'єкт комерційної нерухомості, Офісний центр, Офісне приміщення. Комісія за послуги 50 %
THE Capital
Верифікований профіль
4
Роки досвіду
5
Місяців на сайті
Активних оголошень 1122
Ексклюзивних об'єктів 0
Рекламна активність 3726
Останній візит на сайт вчора
Рекомендувати
Адреса
Вашу скаргу прийнято!
Оберіть спосіб підтвердження
Щоб вашу рекомендацію було зараховано, підтвердіть свою особистість
* Особисті дані не відображатимуться на сайті та слугуватимуть лише для підтвердження особистості.
Як верифікуватись через Дію?
Зчитайте QR-код сканером у застосунку Дія й підтвердьте авторизацію Дія.Підписом
QR-код буде дійсний ще 02:00
Як верифікуватись через Bankid?
Верифікація BankID відкриється у новому вікні. Якщо сторінка верифікації не відкрилася, вікно було заблоковане вашим браузером.
Щоб дозволити відкриття вікна, виконайте такі кроки:

1. Перевірте адресний рядок браузера на повідомлення про помилку або піктограму блокування. Натисніть на нього.
2. Якщо у вас встановлено блокувальник спливаючих вікон, тимчасово відключіть його для цього сайту.
3. Перевірте налаштування вашого браузера і переконайтеся, що блокування спливаючих вікон вимкнено або налаштовано на дозвіл відкриття цього вікна.

Якщо проблема залишається невирішеною, зверніться до нашої служби підтримки.
Як верифікуватись через Дію?
Верифікація Дія відкриється у новому вікні. Якщо сторінка верифікації не відкрилася, вікно було заблоковане вашим браузером.
Щоб дозволити відкриття вікна, виконайте такі кроки:

1. Перевірте адресний рядок браузера на повідомлення про помилку або піктограму блокування. Натисніть на нього.
2. Якщо у вас встановлено блокувальник спливаючих вікон, тимчасово відключіть його для цього сайту.
3. Перевірте налаштування вашого браузера і переконайтеся, що блокування спливаючих вікон вимкнено або налаштовано на дозвіл відкриття цього вікна.

Якщо проблема залишається невирішеною, зверніться до нашої служби підтримки.
Вітаємо!
Рекомендацію зараховано!
Незабаром рекомендація зʼявиться на сторінці рієлтора.
Рекомендацію не зараховано.
Ви вже залишали рекомендацію даному рієлтору.
В пропозиції є незбережені дані.