6 500 $/міс
7  $/м²
Комісія 50%
склад
1000 м²
2 тиж. тому
1 міс. тому
5 (сьогодні 0, вчора 0)
Опис
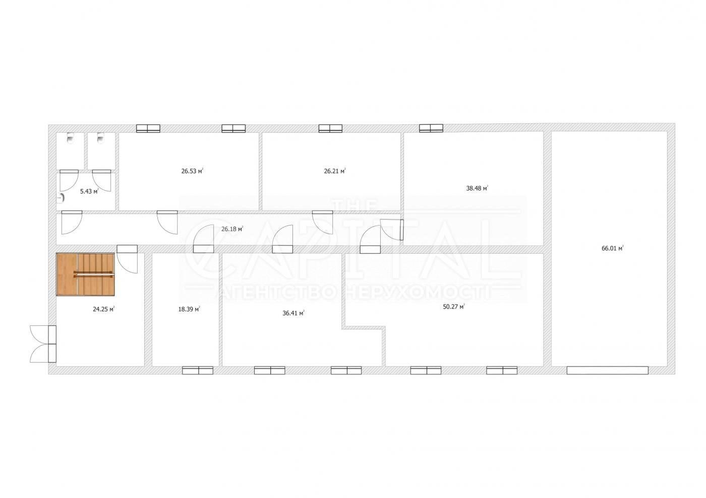
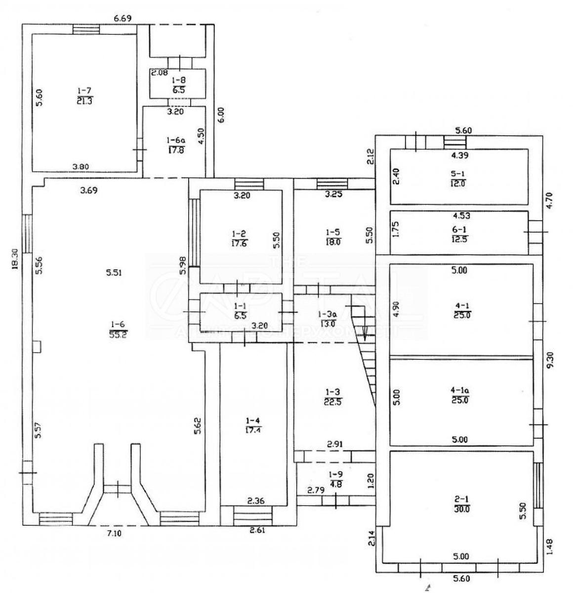
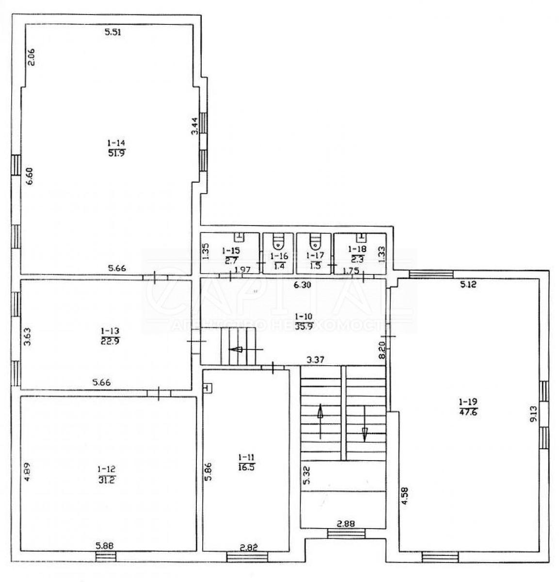
Здається в оренду офісно-складський комплекс загальною площею 1000 м2.
Комплекс складається з окремо стоячої АВТОНОМНОЇ офісної будівлі загальною площею 426 м2 офісних приміщень, а також капітальних складських приміщень загальною площею 573 м2.
Закрита територія, зручна транспортна розв'язка, біля центральних вулиць та Гостомельського шосе, асфальтований широкий заїзд на територію, стоянка.

КАПІТАЛЬНІ СКЛАДИ ТА ВИРОБНИЧІ ПРИМІЩЕННЯ складаються з декількох частин:
• Склад 220 м²: окрема капітальна будівля (3 приміщення).
• Складський блок 200 м²: приміщення від 18 до 50 м², 1й поверх, висота 3 м.
• Склад 87 м²: окрема капітальна будівля, напівпідвальне приміщення, висота 5,5 м.
• Склад 66 м²: частина капітальної будівлі, висота 4,5 м, рівна бетонована підлога.

Окрема капітальна офісна цегляна будівля. 2 поверхи, 9 кабінетів від 17 до 52 кв.м, нежитловий фонд.
Повна енергонезалежність та комфорт для вашого офісу.
• ПОВНА АВТОНОМНІСТЬ ОПАЛЕННЯ: власний твердопаливний котел. Незалежність від міських мереж та повний контроль витрат.
• Функціональність 1-го поверху: площа 55.2 м² ідеально підходить під теплий склад або зону видачі/комплектації товарів.
• Формат: окрема 2-поверхова будівля, 9 кабінетів (17–52 м²).
• Зручності: обладнана кухонна зона з меблями та 2 санвузли на другому поверсі.
• Стан: якісний офісний ремонт (натуральне дерево), кондиціонери, швидкісний інтернет (оптоволокно).
• Ціна: 279 грн/м² (нежитловий фонд).

ЕНЕРГОНЕЗАЛЕЖНІСТЬ ТА ПОТУЖНІСТЬ
• Власна ТП на 400 кВт з можливістю збільшення до 800 кВт.
️ БЕЗПЕКА ТА ЛОКАЦІЯ
• Охорона 24/7: закрита приватна територія, цілодобовий пост охорони, відеоспостереження, загороджений периметр. Жодного стороннього трафіку — лише орендарі та їхній транспорт.
• Розташування: прямий виїзд на основні магістралі, лише 9 км до межі Києва. Асфальтований широкий заїзд на територію, стоянка.

Перегляд в зручний для Вас час разом з експертом агенції THE Capital!

A28050
Деталі
Об'єкт комерційної нерухомості, Окремо стояча будівля, Склад. Комісія за послуги 50 %
THE Capital
Верифікований профіль
4
Роки досвіду
5
Місяців на сайті
Активних оголошень 1122
Ексклюзивних об'єктів 0
Рекламна активність 3726
Останній візит на сайт вчора
Рекомендувати
Адреса
Вашу скаргу прийнято!
Оберіть спосіб підтвердження
Щоб вашу рекомендацію було зараховано, підтвердіть свою особистість
* Особисті дані не відображатимуться на сайті та слугуватимуть лише для підтвердження особистості.
Як верифікуватись через Дію?
Зчитайте QR-код сканером у застосунку Дія й підтвердьте авторизацію Дія.Підписом
QR-код буде дійсний ще 02:00
Як верифікуватись через Bankid?
Верифікація BankID відкриється у новому вікні. Якщо сторінка верифікації не відкрилася, вікно було заблоковане вашим браузером.
Щоб дозволити відкриття вікна, виконайте такі кроки:

1. Перевірте адресний рядок браузера на повідомлення про помилку або піктограму блокування. Натисніть на нього.
2. Якщо у вас встановлено блокувальник спливаючих вікон, тимчасово відключіть його для цього сайту.
3. Перевірте налаштування вашого браузера і переконайтеся, що блокування спливаючих вікон вимкнено або налаштовано на дозвіл відкриття цього вікна.

Якщо проблема залишається невирішеною, зверніться до нашої служби підтримки.
Як верифікуватись через Дію?
Верифікація Дія відкриється у новому вікні. Якщо сторінка верифікації не відкрилася, вікно було заблоковане вашим браузером.
Щоб дозволити відкриття вікна, виконайте такі кроки:

1. Перевірте адресний рядок браузера на повідомлення про помилку або піктограму блокування. Натисніть на нього.
2. Якщо у вас встановлено блокувальник спливаючих вікон, тимчасово відключіть його для цього сайту.
3. Перевірте налаштування вашого браузера і переконайтеся, що блокування спливаючих вікон вимкнено або налаштовано на дозвіл відкриття цього вікна.

Якщо проблема залишається невирішеною, зверніться до нашої служби підтримки.
Вітаємо!
Рекомендацію зараховано!
Незабаром рекомендація зʼявиться на сторінці рієлтора.
Рекомендацію не зараховано.
Ви вже залишали рекомендацію даному рієлтору.
В пропозиції є незбережені дані.