45 000 грн/міс
207  грн/м²
торгівельне приміщення, приміщення вільного призначення, приміщення для надання послуг, офісне приміщення, банківське приміщення
217 м²
вчора
9 міс. тому
107 (сьогодні 0, вчора 1)
Опис
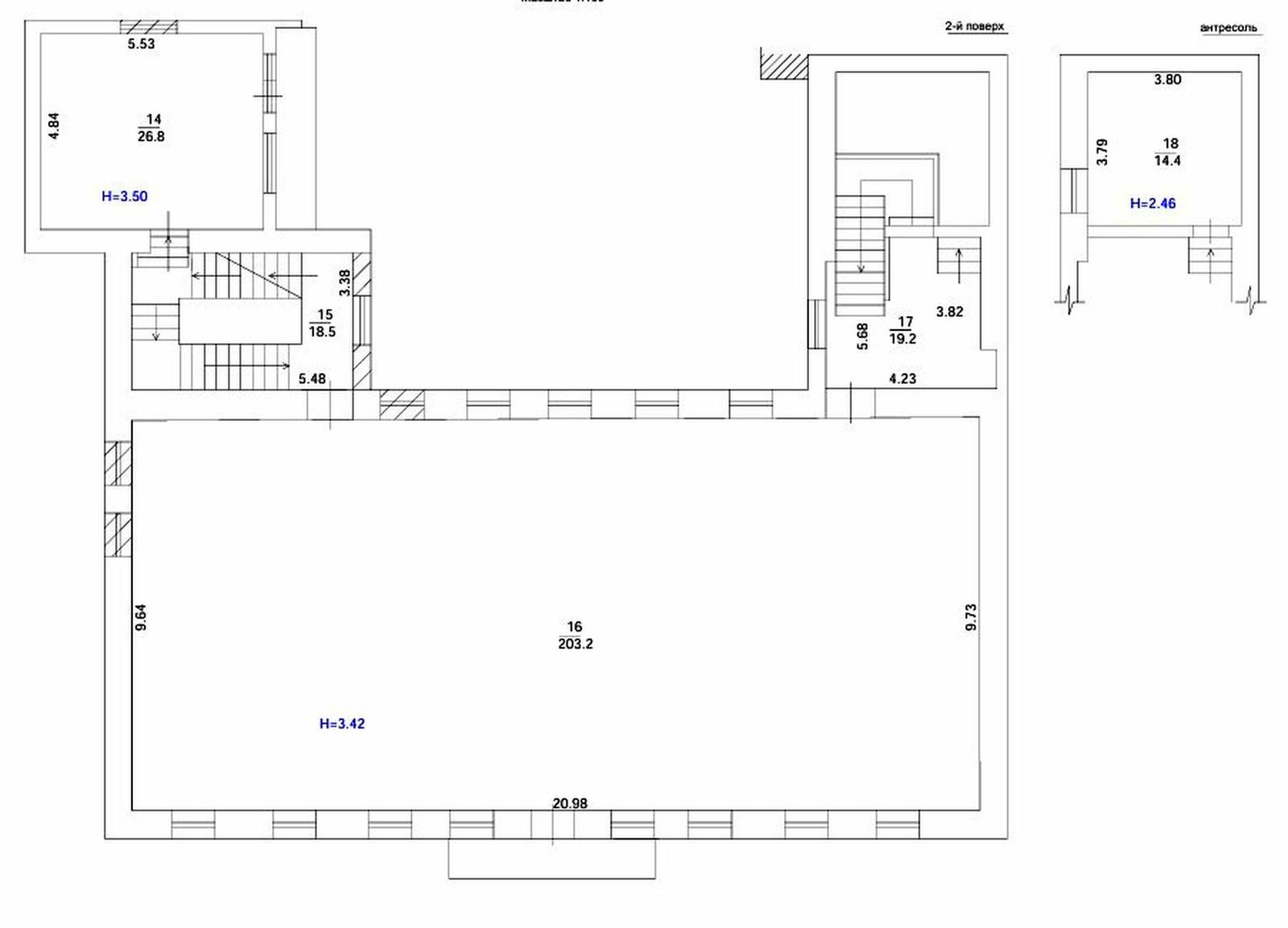
Оренда офісу, зал для конференцій, спортивна зала, галерея, біля ст. м. «Історичний музей»,

Пропонується в оренду приміщення біля ст. м. «Історичний музей», Бурсацький узвіз, 6

Приміщення розташоване на другому поверсі, загальною площею 217 кв.

Завдяки конструктивному рішенню будівлі (у приміщенні немає жодної внутрішньої стіни) є можливість зробити будь-яку конфігурацію і під будь-який вид діяльності, чи це робочий офіс з кабінетами, офіс для проведення семінарів та презентацій з великим конференц залом, спортивний зал, зал для хореографії, авторське ательє з робочими місцями...

У дворі зручне паркування для своїх автомобілів.

На сьогоднішній момент проводиться капітальна реконструкція, в ході якої можна внести корективи щодо: планування, оздоблення, колірного рішення під Ваш фірмовий стиль, електричного розведення, освітлення тощо.

Найближча станція метро «Історичний музей» розташована на відстані 30 м, до станції метро «пл. Конституції» 3 хвилини, до станції «Центральний ринок» 7 хвилин прогулянковим кроком.

Дивіться інші оголошення, можливо, вони Вас зацікавлять!!!
Деталі
Об'єкт комерційної нерухомості, Клас C, Приміщення в офісному центрі, Банківське приміщення, Офісне приміщення, Приміщення для надання послуг, Приміщення вільного призначення, Торгівельне приміщення. Об'єкт на 2 поверсі, У будівлі 2 поверхи. Комісія за послуги 50 %
Верифікований профіль
31
Рік досвіду
8
Років на сайті
Активних оголошень 12
Ексклюзивних об'єктів 0
Рекламна активність 0
Останній візит на сайт 2 дні тому
Рекомендувати
Адреса
Вашу скаргу прийнято!
Оберіть спосіб підтвердження
Щоб вашу рекомендацію було зараховано, підтвердіть свою особистість
* Особисті дані не відображатимуться на сайті та слугуватимуть лише для підтвердження особистості.
Як верифікуватись через Дію?
Зчитайте QR-код сканером у застосунку Дія й підтвердьте авторизацію Дія.Підписом
QR-код буде дійсний ще 02:00
Як верифікуватись через Bankid?
Верифікація BankID відкриється у новому вікні. Якщо сторінка верифікації не відкрилася, вікно було заблоковане вашим браузером.
Щоб дозволити відкриття вікна, виконайте такі кроки:

1. Перевірте адресний рядок браузера на повідомлення про помилку або піктограму блокування. Натисніть на нього.
2. Якщо у вас встановлено блокувальник спливаючих вікон, тимчасово відключіть його для цього сайту.
3. Перевірте налаштування вашого браузера і переконайтеся, що блокування спливаючих вікон вимкнено або налаштовано на дозвіл відкриття цього вікна.

Якщо проблема залишається невирішеною, зверніться до нашої служби підтримки.
Як верифікуватись через Дію?
Верифікація Дія відкриється у новому вікні. Якщо сторінка верифікації не відкрилася, вікно було заблоковане вашим браузером.
Щоб дозволити відкриття вікна, виконайте такі кроки:

1. Перевірте адресний рядок браузера на повідомлення про помилку або піктограму блокування. Натисніть на нього.
2. Якщо у вас встановлено блокувальник спливаючих вікон, тимчасово відключіть його для цього сайту.
3. Перевірте налаштування вашого браузера і переконайтеся, що блокування спливаючих вікон вимкнено або налаштовано на дозвіл відкриття цього вікна.

Якщо проблема залишається невирішеною, зверніться до нашої служби підтримки.
Вітаємо!
Рекомендацію зараховано!
Незабаром рекомендація зʼявиться на сторінці рієлтора.
Рекомендацію не зараховано.
Ви вже залишали рекомендацію даному рієлтору.
В пропозиції є незбережені дані.