83 000 $
954  $/м²
Лисенка вул.
87 / 36 / 37 м²
2 поверхи
1 сот
Таунхаус
3 кімнати
5 днів тому
2 тиж. тому
27 (сьогодні 2, вчора 2)
Опис
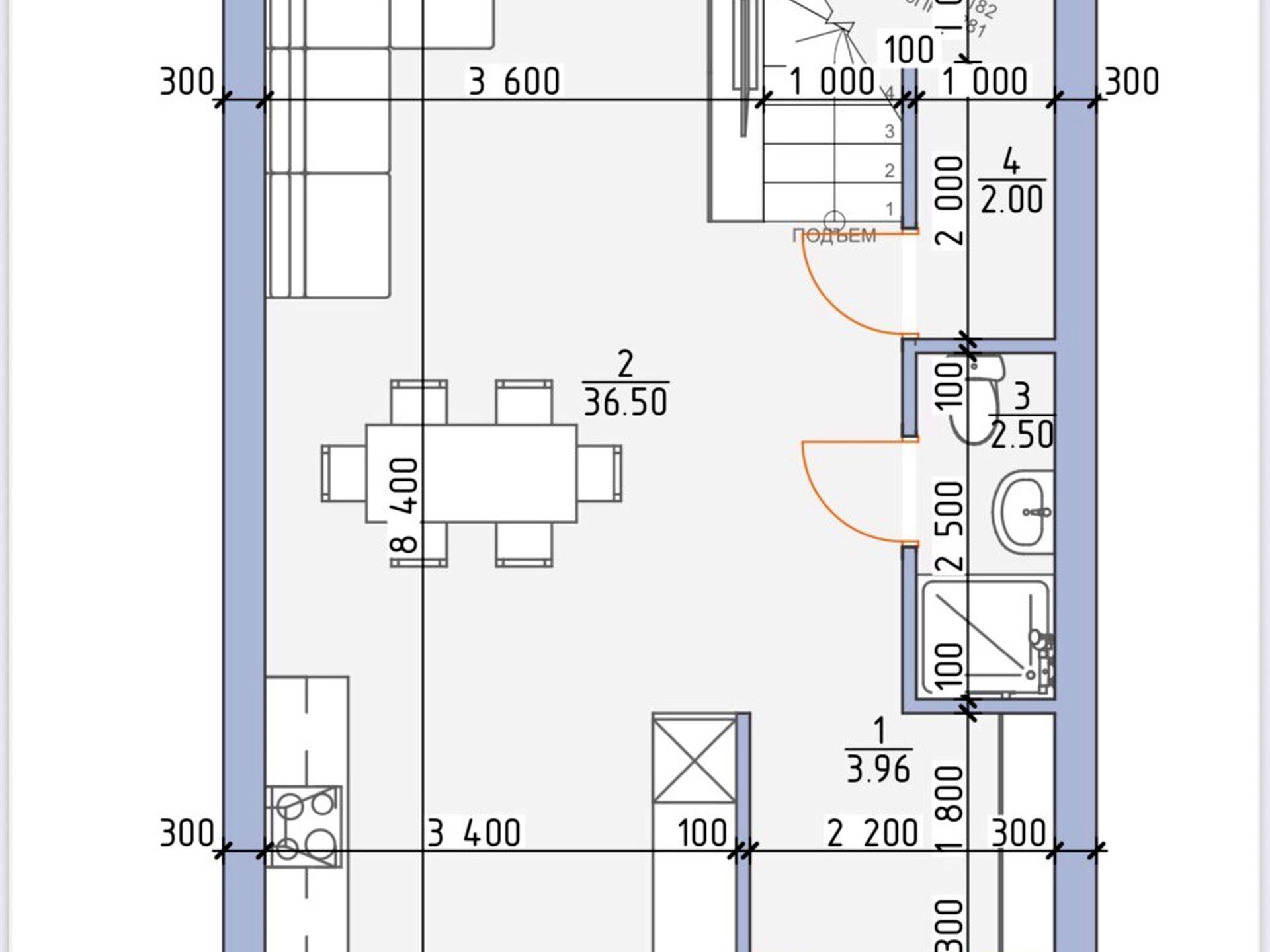
Пропонуємо до продажу сучасні таунхауси загальною площею 87 м² з додатковими 42 м² мансарди. Це комфортне житло, в якому продумане планування поєднується з якісними матеріалами та сучасними технологіями будівництва. На першому поверсі розміщена простора кухня-вітальня з виходом на терасу, санвузол і зручні сходи на другий поверх. Завдяки відкритому простору вітальня легко поєднує функціональність та затишок, створюючи ідеальне місце для сімейного проведення часу. На другому поверсі- три окремі кімнати та санвузол. Мансарда додає додаткові квадратні метри, які можна облаштувати під спальню, дитячу, кабінет чи зону для відпочинку.

Будинок зведений на монолітно-збірному фундаменті зі стінами з газобетону товщиною 300 мм та утепленням базальтовою ватою, що гарантує надійну теплоізоляцію. Декоративна обробка фасаду та фасадна плитка додають сучасного стилю.
До кожного таунхаусу належать власні паркувальні місця для автомобілів.
Таунхауси обладнані всіма необхідними міськими комунікаціями: заведено газ, воду, каналізацію, електрику потужністю 7 кВт (380В), а також інтернет.
Поруч досить розвинена інфраструктура, є магазини, дитячий садок, кав’ярні, заклади харчування.
Деталі
Таунхаус, 2 поверхи, 3 кімнати. Матеріал стін - газоблок. Площа ділянки 1 сотка. Тип кухні - кухня-студія. Централізована каналізація. Загальний стан будинку - Без ремонту. Газ природний. Холодна вода - водопровід. Гаряча вода - газовий котел. Опалення центральне. Кількість санвузлів: 2. Кількість паркомісць: 2. Кухонна плита газова. Кількість спален: 3. Без комісії
NID
Верифікований профіль
6
Років досвіду
1
Місяць на сайті
Активних оголошень 9
Ексклюзивних об'єктів 0
Рекламна активність 10423
Останній візит на сайт 5 днів тому
Рекомендувати
Планування

Адреса
Ірпінь, Лисенка вул.
Вашу скаргу прийнято!
Оберіть спосіб підтвердження
Щоб вашу рекомендацію було зараховано, підтвердіть свою особистість
* Особисті дані не відображатимуться на сайті та слугуватимуть лише для підтвердження особистості.
Як верифікуватись через Дію?
Зчитайте QR-код сканером у застосунку Дія й підтвердьте авторизацію Дія.Підписом
QR-код буде дійсний ще 02:00
Як верифікуватись через Bankid?
Верифікація BankID відкриється у новому вікні. Якщо сторінка верифікації не відкрилася, вікно було заблоковане вашим браузером.
Щоб дозволити відкриття вікна, виконайте такі кроки:

1. Перевірте адресний рядок браузера на повідомлення про помилку або піктограму блокування. Натисніть на нього.
2. Якщо у вас встановлено блокувальник спливаючих вікон, тимчасово відключіть його для цього сайту.
3. Перевірте налаштування вашого браузера і переконайтеся, що блокування спливаючих вікон вимкнено або налаштовано на дозвіл відкриття цього вікна.

Якщо проблема залишається невирішеною, зверніться до нашої служби підтримки.
Як верифікуватись через Дію?
Верифікація Дія відкриється у новому вікні. Якщо сторінка верифікації не відкрилася, вікно було заблоковане вашим браузером.
Щоб дозволити відкриття вікна, виконайте такі кроки:

1. Перевірте адресний рядок браузера на повідомлення про помилку або піктограму блокування. Натисніть на нього.
2. Якщо у вас встановлено блокувальник спливаючих вікон, тимчасово відключіть його для цього сайту.
3. Перевірте налаштування вашого браузера і переконайтеся, що блокування спливаючих вікон вимкнено або налаштовано на дозвіл відкриття цього вікна.

Якщо проблема залишається невирішеною, зверніться до нашої служби підтримки.
Вітаємо!
Рекомендацію зараховано!
Незабаром рекомендація зʼявиться на сторінці рієлтора.
Рекомендацію не зараховано.
Ви вже залишали рекомендацію даному рієлтору.
В пропозиції є незбережені дані.