Фільтри
6 оголошень
6 оголошень
АТЛАНТА
40 000 $
278 $/м²

Черешнева

144 / 64 / 18 м²
2 поверхи
17 сот
4 кімнати
сьогодні
Код об'єкта: 471706. АН "Атланта". Продається просторий будинок у затишному та екологічно чистому місці неподалік Львова в с.Ясниська. Будинок розташований на пагорбах біля кар’єру — ідеальний варіант для тих, хто цінує природу, тишу та комфорт. Переваги: -велика земельна ділянка — 17 соток (є місце під сад, альтанку, басейн) -до будинку проведене світло та газ -близько до Львова -гарні краєвиди, пагорби -поруч популярна зона відпочинку "Ясниський кар’єр" -тиха та спокійна місцевість Чудовий варіант як для постійного проживання, так і для відпочинку. Код об'єкта: 471706
Рієлтор
АТЛАНТА
40 000 $
278 $/м²

Черешнева, 9

єВідновлення
144 / 64 / 18 м²
2 поверхи
17 сот
2 кімнати
4 дні тому
Код об'єкта: 471706. АН "Атланта". Продається просторий будинок у затишному та екологічно чистому місці неподалік Львова в с.Ясниська. Будинок розташований на пагорбах біля кар’єру — ідеальний варіант для тих, хто цінує природу, тишу та комфорт. Переваги будинку: -велика земельна ділянка — 17 соток (є місце під сад, альтанку, басейн) -до будинку проведене світло та газ -близько до Львова -гарні краєвиди, пагорби -поруч популярна зона відпочинку "Ясниський кар’єр" -тиха та спокійна місцевість Чудовий варіант як для постійного проживання, так і для відпочинку. Код об'єкта: 471706
Рієлтор
Ера Нерухомості
100 000 $
355 $/м²

Сухомлинського

282 / 114 / 18 м²
3 поверхи
27 сот
5 кімнат
2006 рік побудови
2 тиж. тому
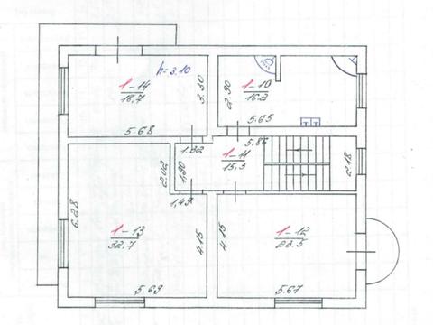
Продаж будинку в с. Ясниська з ділянкою 26,86 соток Будинок розташований на пагорбі з гарними панорамними краєвидами. Площа будинку 281,9 м2 Ділянка 26,86 соток, правильної форми, зручний доїзд. Характеристики будинку: • 5 житлових кімнат + кухня • Мансардний поверх (можливість облаштування додаткових кімнат) • Підвал • 3 санвузли • Гараж у будинку на 2 автомобілі • Незавершений ремонт • Розведена система опалення (батареї) • Опалення — твердопаливний котел • Можливість підвести газ у будинок з літньої кухні Комунікації та додатково: • Літня кухня з підведеним газом • Криниця на подвір’ї • Просторе подвір’я, тиха локація • Панорамні краєвиди Будинок з великим потенціалом для комфортного...
Рієлтор
АТЛАНТА
40 000 $
278 $/м²

Черешнева

144 / 64 / 18 м²
2 поверхи
17 сот
4 кімнати
3 тиж. тому
Продається просторий будинок у затишному та екологічно чистому місці неподалік Львова в с.Ясниська. Будинок розташований на пагорбах біля кар’єру — ідеальний варіант для тих, хто цінує природу, тишу та комфорт. Переваги: -велика земельна ділянка — 17 соток (є місце під сад, альтанку, басейн) -до будинку проведене світло та газ -близько до Львова -гарні краєвиди, пагорби -поруч популярна зона відпочинку "Ясниський кар’єр" -тиха та спокійна місцевість Чудовий варіант як для постійного проживання, так і для відпочинку. Код об'єкта: 471706. АН "Атланта".
Рієлтор
Shumilov Estate
148 500 $
900 $/м²

Тараса Шевченка

БЕЗ КОМІСІЇ
165 / 64 / 38 м²
2 поверхи
6 сот
4 кімнати
3 тиж. тому
Що таке якість? Цегла? Довговічність? Моноліт? А може якість, це то як ти відновлюєшся після активного дня? Думаю це все. І це все є у нас. КМ «Yasnyska 10» Продаж від забудовника. Що у нас ? Монолітно каркасне будівництво. Зовнішні стіни – цегла. Внутрішні перегородки – цегла. Проведена каналізація (стояки з лівньовками). Зовнішні утеплення – клінкер з пінопластом 20 см. Каналізація – септик. Електрика – 10 кіловат. Газ – є. Сейф кімната – в підвалі. У нас поряд: Школа – 1 хв. Магазини: продуктові та побутові – 3хв. Ресторан, кальян, піцерія – 5 хв. Кар’єр – 5 хв ( на машині). Свіже повітря – в постійному доступі. Є ще дещо, але це при особистому дзвінку. Тому телефонуйте.
PRO аккаунт
Рієлтор
Член ЛОР
Shumilov Estate
130 500 $
900 $/м²

Мирного

БЕЗ КОМІСІЇ
145 / 56 / 32 м²
2 поверхи
6 сот
4 кімнати
3 тиж. тому
Безпечний, комфортний та затишний будинок в 20 хвилинах від Львова. Що треба сім’ї для життя за місто: комфорт, інфраструктура, свіже повітря, 10 сусідів ). КМ «Yasnyska 10». Продаж від забудовника. Що у нас ? Монолітно каркасне будівництво. Зовнішні стіни – цегла. Внутрішні перегородки – цегла. Проведена каналізація (стояки з лівньовками). Зовнішні утеплення – клінкер з пінопластом 20 см. Каналізація – септик. Електрика – 10 кіловат. Газ – є. Сейф кімната – в підвалі. У нас поряд: Школа – 1 хв. Магазини: продуктові та побутові – 3хв. Ресторан, кальян, піцерія – 5 хв. Кар’єр – 5 хв ( на машині). Свіже повітря – в постійному доступі. Є ще дещо, але це при особистому дзвінку. Тому телефон...
PRO аккаунт
Рієлтор
Член ЛОР
14 оголошень
Sitalo Real Estate
430 000 $
1 438 $/м²

Буда, затишна, 5

299 / 75 / 54 м²
3 поверхи
44 сот
4 кімнати
сьогодні
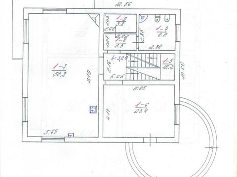
Продається маєток в селі Буда Львівської області. Цегляний будинок загальною площею 299 м.кв.. Площа ділянки 44 сотих. Основний будинок: 2 поверхи + цоколь. На першому поверсі розташована кухня-їдальня площею 54 м.кв., прихожа 22м.кв, санвузол 8м.кв. (душова кабіна) та гардеробна площею 4м.кв.. На другому поверсі три спальні кімнати та санвузол 16 м.кв. (ванна, душова). У кожній кімнаті — балкон. На третьому поверсі обладнано робочий кабінет, ігрова кімната, спальня та санвузол. Сучасний ремонт, якісні меблі та побутова техніка. Цоколь — повністю обладнаний спортзал з тренажерами. Котельня та підсобні приміщення. Окремі будівлі на території: Гостьовий будинок площею 150 м.кв, з сауною, басе...
Рієлтор
Сертифікований рієлтор АФНУ
Green Estate
будинок за адресою Бічна зелена будинок за адресою Бічна зелена будинок за адресою Бічна зелена
77 000 $
383 $/м²

Бічна зелена

ПРЕМІУМ БЕЗ КОМІСІЇ єОселя
201 / 130 / 33 м²
3 поверхи
1 сот
5 кімнат
сьогодні
🔥 Таунхаус БЕЗ КОМІСІЇ! Локація: Лісопотік (7 хв до Брюхович). Що всередині? 200 метрів сімейного простору. Кухня-вітальня 36,8 м Гараж + горище. Тепла підлога на двох рівнях (1-й поверх та напівцоколь). Всі комунікації розведені! Стан: Чорнові роботи виконані. Готовий до втілення ВАШОГО дизайну!
PRO аккаунт
Рієлтор
Сертифікований рієлтор СФНУ Член ЛОР
Malinka Real Estate
123 350 $
1 000 $/м²

Івана Франка

123 / 42 / 30 м²
2 поверхи
4 сот
4 кімнати
2026 рік побудови
1 тиж. тому
ПРОДАЖ БУДИНКУ Адреса — село Лісопотік, Львівська область Кількість кімнат — чотири. Поверховість — двоповерховий будинок. Матеріал стін — цегла. Земельна ділянка — 4.1соток, огороджена. Призначення — для будівництва і обслуговування житлового будинку. Загальна площа будинку — 123 м², житлова — 42 м², кухня — 30 м². Будинок в 0-циклі, тобто ще без ремонту. Опалення — передбачено під газовий котел. Санвузол — два. Перший поверх будинку включає: коридор, котельню, санвузол, кухню-вітальню та комору. Другий поверх: коридор, гардероб, санвузол, три житлові кімнати. Наявні комунікації: електрика 15 кВт / газ / свердловина / каналізація септик (глибина 60 м.). Особливості даного будинку — це /...
Рієлтор
АН Lviv Estate
110 000 $
547 $/м²

Шевченка

БЕЗ КОМІСІЇ
201 / 109 / 19 м²
2 поверхи
6 сот
5 кімнат
3 дні тому
Продаж будинку (спарка) в с. Лісопотік, район Бірки Пропонується до продажу будинок на два поверхи у тихому та зручному для проживання місці. Площа будинку: 201 м² Площа ділянки: 6.2 сотки Будинок у 0 циклі — встановлені вікна. Комунікації: • проведена електроенергія • зроблена каналізація (септик) Планування: 1 поверх: • кухня • санвузол • гараж • кімната з виходом на балкон 2 поверх (мансарда): • 4 кімнати • санвузол Додатково: • будинок утеплений мінеральною ватою • дах — металочерепиця • ділянка огороджена • поруч зупинка громадського транспорту Ціна: 110 000 $ Продаж без комісії для покупця.
Рієлтор
Golden City
144 870 $
1 100 $/м²

Коновальця, 42

БЕЗ КОМІСІЇ єОселя єВідновлення
132 / 65 / 33 м²
2 поверхи
2 сот
4 кімнати
2025 рік побудови
вчора
‼️Без КОМІСІЇ‼️ 🔥 Продаж сучасного котеджу в КМ Lisopotik Village ❗️єОселя ❗️єВідновлення Пропонується до продажу 2-поверховий котедж, ідеальний варіант для комфортного життя за містом 🌿 📐 Загальна площа: 131,7 м² 🌳 Ділянка: 2,3 сотки Планування: 🔹 1 поверх: кухня-вітальня, кімната, санвузол 🔹 2 поверх: 3 кімнати, санвузол, 2 балкони 🏡 Котедж зданий у травні 2025 року 🔌 Підведені всі комунікації 🔥 Тепла підлога 💧Власна свердловина 🌿 Озеленена територія 🔒 Закрита територія комплексу 🚗 Власне паркомісце ✨ Чудове поєднання комфорту, простору та затишку. ✨Є детальне відео. 📍За додатковою інформацією телефонуйте! 📍Також є інші варіанти, площею: - 132,5 м² - 133 м² - 119,4 м² - 119,2 м²...
Рієлтор
Empire-capital
295 000 $
1 639 $/м²

Коновальця, 1

180 / 80 / 35 м²
2 поверхи
6 сот
5 кімнат
6 днів тому
Продаж будинку в с. Лісопотік, вул. Коновальця Місцезнаходження: с. Лісопотік, 3 км до центру Брюхович Адреса: вул. Івана Франка Інфраструктура та комунікації: Будинок розташований у затишному місці з гарною транспортною доступністю до Брюхович та центру Львова. Опис будинку: Загальний стан: будинок з сучасним ремонтом, виконаним з використанням якісних матеріалів. Внутрішній інтер'єр: Простора вітальня Кухня з сучасною технікою та меблями Санвузли, обладнані сучасною сантехнікою Спальні кімнати з сучасними меблями Гардеробні кімнати Можливість облаштування додаткових приміщень за потреби Зовнішній вигляд: Сучасний фасад Огорожа з якісних матеріалів Ландшафтний дизайн Додаткові перева...
Рієлтор
132 000 $
1 000 $/м²

Коновальця, 3

132 / 79 / 29 м²
2 поверхи
3 сот
4 кімнати
2017 рік побудови
2 дні тому
Продаж таунхаусу 132 м² у КМ Lisopotik village | 3 сот. землі Пропонується на продаж двоповерховий таунхаус у котеджному містечку закритого типу Lisopotik village (с. Лісопотік). Ідеальний варіант для молодої сім'ї, яка цінує простір та чисте повітря. Основні характеристики: Площа: Загальна — 132 м², житлова — 79 м², кухня-студія — 29 м². Ділянка: 3 сотки (приватизована). Стан: 0-цикл (після будівельників). Планування: 1-й поверх: прихожа, санвузол, окрема кімната та простора кухня-студія з виходом у двір. 2-й поверх: три світлі спальні. 2- а санвузла. Є власний балкон, одна зі спалень — на велику терасу. 3-Й ПОВЕРХ: тераса яка може слугувати під басейн Технічне наповнення: Індиві...
Рієлтор
Сертифікований рієлтор АФНУ Сертифікований рієлтор СФНУ
Green Estate
48 000 $
490 $/м²

Центральна

98 / 40 / 12 м²
2 поверхи
7 сот
2 кімнати
2 міс. тому
Продаж будинку в селі Буда біля Львова Продається будинок у селі Буда, всього 10 хвилин від Львова. Тиха та мальовнича місцевість поруч з лісом — ідеально для проживання або дачі. Площа будинку — 98 м² Земельна ділянка — 7 сотих Будинок має два рівні, є можливість облаштувати додаткові кімнати на другому поверсі. Комунікації та переваги: • власна скважина • зручний під’їзд до будинку • гарна природа та спокійна місцевість • лише 10 хвилин до Львова Будинок має хороший потенціал для облаштування під власні потреби. 📞 Деталі за телефоном. Можливий огляд у зручний час.
PRO аккаунт
Рієлтор
Сертифікований рієлтор СФНУ Член ЛОР
Golden City
будинок за адресою Коновальця, 42 будинок за адресою Коновальця, 42 будинок за адресою Коновальця, 42
145 000 $
1 014 $/м²

Коновальця, 42

ПРЕМІУМ БЕЗ КОМІСІЇ єОселя єВідновлення
143 / 67 / 33 м²
2 поверхи
4 кімнати
вчора
Продаж без комісії . Двоповерховий котедж у селі Lisopotik village. 1 поверх: ☆ просторий коридор та хол ☆ велика кухня та вітальня- серця будинку для сімейних вечорів ☆ окремий кабінет або кімната для усамітнення-ідеально для роботи чи відпочинку ☆ санвузол ☆тераса для відпочинку на свіжому повітрі. 2 поверх: ☆ 3 просторі спальні- кожну можна облаштувати відповідно до власних побажань ☆ санвузол ☆ два балкони чудове місце для ранкової кави або вечірнього релаксу. Переваги: * тиха та екологічно чиста місцевість * закрита територія * сучасна архітектура * зручний доїзд до міста Цей котедж створений для комфорту , затишку та гармонії з природою. Загальна площа 143 метри квадратні Ці...
Рієлтор
Golden City
132 000 $
1 065 $/м²

Коновальця

БЕЗ КОМІСІЇ єОселя єВідновлення Відеотур КМ Lisopotik village
124 / 80 / 26 м²
2 поверхи
1 сот
4 кімнати
2024 рік побудови
вчора
Продаж котеджу у «Lisopotik Village» 🎉 Без комісії! Пропонується до продажу сучасний котедж у затишному котеджному містечку «Lisopotik Village» — ідеальне поєднання міського комфорту та приватності. 📐 Загальна площа: 123,74 м² 🏠 2 поверхи 🛏 3 спальні + кімната/гардеробна 🍽 Кухня-вітальня: 26,93 м² 🚿 Ванна кімната + окремий санвузол 🌿 Земельна ділянка: 0,184 га 🔑 Планування 1-го поверху: • Тамбур · коридор зі сходовою кліткою • Кабінет/кімната — 10,81 м² • Кухня-вітальня — 26,93 м² • Санвузол з душовою 🔑 Планування 2-го поверху: • 3 просторі спальні • Ванна кімната + санвузол • Кімната/гардеробна — 6,38 м² • Балкон 📍 Котеджне містечко «Lisopotik Village» — всього 10 км від Львова. Сучасн...
Рієлтор
Golden City
132 000 $
1 107 $/м²

Коновальця, 44-Б

БЕЗ КОМІСІЇ єОселя єВідновлення КМ Lisopotik village
119 / 57 / 27 м²
2 поверхи
1 сот
4 кімнати
2024 рік побудови
сьогодні
🌿 Втомились від міського шуму? Час жити інакше! 🏡 Котеджне містечко Lisopotik Village — 12 сучасних будинків у передмісті Львова, де кожна деталь продумана для вашого комфорту. ✅ Будинки від 119 до 196 м² ✅ Власна зелена ділянка ✅ Тераса на даху ✅ Вишукана архітектура + зручне планування ✅ Тиша, приватність і природа — за містом, але не далеко від нього 🌲 с. Лісопотік, Яворівський р-н, Львівська обл. Затишний двоповерховий будинок для тих, хто шукає справжній дім, а не просто стіни. Тут вже зроблено все найважче — залишилось додати своє. Про будинок: 4 кімнати 2 санвузли 119,4 м² загальної площі Є паркомісце Ділянка — 1.84 сотки Що вже готово: ✅ Стяжка зроблена ✅ Тепла підлога ✅ Ел...
Рієлтор
Golden City
132 000 $
1 107 $/м²

Гнатюка, 44

БЕЗ КОМІСІЇ єОселя єВідновлення КМ Lisopotik village
119 / 66 / 30 м²
1 поверх
2 сот
4 кімнати
вчора
Продаж ексклюзивного КОТЕДЖУ 119,2 м² у Lisopotik Village | ГОТОВИЙ ДО РЕМОНТУ 🔥 У продажу сучасний двоповерховий котедж у закритому котеджному містечку, розташованому серед лісу в с. Лісопотік (Бірки).Це поєднання приватності, тиші та зручного доїзду до Львова. Площа будинку — 119,2 м², ділянка — 2,3 сотки.Наявна парковка біля будинку, можна придбати ще 1 парковку за 6000S.  Просторе планування: велика кухня-вітальня з можливістю облаштування каміну, 4 ізольовані кімнати, гардеробна та 3 санвузли.Є великий балкон. Будинок зданий з уже виконаними ключовими роботами:3-камерні вікна Epsilon, тепла підлога, стяжка, штукатурка, встановлений газовий котел Immergas, електрика (10 кВт) 3 фази, під...
PRO аккаунт
Рієлтор
Golden City
160 000 $
1 113 $/м²

коновальцья 42

БЕЗ КОМІСІЇ єОселя єВідновлення КМ Lisopotik village
144 / 67 / 32 м²
2 поверхи
4 кімнати
2024 рік побудови
сьогодні
🏡 Продаж сучасного котеджу | КМ Lisopotik Village 📍 с. Лісопотік, Яворівський район ❗️БЕЗ КОМІСІЇ❗️ Стильний 2-поверховий котедж у закритому котеджному містечку — ідеальний варіант для життя або інвестиції. 🔹 Загальна площа: 143.7 м² 🔹 Житлова площа: 67 м² 🔹 Кухня-вітальня: 32.5 м² 🔹 Ділянка: ~2.3 сотки 🔹 Рік будівництва: 2025 🏠 Планування: 1 поверх: • Простора кухня-вітальня (32.5 м²) • Окрема кімната • Санвузол • Вихід на терасу 2 поверх: • 3 ізольовані спальні • Санвузол • Балкони 🔥 Комунікації та комфорт: ✔️ Індивідуальне газове опалення ✔️ Підігрів підлоги на 1 та 2 поверсі ✔️ Електрика — 10 кВт ✔️ Власна свердловина ✔️ Каналізація — септик 🚗 Територія: ✔️ Закрите котеджне містечк...
Рієлтор
Golden City
132 000 $
1 100 $/м²

львівська

БЕЗ КОМІСІЇ єОселя єВідновлення Відеотур КМ Lisopotik village
120 / 80 / 20 м²
2 поверхи
2 сот
4 кімнати
2024 рік побудови
сьогодні
Котедж біля Львова |Бірки - Лісопотік Сучасний котедж у затишному котеджному містечку — ідеальний варіант для життя поруч із природою, та близькістю до міста. 119,4 м² | 2 поверхи 4 кімнати 2 санвузли Ділянка — 2,3 сотки ✔️ Зроблена якісна стяжка ✔️ Тепла підлога ! ✔️ Світло — 10 кВт ✔️ Свердловина ✔️ Септик ✔️є паркомісце, додатково можна придбати паркомісця. Ціна — 132 000 $ Без комісії для покупця (Підходить під єОселю та єВідновлення) Координати: Відео огляд: Вже встановлений двохконтурний котел, Зручний доїзд до Львова, тиха та зелена локація, Є інші варіанти в цьому містечку....... Максим АН Golden City
Рієлтор