75 000 $
1 119  $/м²
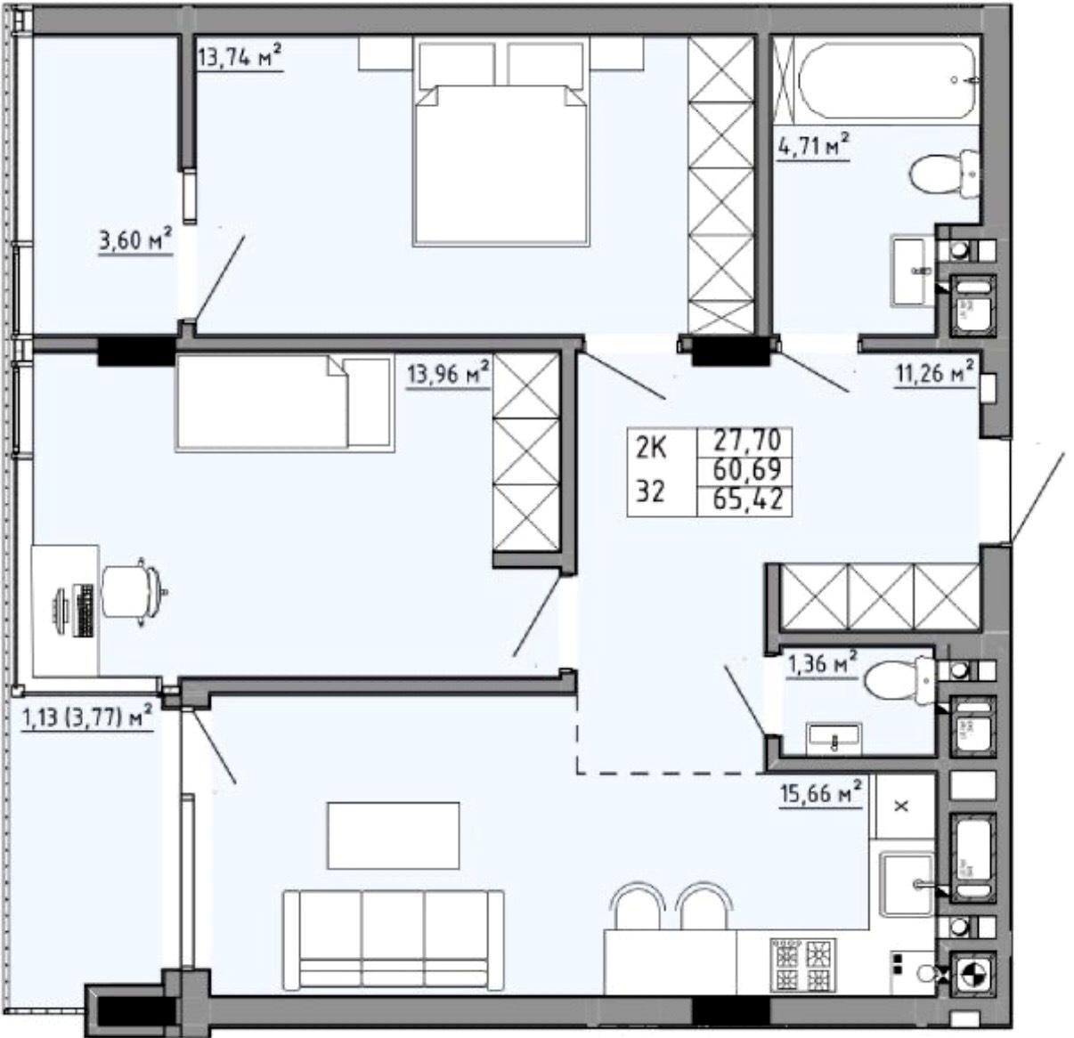
67 / 45 / 15 м²
поверх 3 з 6
Цегляна
Спец. проект
сьогодні
1 міс. тому
53 (сьогодні 1, вчора 3)
Опис
Продаж 2-кімнатної квартири в ЖК Family House, вул. Пилипа Орлика (Шевченківський район)

Простора квартира площею 67,15 м² на 3/6 поверсі, не кутова. Зручне планування: дві ізольовані кімнати, кухня 15,6 м², балкон та лоджія, два санвузли. Цегляний будинок, індивідуальне опалення (котел, батареї), стяжка та штукатурка.

Здача — 2 кв. 2025 року. Хороший район із розвиненою інфраструктурою — поруч школи та садки. Ідеально для проживання або інвестиції.
75 000$
Деталі
В квартирі 2 кімнати, висота стелі 2.7 метра, Технологія будівництва - Цегляна, Тип будинку - Спец. проект. Є газ. Загальний стан квартири - Без ремонту. Гаряча вода - газовий котел. Кількість санвузлів: 1. Тип кухні - кухня-студія. Кількість спален: 2. Комісія за послуги 100 %
Metrum Estate
Верифікований профіль
6
Місяців досвіду
5
Верифікованих рекомендацій
6
Місяців на сайті
Активних оголошень 40
Ексклюзивних об'єктів 0
Рекламна активність 13277
Останній візит на сайт сьогодні
Рекомендувати
Адреса
Вашу скаргу прийнято!
Оберіть спосіб підтвердження
Щоб вашу рекомендацію було зараховано, підтвердіть свою особистість
* Особисті дані не відображатимуться на сайті та слугуватимуть лише для підтвердження особистості.
Як верифікуватись через Дію?
Зчитайте QR-код сканером у застосунку Дія й підтвердьте авторизацію Дія.Підписом
QR-код буде дійсний ще 02:00
Як верифікуватись через Bankid?
Верифікація BankID відкриється у новому вікні. Якщо сторінка верифікації не відкрилася, вікно було заблоковане вашим браузером.
Щоб дозволити відкриття вікна, виконайте такі кроки:

1. Перевірте адресний рядок браузера на повідомлення про помилку або піктограму блокування. Натисніть на нього.
2. Якщо у вас встановлено блокувальник спливаючих вікон, тимчасово відключіть його для цього сайту.
3. Перевірте налаштування вашого браузера і переконайтеся, що блокування спливаючих вікон вимкнено або налаштовано на дозвіл відкриття цього вікна.

Якщо проблема залишається невирішеною, зверніться до нашої служби підтримки.
Як верифікуватись через Дію?
Верифікація Дія відкриється у новому вікні. Якщо сторінка верифікації не відкрилася, вікно було заблоковане вашим браузером.
Щоб дозволити відкриття вікна, виконайте такі кроки:

1. Перевірте адресний рядок браузера на повідомлення про помилку або піктограму блокування. Натисніть на нього.
2. Якщо у вас встановлено блокувальник спливаючих вікон, тимчасово відключіть його для цього сайту.
3. Перевірте налаштування вашого браузера і переконайтеся, що блокування спливаючих вікон вимкнено або налаштовано на дозвіл відкриття цього вікна.

Якщо проблема залишається невирішеною, зверніться до нашої служби підтримки.
Вітаємо!
Рекомендацію зараховано!
Незабаром рекомендація зʼявиться на сторінці рієлтора.
Рекомендацію не зараховано.
Ви вже залишали рекомендацію даному рієлтору.
В пропозиції є незбережені дані.