370 000 $
1 057
$/м²
Опис
КОД: 203969
Продається унікальна дворівнева квартира в історичному центрі Одеси – Мала Арнаутська ріг Бєлінського, за 5 хвилин від парку Шевченка та 10–15 хвилин пішки до моря. Розташована в пам’ятці архітектури — монументальній будівлі з відреставрованим дахом та доглянутою парадною (всього 3 квартири в під’їзді).
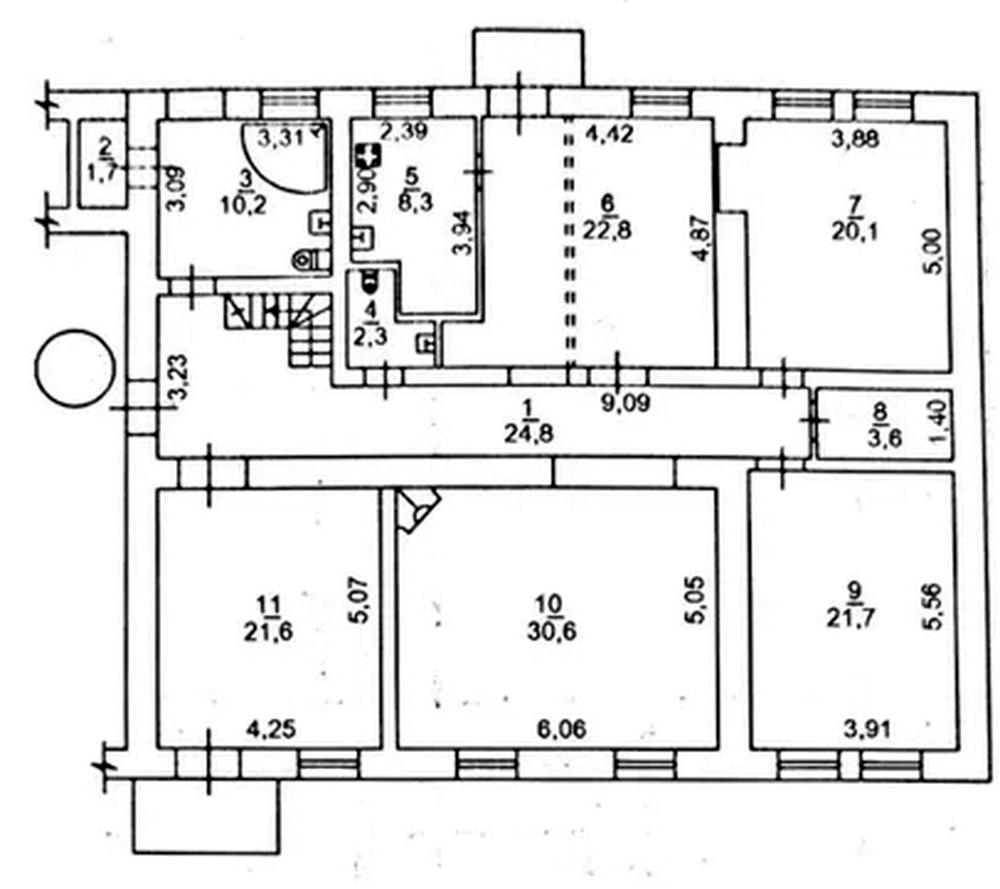
Загальна площа — 350 м² (за техпаспортом: 175 м² + 175 м²):
Перший рівень — 175 м²: 5 житлових кімнат, кухня, два санвузли, комора, два балкони. Якісний паркет, італійські двері, стелі — 3 метри.
Другий рівень — 185 м² за фактом (175 м² за техпаспортом): просторий відкритий простір під ремонт, що дає повну свободу планування.
Квартира двостороння — вікна виходять на тихий двір та вулицю Мала Арнаутська. Дуже сонячна. Індивідуальне опалення (електричний котел). Перед парадною — зручна паркувальна кишеня.
Усі документи в порядку. Хороші, інтелігентні сусіди. Рідкісна пропозиція в самому серці Одеси!
Продається унікальна дворівнева квартира в історичному центрі Одеси – Мала Арнаутська ріг Бєлінського, за 5 хвилин від парку Шевченка та 10–15 хвилин пішки до моря. Розташована в пам’ятці архітектури — монументальній будівлі з відреставрованим дахом та доглянутою парадною (всього 3 квартири в під’їзді).
Загальна площа — 350 м² (за техпаспортом: 175 м² + 175 м²):
Перший рівень — 175 м²: 5 житлових кімнат, кухня, два санвузли, комора, два балкони. Якісний паркет, італійські двері, стелі — 3 метри.
Другий рівень — 185 м² за фактом (175 м² за техпаспортом): просторий відкритий простір під ремонт, що дає повну свободу планування.
Квартира двостороння — вікна виходять на тихий двір та вулицю Мала Арнаутська. Дуже сонячна. Індивідуальне опалення (електричний котел). Перед парадною — зручна паркувальна кишеня.
Усі документи в порядку. Хороші, інтелігентні сусіди. Рідкісна пропозиція в самому серці Одеси!
Деталі
В квартирі 5 кімнат, висота стелі 3 метра. Загальний стан квартири - З ремонтом. Без комісії
Планування



















