Фильтры
23 объявления
23 объявления
АН Атланта Центр Нерухомості "Аркадійський"
коммерческая по адресу Полковника Гуляева просп. (Маршала Жукова), 111 коммерческая по адресу Полковника Гуляева просп. (Маршала Жукова), 111 коммерческая по адресу Полковника Гуляева просп. (Маршала Жукова), 111
350 000 $
2 083 $/м²

Полковника Гуляева просп. (Маршала Жукова), 111

ПРЕМИУМ БЕЗ КОМИССИИ ЖК Маршал-Сити
многофункциональное помещение
168 м²
2021 год постройки
3 дня назад
Коммерческое помещение в востребованном районе! К продаже предлагается фасадное помещение в Жемчужином квартале на Таирова, ЖК Маршал -Сити! Общая площадь помещения 168 м.кВ. , зонировано на 6 кабинетов. Проведена электрика, сантехника, установлены кондиционеры. Часть кабинетов облицованы, остальная часть помещения под покраску. Удобное месторасположения, выход в сторону жемчужин. Широкие светлые окна. Отличное предложение как для бизнеса (бьюти студию, супермаркет, кальянную, кафе и многое другое) , так и под арендный бизнес! Звоните, показы по договоренности.
Риелтор
Viktoria Grand Realty
33 000 $
688 $/м²

Центральная ул., 7

многофункциональное помещение
48 м²
вчера
Ваш Личный Оазис: 1-комнатная Квартира с Палисадником в Одессе (Лиманка/Червоный Хутор)! Представляем уникальное предложение: уютная и просторная 1-комнатная квартира 48 м² на минус первом этаже кирпичного дома, с собственным палисадником! Это идеальное решение для тех, кто ищет комфорт городской квартиры и прелести загородного дома. Квартира, Где Есть Все: * Просторная кухня — сердце дома, идеальное для встреч и кулинарных экспериментов. * Уютная спальня с возможностью зонирования, чтобы создать идеальное пространство для отдыха и работы. * Современный санузел и удобная кладовая для аккуратного хранения вещей. * Ваш собственный палисадник — уникальное место для утреннего кофе, цветов и...
Риелтор
Viktoria Grand Realty
35 000 $
729 $/м²

Центральная ул., 7

многофункциональное помещение
48 м²
2 дня назад
Продам коммерческое помещение под любой вид деятельности с палисадником — Одесса, р-н Таирова • Лиманка Идеально под офис, салон, студию, услуги, кабинетное размещение или сдачу в аренду. Возможна эксплуатация как для бизнеса, так и для комфортного проживания. 1 этаж кирпичного дома Площадь: 48 м² Собственный палисадник О помещении: • Нежилой фонд — подходит под любой вид деятельности • Свет, вода, отопление (котельная во дворе) • Грамотная планировка: можно организовать 2–3 кабинета, ресепшн или зону ожидания • Современный ремонт • Тёплый пол • Просторная кухня — легко переделывается под зону персонала, переговорную или клиентскую зону • Уютная спальня — можно использовать как отдель...
Риелтор
Viktoria Grand Realty
40 000 $
588 $/м²

Центральная ул., 7/1

помещение свободного назначения
68 м²
2 дня назад
Продам помещение, нежилой фонд в кирпичном доме, Червоный Хутор. Как первый этаж/10-ти этажного дома.Две ступеньки вниз, свое место для авто, по факту 100 метров, по документам 68. Все коммуникации. Ремонт, мебель для жилья. Генератор на воду и отопление.
Риелтор
Viktoria Grand Realty
42 000 $
618 $/м²

Центральная ул., 7/1

помещение свободного назначения
68 м²
2 дня назад
Продам помещение, нежилой фонд в кирпичном доме, Червоный Хутор. Как первый этаж/10-ти этажного дома.Две ступеньки вниз, свое место для авто, по факту 100 метров, по документам 68. Все коммуникации. Ремонт, мебель для жилья. Генератор на воду и отопление.
Риелтор
FLATPLACE
44 990 $
989 $/м²

Левитана ул., 15/4

БЕЗ КОМИССИИ ЖК ЖСК Левитана
многофункциональное помещение
46 м²
2016 год постройки
2 дня назад
Вашій увазі пропонується приміщення в нежитловому фонді, розташоване на першому поверсі ЖБК «Левітана» за адресою: вул. Райдужна, 15/4, з окремим входом з фасаду. Приміщення знаходиться в комерційній частині житлового будинку великого масиву «Райдужний». 2016 рік будівництва. Загальна площа становить 45,5 м². Кабінетне планування, де зараз облаштований салон краси. (Планування в оголошенні). Перевагою є те, що обʼєкт підходить під ведення різних бізнесів. На кожен із видів діяльності буде попит, бо довкола знаходиться величезна кількість будинків (майже 5000 квартир) з цільовою аудиторією споживачів. Розвинена інфраструктура. Приміщення готове до продажу. Перегляди по домовленості....
Риелтор
Crystal Estate
560 000 $
787 $/м²

Дальний пер., 37

помещение свободного назначения
712 м²
2 дня назад
Будинок в ЖМ Совіньйон, що окремо стоїть. Будівля, що окремо стоїть, в сучасному стилі, спроектована і продумана до дрібниць, для зручності ведення бізнесу. Підходить до будь-якої комерційної діяльності, особливо під медичний центр. Побудовано з дотриманням усіх вимог щодо безпеки та екології. Три поверхи, 712 м2., стоїть на 4,6 сотках землі. Скління – теплий алюмінієвий профіль Alutech, зелене скло. Фундамент пальовий, покрівля, що обслуговується (полімерна мембрана), утеплення пінополістирол 80 мм. Підведено всі комунікації, заведено три фази по 12 кіловат. Продумане та зручне паркування. На особливу увагу заслуговує розташування будівлі, близькість до моря і до соціальної інфраструктури...
Риелтор
113 280 $
1 200 $/м²

Чикаленка, 95/1

помещение свободного назначения
94 м²
2020 год постройки
3 дня назад
Ликвидное помещение универсального назначения в новом ЖК. Есть все необходимые коммуникации. Свободная планировка. Возможно использование под магазин, салон красоты, кондитерскую - что вам угодно! Густонаселенный район. площадь помещения 94.4 кв м, потолки 3 метра, состояние-от строителей. МПО. цена: 1200$/кв.м. Переуступка
Риелтор
BPS Consulting
1 500 000 $
968 $/м²

Жемчужная ул., 20

БЕЗ КОМИССИИ
помещение свободного назначения
1550 м²
3 дня назад
Ваша нова можливість у світі комерційної нерухомості! Продається унікальна трьохповерхова будівля в густонаселеному мікрорайоні Таїрова, навпроти ЖК "Маршал Сіті". Характеристики: Загальна площа будівлі: 1550 кв.м. Побудовано в 2014 році, з усіма сучасними комунікаціями. Земельна ділянка у приватній власності – 0,25 га. Висота стель: 4.5 м на 1-му поверсі, 3.5 м на 2-му та 3-му поверхах. Є можливість дообладнання 4-го поверху площею до 455 кв.м. Можливість дообладнання фасаду на 200 кв.м. Переваги: Розташування в густонаселеному мікрорайоні, яке забезпечує постійний потік потенційних клієнтів. Гнучка функціональність будівлі підходить для будь-якого виду діяльності. Відмінна інфраструк...
Риелтор
Атланта
45 000 $
577 $/м²

Радужный массив ул., 14

многофункциональное помещение
78 м²
3 дня назад
Код объекта: 329027. АН "Атланта". Продается действующий бизнес! Современный центр развития детей. Центр имеет отличную репутацию и пользуется популярностью. Имеет свой сайт в Инстаграмм, там вы можете увидеть работу центра. Общая площадь 78 м. Отличный ремонт и обстановка . Есть все, что нужно для комфортной работы центра. В таком районе, как Радужный, детские сады и развивающие центры очень востребованы! Звоните уже!
Риелтор
Атланта
56 500 $
1 087 $/м²

Гранитная ул., 1

многофункциональное помещение
52 м²
2019 год постройки
4 дня назад
Код об'єкта: 243957. АН "Атланта". Продається комерційне приміщення з якісним ремонтом в ЖК "Радужний" на Маршала Жукова/Левитана. Приміщення з вільним плануванням, ремонт виконаний в світлих тонах. Повноцінний перший поверх, власний фасадний вхід. Великі вітринні вікна. Комунальні послуги проведені, підключена сигналізація. Підійде для різних видів діяльності: салон, студія танців, центр розвитку, магазин та інше. Дзвоніть, організуємо показ у зручний для вас час.
Риелтор
Атланта
25 000 $
630 $/м²

Радужный массив ул., 19/4

многофункциональное помещение
40 м²
2016 год постройки
4 дня назад
Object code: 240112. Представляем вашему вниманию уникальное предложение - помещение под бизнес в жилом массиве Радужный, Одесса! Помещение с высоким потенциалом для реализации ваших самых смелых идей. Общая площадь 39.7 квадратных метров, включая санузел и подсобное помещение-кладовку. Высота потолков здесь составляет 3.1 метра, что создает ощущение простора и свободы. Это помещение находится на цокольном этаже, с отдельным входом, по фасадной стороне дома Здесь есть все необходимые коммуникации - электричество, вода, городская канализация. Приходите и убедитесь сами во всех преимуществах этого предложения. Данное помещение подойдет для различных видов деятельности и откроет перед вами без...
Риелтор
АН Стандарт
65 000 $
1 548 $/м²

Жемчужная ул., 1б

многофункциональное помещение
42 м²
4 дня назад
Коммерческое помещение в новом ЖК 56 Жемчужина. Жилой комплекс построен по новейшим современный технологиям: закрытая охраняемая территория, круглосуточное видеонаблюдение, ухоженная территория. Коммерческое помещение, общей площадью 42 м2, находится на первом этаже. Поделено на 2 отдельных одинаковых помещения с выведенными санузлами в каждом. Состояние от строителей. Густонаселенный район. Весь первый этаж выделен под коммерческие помещения. Здесь может быть любой магазин, салон красоты, офис, курсы и другой вид коммерческой деятельности.
Риелтор
55 000 $
873 $/м²

Строительная ул., 50-Г

многофункциональное помещение
63 м²
2021 год постройки
6 дней назад
Предлагается к продаже коммерческое помещение идеально подходящие под коворкинг, салон красоты или ресторан. Удобный подъезд и парковка. Отдельный вход , панорамные окна, современный ремонт. Документы готовы к сделке, помещение не требует вложений.
Риелтор
Атланта
350 000 $
237 $/м²

Молодёжная ул., 28

помещение свободного назначения
1475 м²
6 дней назад
Код об'єкта: 332201. АН "Атланта". Пропонується до продажу комерційна територія, розташована на ділянці 12 соток у с. Лиманка, Овідіопольського району (за 3 км від Таврія В Маршал). На ділянці розташовані дві будівлі із червоної цегли площею 1123 кв.м. та 352 кв.м. На першому поверсі першої будівлі розташовані два ремонтні бокси площею 66 кв.м. та 66,8 кв.м. Висота боксу 6м. Також є приміщення для обслуговуючого персоналу боксу площею 6,7 кв.м., санвузол, душова кімната (1,1 та 3,4 кв.м.) та два склади площею 26,7 кв.м. кожен На другому поверсі будівлі розташовані два офісні приміщення площею (16 та 16,7 кв.м.) та квартири (двокімнатні) у кількості 2 шт. площею 38,5 та 38,9 кв.м. На третьом...
Риелтор
83 000 $
943 $/м²

Академика Вильямса ул., 93/1

многофункциональное помещение
88 м²
6 дней назад
У продажу комерційне приміщення в новому житловому комплексі Київського району. Загальна площа 88,3 м2 з правильним функціональним плануванням. Секція не стадії будівництва. Заведені всі необхідні комунікації, будуть встановлені якісні вхідні двері та металопластикові панорамні вікна. Ліквідне розташування приміщення із зручною парковкою біля комплексу. Житловий район із зручною транспортною роз' вязкою. Вигідна пропозиція. Телефонуйте!
Риелтор
80 000 $
800 $/м²

Спортивна ул., 3/2

многофункциональное помещение
100 м²
6 дней назад
Продам велике приміщення площею в 100м² . Вільне планування. Зданий будинок. Три мокрі точки. Великі панорамні вікна. Оперативний показ! Ціна найнижча в комплексі.
Риелтор
Dominanta
1 600 000 $
2 488 $/м²

Полковника Гуляева просп. (Маршала Жукова), 111

помещение свободного назначения
643 м²
2019 год постройки
1 нед. назад
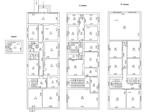
Запусти бізнес одразу — будівля, яка вже працює на тебе Заходь. Налаштовуй. Приймай клієнтів з першого дня Уяви: відкриваєш двері — і простір уже готовий. Заводь команду. Розміщуй обладнання. Починай прийом. Перший поверх — зустрічай, консультуй, працюй: 7 кабінетів + хол. Підіймайся вище — масштабуйся: 4 кабінети на 2 рівні. Запускай операційний блок: мийна, буфер, 2 палати — все продумано. Третій поверх — розвивай: 6 кабінетів + конференц-зал. Проводь навчання. Збирай семінари. Рости. Обладнуй під будь-який формат: клініка, реабілітація, садок, SPA. Працюй без обмежень. Включай комфорт: 18 кондиціонерів — контролюй клімат. WiFi, відеонагляд, сигналізація — тримай усе під контролем....
Риелтор
Helping
55 000 $
1 170 $/м²

Гранитная ул., 1

помещение свободного назначения
47 м²
2 нед. назад
Продається фасадне комерційне приміщення під будь-який вид діяльності * ЖМ Райдужний * загальна площа 47м. кв, перший поверх, не цокільне приміщення * великі вітринні вікна * приміщення знаходиться у новому житловому комплексі зі своїм фасадним входом, встановлені якісні вікна * висота стель 3.7 м * зручна транспортна розв'язка Телефонуйте, погодимо показ
PRO аккаунт
Риелтор
Helping
110 000 $
1 100 $/м²

Гранитная ул., 1

помещение свободного назначения
100 м²
2 нед. назад
Продаються два комерційних приміщення під будь-який вид діяльності * ЖМ Райдужний * загальна площа 100м. кв, перший поверх, не цокільне приміщення * великі вітринні вікна * приміщення знаходяться у новому житловому комплексі, у кожного свій фасадний вхід (можливо поєднати) * висота стель 3.7 м * зручна транспортна розв'язка Телефонуйте, погодимо показ
PRO аккаунт
Риелтор