Фильтры
147 объявлений
147 объявлений
Корпорація новобудов
27 800 $
970 $/м²

Грушевского Николая ул., 2е

1 комната
28.66 / 13 / 10 м²
этаж 8 из 10
сегодня
Терміновий продаж квартири-студії у сучасній новобудові на перетині вулиць Грушевського та Заньковецької. Розвинена інфраструктура, власний торговий центр на території, а також поруч школи, садочки, ТЦ "Токіо", ринок, парк, озеро, зупинка транспорту, а до центру міста всього 7 хв. на авто. Здача: грудень 2025 року. Загальна площа квартири: 28.66 м². Знаходиться на 8-му поверсі з 10-ти новобудови з ліфтом та консьєрж-сервісом. Планування: кухня-вітальня, суміжний санвузол, балкон. Монолітно-каркасна технологія будівництва, стіни з керамоблоку, утеплені мінватою. Передбачено резервне живлення - генератор (всі будинки у комплексі). Наявне укриття. У квартирі чорновий стан ремонту, індиві...
PRO аккаунт
Риелтор
Альянс
40 500 $
925 $/м²

Станционная ул., 36

2 комнаты
43.8 / 30 / 5.7 м²
этаж 5 из 5
сегодня
Продаж 2-кімнатноі квартири в Ужгороді. Поверх 5/5 Загальна площа: 43,8 м² Вікна поміняні (склопакети) Санвузол роздільний. Кімнати суміжні. Є газова колонка для підігріву води. Поміняний лічильник на світло. Підʼізд в хорошому стані З балкону гарний вигляд на залізничний вокзал. Поряд магазини, кавʼярні, автобусна зупинка, автовокзал, пошта, піцерія, супермаркет тощо. Чудовий варіант для здачі в оренду ( ніколи не буде простоювати) Але і для власного житла хороший варіант ( недалеко школа, дитячий садочок, хороша транспортна розвʼязка) Ціна 40 500$ 📞 [телефон скрыт]Вероніка [ссылка скрыта].ua
PRO аккаунт
Риелтор
Альянс
48 000 $
1 500 $/м²

Тлехаса ул., 81

1 комната
32 / 16 / 8 м²
этаж 1 из 9
сегодня
🏡 Продаж 1-кімнатної квартири в Ужгород 📍 вул. Тлехаса Пропонується компактна та затишна квартира з хорошим плануванням. ▪️ поверх 1/9 ▪️ Площа — 32 м² ▪️ Індивідуальне електричне опалення ▪️ Газ заведений у квартиру ▪️ Балкон Квартира стане чудовим варіантом для інвестування або комфортного проживання. Зручна локація, розвинена інфраструктура, швидкий доступ до центру міста. 💰 Ціна 48 000$ 📞 [телефон скрыт]Вероніка [ссылка скрыта].ua
PRO аккаунт
Риелтор
Polovka
44 090 $
1 050 $/м²

Грушевского Николая ул., (Будинок 2)

БЕЗ КОМИССИИ ПЕРЕУСТУПКА ТЦ "Палладиум" ЖК Etalon Gold
1 комната
41.99 / 13.9 / 19.2 м²
этаж 6 из 14
вчера
БЕЗ КОМІСІЇ! Продаж 1-кімнактної квартири в ЖК Etalon Gold Переваги: - Підземний паркінг - Повне розтермінування - Тепловий насос у квартирах - Комерційні приміщення в комплексі - Басейн на території - Закритий двір - Футбольне поле Комлектація : - Чорнова штукатурка - Чистова стяжка - Електрика підведена до квартири - Вікна - Двері - Індивідуальне електричне опалення - Тепловий насос - Водопостачання та каналізація Опис: Пропонується квартира у житловому комплексі Etalon Gold, розташованому за адресою вул. Грушевського 2 в Ужгороді. Це сучасний житловий комплекс, створений для тих, хто цінує комфорт, безпеку та продумані рішення для щоденного життя. Підземний паркінг забезпечує зручність...
Риелтор
Альянс
45 000 $
984 $/м²

Загорская ул., 111

2 комнаты
45.73 / 31.93 / 5.9 м²
этаж 2 из 3
вчера
Продається 2-кімнатна квартира в Ужгороді. Загальна площа - 45,73м/кв. Поверх 2/3 Індивідуальне газове опалення. Закритий двір. Будинок цегляний. Квартира підготована до ремонта. Локація: вул. Загорська ( міськрайонний суд) Розглядається переписка по єВідновленню.
PRO аккаунт
Риелтор
Nestera
45 403 $
1 080 $/м²

Мукачевская ул., 44

БЕЗ КОМИССИИ ПЕРЕУСТУПКА Православная набережна
1 комната
42.04 / 14.01 / 13.68 м²
этаж 5 из 7
2025 год постройки
вчера
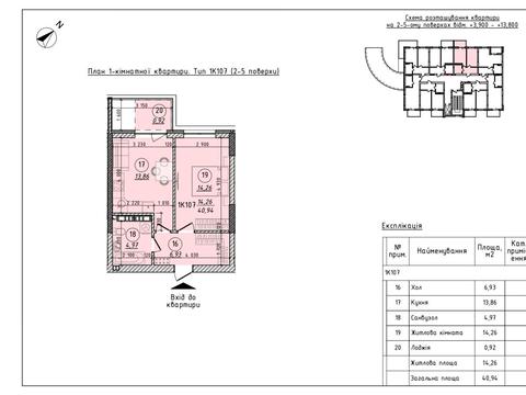
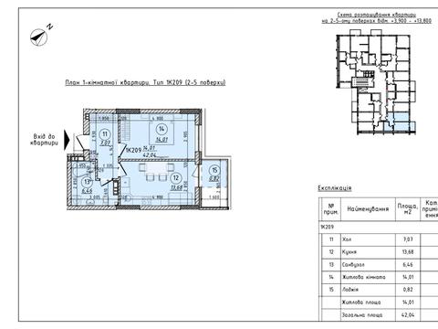
Пропонується до продажу 1-кімнатна квартира (поверхи 2-5) в сучасному ЖК 44 Avenue — першому комплексі з сонячними панелями та повною автономністю. Основні переваги комплексу: • Бізнес-клас, 2 будинки по 7 поверхів • Автономне індивідуальне опалення в кожній квартирі • Сонячні панелі та резервне живлення • Монолітно-каркасна технологія, стіни — цегла • Високі стелі 3.05 м, які дають відчуття простору • Закрита територія, концепція «двір без авто» • Підземний паркінг (є зарядки для електрокарів) • Сховище в паркінгу, облаштоване за всіма нормами • Ландшафтний дизайн, дитячий майданчик, зони відпочинку • Підтримка системи «розумний дім» Фінансові умови: • Базова ціна — від 1200 $/м2 • Знижки...
PRO аккаунт
Риелтор
Nestera
44 215 $
1 080 $/м²

Мукачевская ул., 44

1 комната
40.94 / 14.26 / 13.86 м²
этаж 5 из 7
2025 год постройки
вчера
Пропонується до продажу 1-кімнатна квартира (поверхи 2-5) в сучасному ЖК 44 Avenue — першому комплексі з сонячними панелями та повною автономністю. Основні переваги комплексу: • Бізнес-клас, 2 будинки по 7 поверхів • Автономне індивідуальне опалення в кожній квартирі • Сонячні панелі та резервне живлення • Монолітно-каркасна технологія, стіни — цегла • Високі стелі 3.05 м, які дають відчуття простору • Закрита територія, концепція «двір без авто» • Підземний паркінг (є зарядки для електрокарів) • Сховище в паркінгу, облаштоване за всіма нормами • Ландшафтний дизайн, дитячий майданчик, зони відпочинку • Підтримка системи «розумний дім» Фінансові умови: • Базова ціна — від 1200 $/м2 • Знижки...
PRO аккаунт
Риелтор
Variant
47 300 $
1 100 $/м²

Загорская ул., (Будинок 9)

ПЕРЕУСТУПКА ЖК For Life
1 комната
43 / 11 / 17 м²
этаж 7 из 8
вчера
Продається однокімнатна квартира в м. Ужгород, вул. Баб’яка 60, ЖК For Life. Секція 2 та об’єкт здається в експлуатацію – 4 квартал 2026 р. Хороша інвестиція, це заощадження ваших коштів. Будинок восьмиповерховий- будується по монолітно каркасній технології, заповнений цеглою та додатково утеплений 15 см мінватою, монтуються енергозберігаючі вікна. Територія буде озеленена, викладена бруківкою, облаштована дитячими майданчиками, парковою та підземним паркінгом, під відеонаглядом , закритого типу. До вашої уваги пропонуємо квартиру на сьомому поверсі, площею 43.26 м.кв. Забудовником надається таке наповнення: якісні вхідні двері, заведений силовий кабель без розводки, розведена сантехнік...
PRO аккаунт
Риелтор
Variant
40 950 $
1 050 $/м²

Волошкова, 32

ПЕРЕУСТУПКА
1 комната
39 / 14 / 18 м²
этаж 2 из 3
вчера
Продається однокімнатна квартира в ЖК Еліт Парк-1, по вул. Волошкова 32, мік. Ближня Сторожниця. Будинок зданий в експлуатацію. Можна проводити внутрішні роботи в квартирі. Будинок триповерховий, побудований по монолітно-каркасній технології, заповнений цеглою та додатково утеплений. Поряд розташована зручна та велика паркова зона по периметру будинку, а також великий дитячий майданчик. До вашої уваги пропонуємо квартиру площею 38.6 м.кв на третьому поверсі, з виглядом на котеджне містечко. Зручне та продумане планування: кухня – студія з виходом на балкон, спальня, санвузол, балкон. Всередині квартири забудовник надає таке наповнення: розведена сантехніка, тепла підлога по всій квартир...
PRO аккаунт
Риелтор
Variant
46 340 $
1 252 $/м²

Легоцкого ул., 64

ПЕРЕУСТУПКА ТЦ "Арена"
1 комната
37 / 11 / 15 м²
этаж 9 из 9
2024 год постройки
2 дня назад
Продається 1-кімнатна квартира в м. Ужгород, вул. Легоцького 64\б (Новий район) в новому сучасному комплексі “West towers”. Будинок номер 5, здається в експлуатацію 2-3 квартал 2026 р Тут передбачений підземний паркінг, територія закритого типу, цілодобовий відеонагляд, дитячий майданчик та паркова зона. Будинок дев’ятиповерховий- цегляний монолітний, додатково утеплений 10 мінеральною ватою, вікна шестикамерні, якісні сертифіковані вхідні двері, два ліфти, ОСББ. Для вас пропонуємо квартиру з сучасним плануванням площею 37.07 м.кв на 9 поверсі. Всередині квартири буде виконано такі роботи: розведена електрика та сантехніка, стіни поштукатурені, чистова стяжка, встановлено електрокотел із...
PRO аккаунт
Риелтор
Альянс
40 000 $
1 104 $/м²

Еньковская ул., 25

1 комната
36.22 / 13 / 10.9 м²
этаж 3 из 4
2016 год постройки
2 дня назад
🔴 Продається 1-кімнатна квартира в ЖК «Озерний край» 🔴 Ціна: 40 000 $ Поверх: 3 з 5 Загальна площа: 36,22 м² Площа кухні: 10,90 м² Кімнат: 1 Опалення: індивідуальне газове ✔️ Новобудова (житловий фонд від 2021 р.) ✔️ Комфорт: балкон, паркувальне місце ✔️ Планування: кухня з балконом, 1 окрема кімната, суміжний санвузол ✔️ Візуалізація кухні-вітальні, коридора – вже готова 📞 [телефон скрыт]Неллі АЛЬЯНС - агентство нерухомості https://[ссылка скрыта].ua/
PRO аккаунт
Риелтор
Альянс
50 000 $
1 000 $/м²

Лаврищева ул., 10

2 комнаты
50 / 25 / 8 м²
этаж 2 из 3
2 дня назад
🟢Продається 2 кімнатна квартира м. Ужгород 🟢 ✅Загальна площа 50 м2 ✅Поверх 2 ✅Індивідуальне електричне опалення, є газ, кондиціонер. ✅Нещодавно був зроблений ремонт. ✅Квартира готова до продажу ✅Ціна : 50000$ 📞 [телефон скрыт]Неллі
PRO аккаунт
Риелтор
Paradise
30 500 $
953 $/м²

Гагарина ул. (Юрия Гагарина), (Будинок 1)

ПЕРЕУСТУПКА ЖК Звездный
1 комната
32 / 10.76 / 11.85 м²
этаж 7 из 10
3 дня назад
Продається однокімнатна квартира в новобудові по вул. Карпатської України - ЖК Зоряний. Квартира розташована на 7 поверсі дев'ятиповерхового будинку. Складається з окремої спальні з виходом на балкон, кухні, суміжного санвузлу. Комплектація: двоконтурний газовий котел, радіатори, чорнова штукатурка, чистова стяжка в житловій кімнаті, базова розводка електрики, довод води до санвузла та кухні. Друга черга будівництва - введення 4 квартал 2026р. Огляд та деталі за телефоном
PRO аккаунт
Риелтор
Paradise
47 775 $
1 050 $/м²

Капушанская ул., (Будинок)

1 комната
45.5 / 13.2 / 16.6 м²
этаж 4 из 12
3 дня назад
Продається квартира з великим балконом в житловому комплексі комфорт-класу - ЖК Nova City! Особливості об’єкта: • Якісні енергозберігаючі вікна – тепло і економія у кожній квартирі. • Фасад з якісним утепленням мінеральною ватою – збереження енергії навіть у найхолодніші дні. • Підземна парковка під усією територією ЖК – зручність та безпека для вашого авто. Комплектація квартир: чорнова штукатурка, стяжка в житловій кімнаті, вхідні двері та вікна, радіатори, базовка розводка води та електрики, автономне газове опалення на даху (дахова котельня). Локація: • Зручний район – все необхідне поруч. • Торгово-розважальні центри, школи, дитячі садочки, базар із свіжими продуктами прямо від вироб...
PRO аккаунт
Риелтор
Альянс
49 000 $
1 069 $/м²

Загорская ул., 28-А

2 комнаты
45.83 / 31.93 / 5.4 м²
этаж 2 из 3
3 дня назад
🏠 Продаж 2-х кімнатної квартири 🏠 📍Локація - вул. Загорська. ◾️ Загальна площа - 45.83 м². ◾️ Поверх - 2/3. ◾️ 2 прохідні кімнати, суміжний санвузол. ◾️ Квартира майже повністю оббита до цегли, лише 1 кімната ще в процесі. ◾️ Водопостачання, каналізація централізовані. ◾️ Газопостачання індивідуальне ( котел ). ◾️ Поруч школа, садочки, супермаркети, автобусна зупинка. ◾️ Є свій сарай та огород. ◾️ Все інше в процесі зачистки. 💰 Ціна - 49 000$. 📱 [телефон скрыт]Вероніка
PRO аккаунт
Риелтор
Paradise
41 370 $
1 050 $/м²

Капушанская ул., (Будинок)

1 комната
39.4 / 14.1 / 12.4 м²
этаж 3 из 12
3 дня назад
Продається квартира в житловому комплексі комфорт-класу - ЖК Nova City! Особливості об’єкта: • Якісні енергозберігаючі вікна – тепло і економія у кожній квартирі. • Фасад з якісним утепленням – збереження енергії навіть у найхолодніші дні. • Підземна парковка під усією територією ЖК – зручність та безпека для вашого авто. Комплектація квартир: чорнова штукатурка, стяжка в житловій кімнаті, вхідні двері та вікна, радіатори, базовка розводка води та електрики. Локація: • Зручний район – все необхідне поруч. • Торгово-розважальні центри, школи, дитячі садочки, базар із свіжими продуктами прямо від виробників – усе для вашого комфорту. Введення в експлуатацію - 30.06.2027р. Це ідеальне місц...
PRO аккаунт
Риелтор
Альянс
29 000 $
753 $/м²

Молодіжна, 10

1 комната
38.5 / 18.1 / 7.8 м²
этаж 5 из 5
3 дня назад
🏡 Продається 1-кімнатна квартира в с. Розівка (Ужгородський р-н) 📍 5 поверх з 5 у цегляному будинку 📐 Загальна площа – 38 м² 🍳 Кухня – 8 м² 🛋 Кімната – простора (18 м²) 🚿 Санвузол суміжний 🔥 Індивідуальне газове опалення ✔ Зручне планування (є балкон). 💵 Ціна: 29 000 $
PRO аккаунт
Риелтор
Variant
40 800 $
1 200 $/м²

Августина Волошина ул., (Будинок 7)

ПЕРЕУСТУПКА ЖК Квадрат
1 комната
34 / 8 / 14 м²
этаж 2 из 5
5 дней назад
Продається однокімнатна квартира в мік. Минай, вул. Волошина 7, ЖК Квадрат. Будинок п’ятиповерховий новобудова – здається в експлуатацію 1-й квартал 2026 р. В будинку буде ліфт, ОСББ, територія закритого типу, декілька дитячих майданчиків, велика та зручна парковка. До вашої уваги пропонуємо квартиру площею 34 м.кв на другому поверсі. Планування: прихожа – де можна розмістити гардеробну, суміжний санвузол, кухня–студія, окрема кімната. Вікна виглядають на внутрішній дворик та парковку, що дає можливість новим власникам насолоджуватися тишиною. Всередині надається таке наповнення забудовником: вхідні двері , внутрішні стіни поштукатурені, розведена електрика та сантехніка, чистова стяжка,...
PRO аккаунт
Риелтор
Variant
45 630 $
1 170 $/м²

Електрозаводська ул., 45

БЕЗ КОМИССИИ Стадион "Спартак"
1 комната
39 / 14 / 15 м²
этаж 3 из 9
1 нед. назад
Продається однокімнатна квартира від представника забудовника із виглядом на річку та парк по вул. Курортна 45 (район Корятовича), ЖК Спортивний. Здача в експлуатацію другий квартал 2026 р. Будинок цегляний монолітно – каркасний, дев’ятиповерховий (1-й поверх комерція та офіси, 2-9 житлові). Буде ліфт, дитячий майданчик, парковка, бомбосховище згідно норм ДБН, лобі біля 50 м.кв з освітленням та інтернетом (резервні акумулятори). До вашої уваги пропонуємо однокімнатну квартиру площею 38.72 м.кв на третьому поверсі. Зручне та продумане планування. В квартирі буде зроблено забудовником: чистова стяжка, встановлені міжкімнатні перестінки, стіни поштукатурені, заведено воду та електрику в ква...
PRO аккаунт
Риелтор
Альянс
29 000 $
763 $/м²

Молодіжна, 2

1 комната
38 / 18.1 / 7.8 м²
этаж 5 из 5
1 нед. назад
🏡 Продається 1-кімнатна квартира в с. Розівка (Ужгородський р-н) 📍 5 поверх з 5 у цегляному будинку 📐 Загальна площа – 38 м² 🍳 Кухня – 8 м² 🛋 Кімната – простора (18 м²) 🚿 Санвузол суміжний 🔥 Індивідуальне газове опалення 🏗 Потребує ремонту ✔ Зручне планування (є балкон) 💵 Ціна: 29 000 $ 📞 [телефон скрыт]Олександра АЛЬЯНС - агентство нерухомості
PRO аккаунт
Риелтор