600 $/міс
7  $/м²
Трускавецька вул., (Будинок Г)
торгівельне приміщення, приміщення вільного призначення, виробниче приміщення, склад, приміщення для надання послуг, офісне приміщення, банківське приміщення
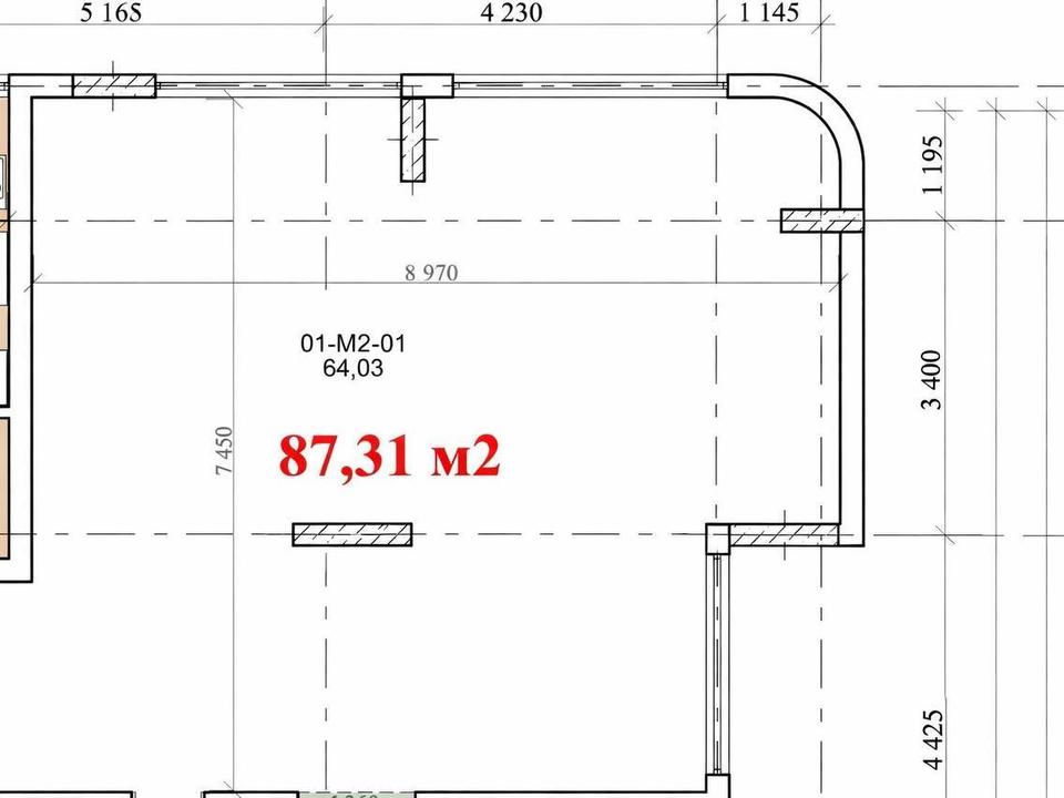
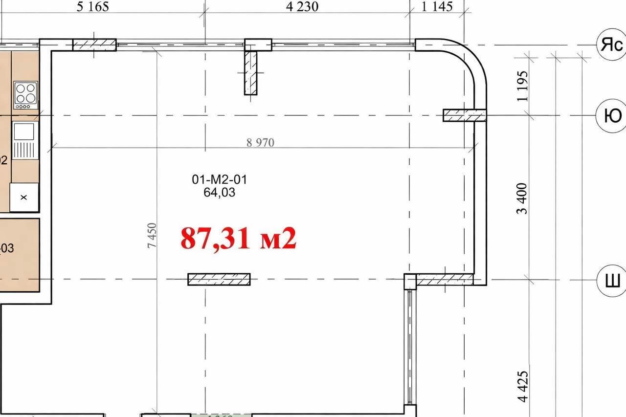
87.31 м²
2025 рік побудови
3 дні тому
1 тиж. тому
1 (сьогодні 0, вчора 0)
Опис
Оренда комерційного приміщення в ЖК по вул. Трускавецька, 115

Здається в оренду фасадне комерційне приміщення у сучасному житловому комплексі.

Локація: вул. Трускавецька, 115
Площа: 87, 31 м²
Поверх: 1 з 15 (секція Г)

Планування:
open space площею близько 64 м²
окремий кабінет
кухня
санвузол

Є можливість перепланування під ваш бізнес. Власник готовий надати ремонтні канікули.

потужність електроенергії 15 кВт
висота стелі 3 м
індивідуальне газове опалення
всі комунікації підключені
панорамні вікна
цегляні стіни

Фасадне приміщення у заселеному багатоквартирному будинку.
Підійде під офіс, салон, магазин, студію або інший вид діяльності.

Є відеоогляд.
Деталі
Об'єкт комерційної нерухомості, Клас B, Приміщення в житловому будинку, Банківське приміщення, Офісне приміщення, Приміщення для надання послуг, Склад, Виробниче приміщення, Приміщення вільного призначення, Торгівельне приміщення. Об'єкт на 1 поверсі, У будівлі 15 поверхів. Будинок побудований в 2025 році. У приміщенні 1 кімната. Безбар'єрність: вхід у будинок на рівні землі, дверні отвори в будинку шириною понад 0.9 м. Комісія за послуги 100 %
Metrum Estate
Верифікований профіль
Silver partner
3
Роки досвіду
16
Верифікованих рекомендацій
1
Рік на сайті
Активних оголошень 40
Ексклюзивних об'єктів 0
Рекламна активність 10555
Останній візит на сайт сьогодні
Рекомендувати
Адреса
Вашу скаргу прийнято!
Оберіть спосіб підтвердження
Щоб вашу рекомендацію було зараховано, підтвердіть свою особистість
* Особисті дані не відображатимуться на сайті та слугуватимуть лише для підтвердження особистості.
Як верифікуватись через Дію?
Зчитайте QR-код сканером у застосунку Дія й підтвердьте авторизацію Дія.Підписом
QR-код буде дійсний ще 02:00
Як верифікуватись через Bankid?
Верифікація BankID відкриється у новому вікні. Якщо сторінка верифікації не відкрилася, вікно було заблоковане вашим браузером.
Щоб дозволити відкриття вікна, виконайте такі кроки:

1. Перевірте адресний рядок браузера на повідомлення про помилку або піктограму блокування. Натисніть на нього.
2. Якщо у вас встановлено блокувальник спливаючих вікон, тимчасово відключіть його для цього сайту.
3. Перевірте налаштування вашого браузера і переконайтеся, що блокування спливаючих вікон вимкнено або налаштовано на дозвіл відкриття цього вікна.

Якщо проблема залишається невирішеною, зверніться до нашої служби підтримки.
Як верифікуватись через Дію?
Верифікація Дія відкриється у новому вікні. Якщо сторінка верифікації не відкрилася, вікно було заблоковане вашим браузером.
Щоб дозволити відкриття вікна, виконайте такі кроки:

1. Перевірте адресний рядок браузера на повідомлення про помилку або піктограму блокування. Натисніть на нього.
2. Якщо у вас встановлено блокувальник спливаючих вікон, тимчасово відключіть його для цього сайту.
3. Перевірте налаштування вашого браузера і переконайтеся, що блокування спливаючих вікон вимкнено або налаштовано на дозвіл відкриття цього вікна.

Якщо проблема залишається невирішеною, зверніться до нашої служби підтримки.
Вітаємо!
Рекомендацію зараховано!
Незабаром рекомендація зʼявиться на сторінці рієлтора.
Рекомендацію не зараховано.
Ви вже залишали рекомендацію даному рієлтору.
В пропозиції є незбережені дані.