115 000 $
833
$/м²
Вовчинецька вул.
БЕЗ КОМІСІЇ
138 / 45 / 33 м²
2 поверхи
2 сот
Дуплекс
3 кімнати
2 тиж. тому
7 міс. тому
25 (сьогодні 0,
вчора 0)
Опис
Продаж дуплексу в с. Вовчинець. Найпопулярніша локація міста.
Закрита територія, всього 6-будинків.
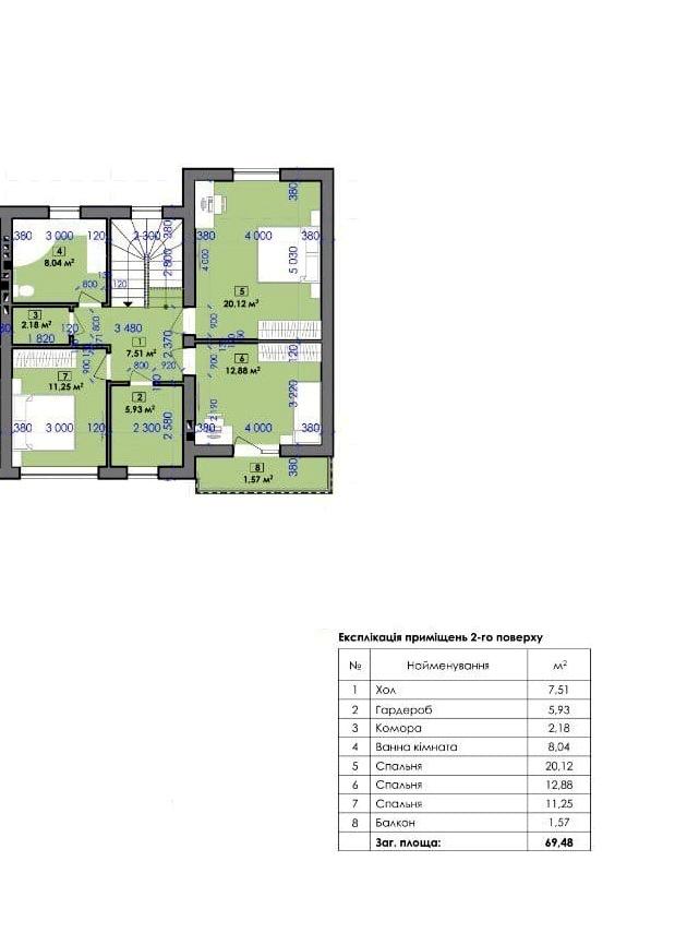
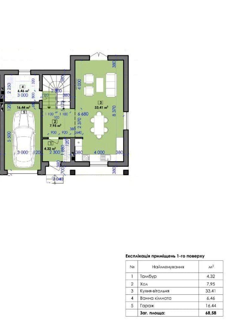
Загальна площа 138м2, ділянка 2,18сот.
Всі міськи комунікації: газ, електрика (10кВт), вода та водовідведення.
Ідеальне планування: 3-и окремі спальні, кухня-студія понад 30м2 + гараж.
Якісне цегляне будівництво та гіпсова штукатурка внутрішніх стін.
Асфальтований під'їзд, заселений масив, ТЦ "Метро" в 5-ти хв. на авто.
Додаткова інформація за телефоном.
Закрита територія, всього 6-будинків.
Загальна площа 138м2, ділянка 2,18сот.
Всі міськи комунікації: газ, електрика (10кВт), вода та водовідведення.
Ідеальне планування: 3-и окремі спальні, кухня-студія понад 30м2 + гараж.
Якісне цегляне будівництво та гіпсова штукатурка внутрішніх стін.
Асфальтований під'їзд, заселений масив, ТЦ "Метро" в 5-ти хв. на авто.
Додаткова інформація за телефоном.
Деталі
Дуплекс, 2 поверхи, 3 кімнати. Площа ділянки 2 сотки. У будинку є Ванна, Гараж. Загальний стан будинку - Без ремонту. Газ природний. Без комісії
У будинку є
На ділянці є

| Активних оголошень | 6 |
| Ексклюзивних об'єктів | 0 |
| Рекламна активність | 980 |
| Останній візит на сайт | 1 тиждень тому |
Рекомендувати
Історія зміни ціни
| 02.03.2026 | - 15 000 $ | 115 000 $ |
| 13.11.2025 | + 30 000 $ | 130 000 $ |
| 08.10.2025 | 100 000 $ |















