3 500 $/міс
17  $/м²
офісне приміщення
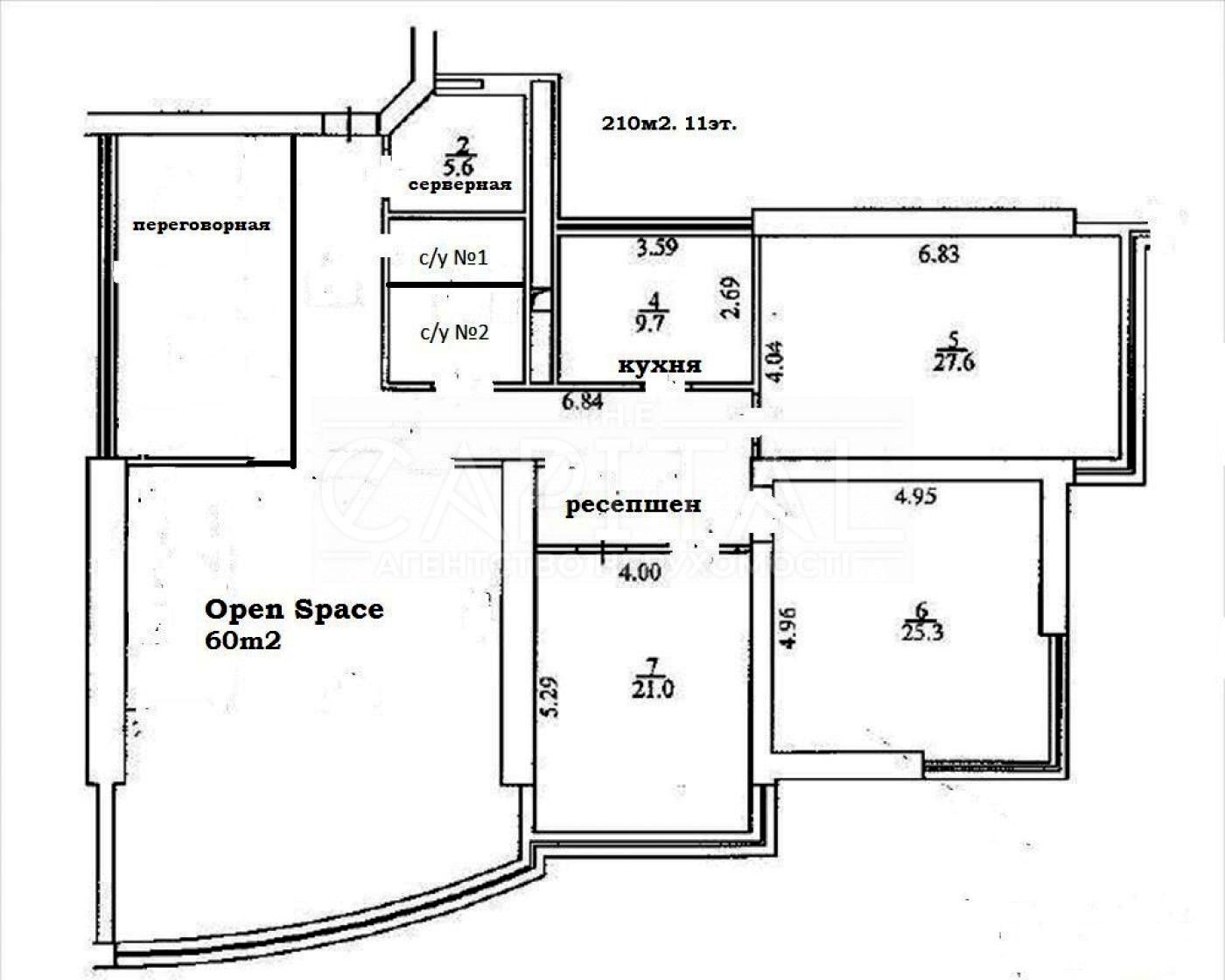
210 м²
3 тиж. тому
10 міс. тому
5 (сьогодні 0, вчора 0)
Опис
ренда офиса в БЦ «Carnegie Tower” по адресу Кловский спуск 7.

Общей площадью 200 м2
Этаж: 11/47

Планировка:
- openspace;
- 3 раздельных кабинета;
- переговорка;
- кухня;
- с/узлы;
- серверная.

Преимущества локации:
- центр Печерского района;
- 6 минут ходьбы от станции метро “Кловская”;
- наличие подземного и гостевого паркинга.

Преимущества объекта:
- жилой фонд;
- офис с мебелью;
- круглосуточная охрана бизнес-центра;
- система контроля доступа на этаж — объект;
- система видеонаблюдения в зонах общего пользования;
- система кондиционирования воздуха в зонах общего пользования и офисах непосредственно.
Деталі
Об'єкт комерційної нерухомості, Клас A, Приміщення в житловому будинку, Офісне приміщення. Об'єкт на 11 поверсі, У будівлі 36 поверхів. Комісія за послуги 50 %
THE Capital
Верифікований профіль
1
Рік на сайті
Активних оголошень 49
Ексклюзивних об'єктів 0
Рекламна активність 2793
Останній візит на сайт сьогодні
Рекомендувати
Адреса
Вашу скаргу прийнято!
Оберіть спосіб підтвердження
Щоб вашу рекомендацію було зараховано, підтвердіть свою особистість
* Особисті дані не відображатимуться на сайті та слугуватимуть лише для підтвердження особистості.
Як верифікуватись через Дію?
Зчитайте QR-код сканером у застосунку Дія й підтвердьте авторизацію Дія.Підписом
QR-код буде дійсний ще 02:00
Як верифікуватись через Bankid?
Верифікація BankID відкриється у новому вікні. Якщо сторінка верифікації не відкрилася, вікно було заблоковане вашим браузером.
Щоб дозволити відкриття вікна, виконайте такі кроки:

1. Перевірте адресний рядок браузера на повідомлення про помилку або піктограму блокування. Натисніть на нього.
2. Якщо у вас встановлено блокувальник спливаючих вікон, тимчасово відключіть його для цього сайту.
3. Перевірте налаштування вашого браузера і переконайтеся, що блокування спливаючих вікон вимкнено або налаштовано на дозвіл відкриття цього вікна.

Якщо проблема залишається невирішеною, зверніться до нашої служби підтримки.
Як верифікуватись через Дію?
Верифікація Дія відкриється у новому вікні. Якщо сторінка верифікації не відкрилася, вікно було заблоковане вашим браузером.
Щоб дозволити відкриття вікна, виконайте такі кроки:

1. Перевірте адресний рядок браузера на повідомлення про помилку або піктограму блокування. Натисніть на нього.
2. Якщо у вас встановлено блокувальник спливаючих вікон, тимчасово відключіть його для цього сайту.
3. Перевірте налаштування вашого браузера і переконайтеся, що блокування спливаючих вікон вимкнено або налаштовано на дозвіл відкриття цього вікна.

Якщо проблема залишається невирішеною, зверніться до нашої служби підтримки.
Вітаємо!
Рекомендацію зараховано!
Незабаром рекомендація зʼявиться на сторінці рієлтора.
Рекомендацію не зараховано.
Ви вже залишали рекомендацію даному рієлтору.
В пропозиції є незбережені дані.