12 000 $/міс
7
$/м²
офісне приміщення
1631 м²
вчора
8 міс. тому
56 (сьогодні 1,
вчора 1)
Опис
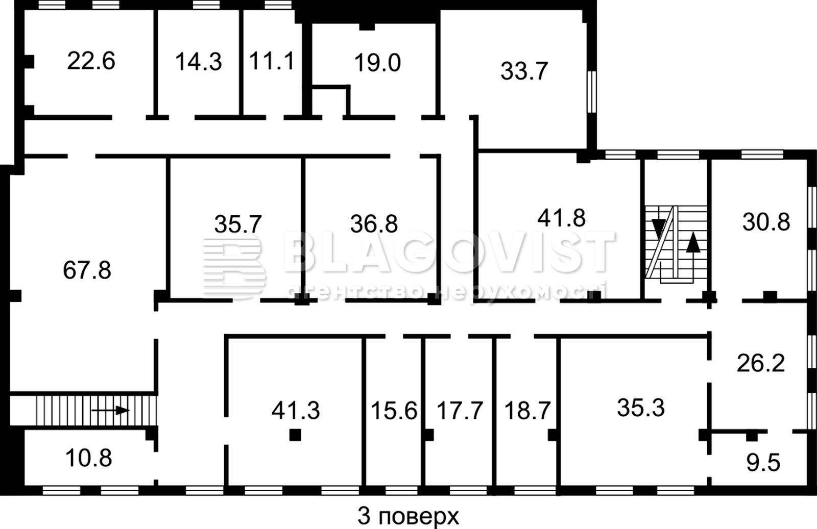
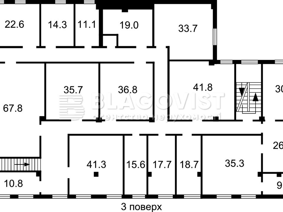
Почайнинська, окремо розташована будівля, 3 поверх., площа: 1 631,0 кв.м.
3-х поверховий будинок: 1 поверх: вхідна група та офісні приміщення, 2 та 3 поверх: офіси, проведено новий ремонт приміщень с/в. Електрика – 76 кВт 2 введення (власний розподільчий щит у будівлі); Водопостачання та каналізація - центральна. Опалення – центральне (власний тепло-пункт). Будівля розташована у відмінному місці ділової активності, поряд з БЦ АСТАРТА, супермаркети, відділення банків, Бізнес центри. Станція метро Контрактова площа в пішій доступності (500 м).
3-х поверховий будинок: 1 поверх: вхідна група та офісні приміщення, 2 та 3 поверх: офіси, проведено новий ремонт приміщень с/в. Електрика – 76 кВт 2 введення (власний розподільчий щит у будівлі); Водопостачання та каналізація - центральна. Опалення – центральне (власний тепло-пункт). Будівля розташована у відмінному місці ділової активності, поряд з БЦ АСТАРТА, супермаркети, відділення банків, Бізнес центри. Станція метро Контрактова площа в пішій доступності (500 м).
Деталі
Об'єкт комерційної нерухомості, Окремо стояча будівля, Офісне приміщення. Об'єкт на 1 поверсі, У будівлі 3 поверхи. У приміщенні 6 кімнат або більше. Комісія за послуги 50 %
Історія зміни ціни
| 16.02.2026 | + 1 500 $ | 12 000 $ |
| 02.09.2025 | 10 500 $ |







