8 000 $/міс
52
$/м²
Комісія 50%
Золоті Ворота
Історичний центр
Театр опери та балету
Володимирський собор
Ботанічний сад ім. акад. О. В. Фоміна
Афанасівський яр
приміщення для надання послуг, офісне приміщення
155 м²
сьогодні
8 міс. тому
35 (сьогодні 0,
вчора 0)
Опис
Дизайнерський офіс з меблями в самому центрі Києва, Золоті Ворота , Театр Опери, Володимирський Собор, Софійська Площа, Ярославів Вал, Посольський квартал.
Адреса: вулиця Богдана Хмельницького, 32.
метро Золоті ворота (2 хвилини пішки).
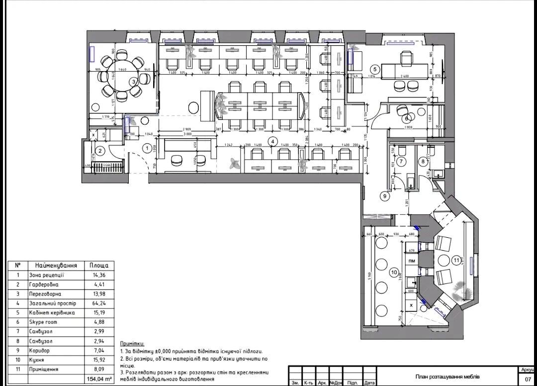
Повна комплектація меблями на 23 робочих місця.
- Площа 150м2
- Поверх 2 (фасадний вхід, та фасадні вікна)
- Фонд-житловий
- Робочих місць – до 20
- ОРЕНДА - 8000$ + комунальні.
- Можливий продаж
Комісія ріелтора 50%
ПЛАНУВАННЯ:
- ресепшн;
- робоча зона;
- кабінет керівника;
- переговорна кімната;
- кухня;
- Skype room;
- гардеробна;
- санвузол
Новий сучасний дизайнерський ремонт із застосуванням нових технологій дизайну.
- Офіс повністю укомплектований сучасними новими якісними меблями.
- На кухні є вся необхідна для офісу техніка.
- Система кондиціювання.
ЛОКАЦІЯ:
Прекрасне місце розташування офісу: зручна транспортна розв'язка, паркінг і все необхідне для успішного ведення бізнесу.
Метро: Золоті Ворота, Університет, Театральна.
ЗАПРОШУЮ ВЛАСНИКІВ НЕРУХОМОСТІ ДО СПІВПРАЦІ
Адреса: вулиця Богдана Хмельницького, 32.
метро Золоті ворота (2 хвилини пішки).
Повна комплектація меблями на 23 робочих місця.
- Площа 150м2
- Поверх 2 (фасадний вхід, та фасадні вікна)
- Фонд-житловий
- Робочих місць – до 20
- ОРЕНДА - 8000$ + комунальні.
- Можливий продаж
Комісія ріелтора 50%
ПЛАНУВАННЯ:
- ресепшн;
- робоча зона;
- кабінет керівника;
- переговорна кімната;
- кухня;
- Skype room;
- гардеробна;
- санвузол
Новий сучасний дизайнерський ремонт із застосуванням нових технологій дизайну.
- Офіс повністю укомплектований сучасними новими якісними меблями.
- На кухні є вся необхідна для офісу техніка.
- Система кондиціювання.
ЛОКАЦІЯ:
Прекрасне місце розташування офісу: зручна транспортна розв'язка, паркінг і все необхідне для успішного ведення бізнесу.
Метро: Золоті Ворота, Університет, Театральна.
ЗАПРОШУЮ ВЛАСНИКІВ НЕРУХОМОСТІ ДО СПІВПРАЦІ
Деталі
Об'єкт комерційної нерухомості, Клас A, Приміщення в житловому будинку, Офісне приміщення, Приміщення для надання послуг. Об'єкт на 2 поверсі, У будівлі 7 поверхів. Електрика підключена. Немає телефону. Газ природний. Холодна вода - водопровід, гаряча вода - централізована. Опалення центральне. Є 2 санвузла. Проведені металопластикові труби, нові. Поруч є зупинки, супермаркет, їдальня, кафе, ресторан, відділення банку, банкомат. Нові. Інтернет оптоволоконний. У приміщенні 5 кімнат. Комісія за послуги 50 %

Шпак Ірина
Рієлтор
| Активних оголошень | 33 |
| Ексклюзивних об'єктів | 0 |
| Рекламна активність | 1628 |
| Останній візит на сайт | сьогодні |
Рекомендувати
Історія зміни ціни
| 20.09.2025 | + 7 820 $ | 8 000 $ |
| 20.09.2025 | 8 000 грн |
























