4 500 $/міс
41  $/м²
приміщення вільного призначення, приміщення для надання послуг, офісне приміщення, банківське приміщення
110 м²
1 тиж. тому
6 міс. тому
4 (сьогодні 0, вчора 0)
Опис
Оренда дизайнерського офісу площею 110 кв.м
Офіс з коштовним, якісним ремонтом, повністю мебльований.
Кондиціонер у кожному кабінеті, система вентиляції.
Є starlink та обладнення для підключення до Ecoflow.
Домофон, сигналізація.

Розрахований на 10-15 робочих місць.
Висота стелі 4 метри.
Перший поверх
Житловий фонд

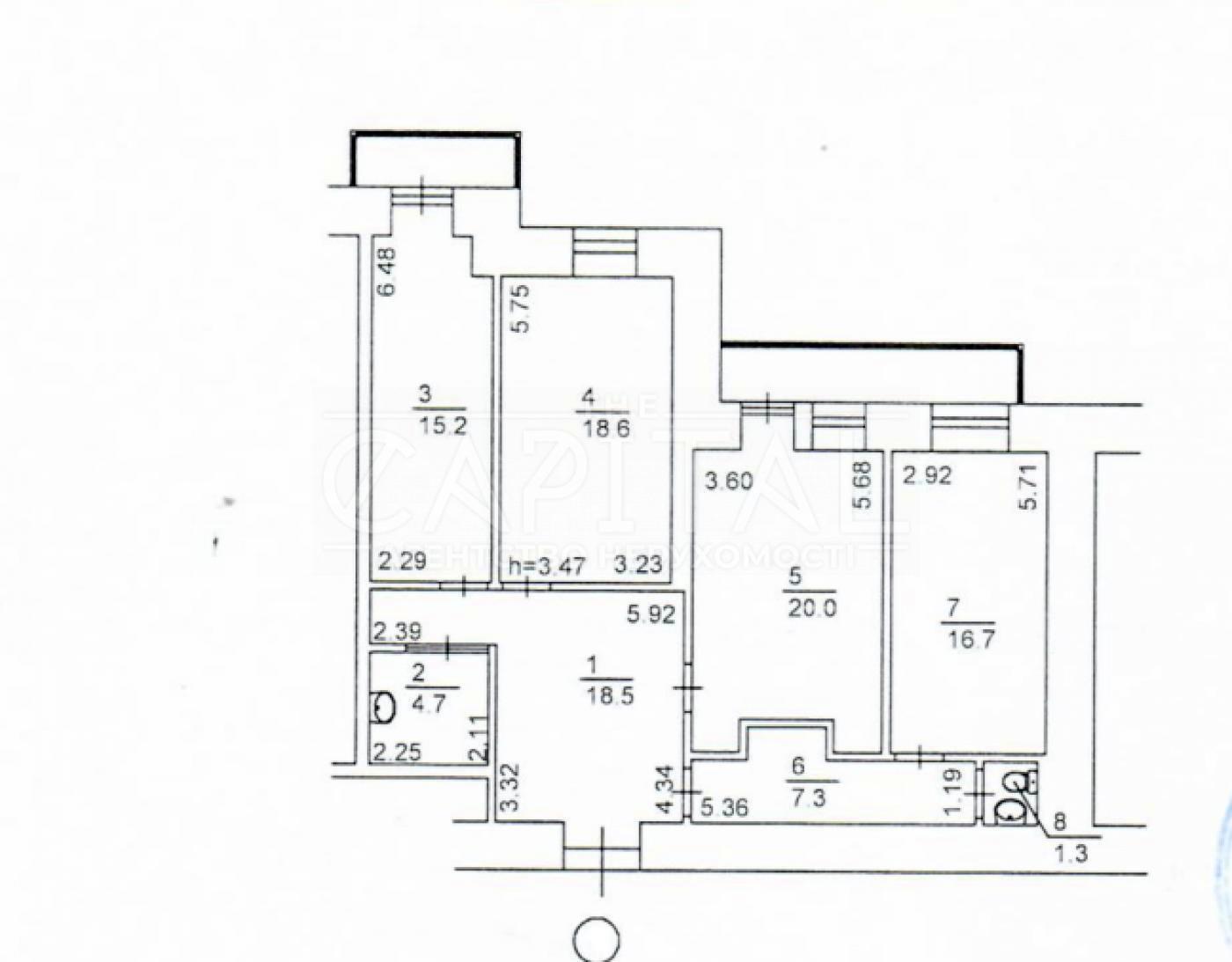
Планування:
- 4 окремих кабінети ( кабінет керівника, кімната для переговорів, 2 кабінети для співробітників, обладнані комфортним робочим місцем для кожного)
- зона рецепції
- кухня ( обладнана холодильником та посудомийкою)
- санвузол
- 2 балкони, засклені.

Вікна виходять у затишний двір.
Є можливість домовитись за декілька парковочних місць у дворі.

Будинок, підʼїзд у відмінному стані.
Поряд офіси закритого типу: чайна та студія Ruslan Ваginskiy.

Відмінне місцерозташування, центр міста, ст. м Площа Українських героїв 3 хв, ст. м Театральна 5-7 хв.

A22683
Деталі
Об'єкт комерційної нерухомості, Приміщення в житловому будинку, Банківське приміщення, Офісне приміщення, Приміщення для надання послуг, Приміщення вільного призначення. Об'єкт на 1 поверсі, У будівлі 4 поверхи. У приміщенні 4 кімнати. Комісія за послуги 50 %
THE Capital
Верифікований профіль
3
Роки досвіду
6
Місяців на сайті
Активних оголошень 204
Ексклюзивних об'єктів 0
Рекламна активність 3389
Останній візит на сайт вчора
Рекомендувати
Адреса
Вашу скаргу прийнято!
Оберіть спосіб підтвердження
Щоб вашу рекомендацію було зараховано, підтвердіть свою особистість
* Особисті дані не відображатимуться на сайті та слугуватимуть лише для підтвердження особистості.
Як верифікуватись через Дію?
Зчитайте QR-код сканером у застосунку Дія й підтвердьте авторизацію Дія.Підписом
QR-код буде дійсний ще 02:00
Як верифікуватись через Bankid?
Верифікація BankID відкриється у новому вікні. Якщо сторінка верифікації не відкрилася, вікно було заблоковане вашим браузером.
Щоб дозволити відкриття вікна, виконайте такі кроки:

1. Перевірте адресний рядок браузера на повідомлення про помилку або піктограму блокування. Натисніть на нього.
2. Якщо у вас встановлено блокувальник спливаючих вікон, тимчасово відключіть його для цього сайту.
3. Перевірте налаштування вашого браузера і переконайтеся, що блокування спливаючих вікон вимкнено або налаштовано на дозвіл відкриття цього вікна.

Якщо проблема залишається невирішеною, зверніться до нашої служби підтримки.
Як верифікуватись через Дію?
Верифікація Дія відкриється у новому вікні. Якщо сторінка верифікації не відкрилася, вікно було заблоковане вашим браузером.
Щоб дозволити відкриття вікна, виконайте такі кроки:

1. Перевірте адресний рядок браузера на повідомлення про помилку або піктограму блокування. Натисніть на нього.
2. Якщо у вас встановлено блокувальник спливаючих вікон, тимчасово відключіть його для цього сайту.
3. Перевірте налаштування вашого браузера і переконайтеся, що блокування спливаючих вікон вимкнено або налаштовано на дозвіл відкриття цього вікна.

Якщо проблема залишається невирішеною, зверніться до нашої служби підтримки.
Вітаємо!
Рекомендацію зараховано!
Незабаром рекомендація зʼявиться на сторінці рієлтора.
Рекомендацію не зараховано.
Ви вже залишали рекомендацію даному рієлтору.
В пропозиції є незбережені дані.