4 700 $/міс
13  $/м²
торгівельне приміщення, приміщення вільного призначення, приміщення для надання послуг, офісне приміщення
362 м²
сьогодні
6 міс. тому
19 (сьогодні 0, вчора 0)
Опис
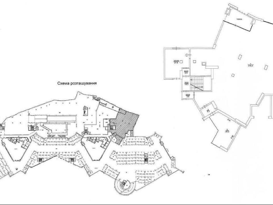
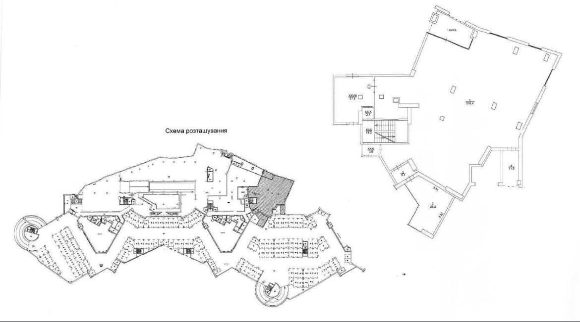
Здається в оренду комерційне приміщення площею 362 м² у центрі Києва, у престижному ЖК Manhattan City за адресою проспект Берестейський 11.
Стан — без ремонту.
Приміщення має фасадний вхід, великі панорамні вікна та можливість вільного планування.

Ідеально підходить під фітнес-клуб, медичний центр, офіс open-space, шоурум, магазин, ресторан або салон краси.

Висота стелі — 4,5 м
Електропотужність — 150 кВт
Вентиляційні канали, можливість встановлення кондиціонування.
Цілодобовий доступ, охорона, відеоспостереження.

Два окремі фасадні входи, та два входи з можливістю під'їзду авто з тильної сторони приміщення.
Можливе збільшення площі до 812 кв.м. за рахунок сусіднього приміщення, площею 450 кв.м.
Деталі
Об'єкт комерційної нерухомості, Клас B, Приміщення в житловому будинку, Офісне приміщення, Приміщення для надання послуг, Приміщення вільного призначення, Торгівельне приміщення. Об'єкт на 2 поверсі, У будівлі 36 поверхів. Без комісії
Столичний Альянс Нерухомості
Верифікований профіль
Silver partner
7
Місяців досвіду
7
Місяців на сайті
Активних оголошень 50
Ексклюзивних об'єктів 0
Рекламна активність 33714
Останній візит на сайт сьогодні
Рекомендувати
Історія зміни ціни
06.11.2025 - 1 800 $ 4 700 $
06.11.2025 + 1 600 $ 6 500 $
06.11.2025 4 900 $
Адреса
Вашу скаргу прийнято!
Оберіть спосіб підтвердження
Щоб вашу рекомендацію було зараховано, підтвердіть свою особистість
* Особисті дані не відображатимуться на сайті та слугуватимуть лише для підтвердження особистості.
Як верифікуватись через Дію?
Зчитайте QR-код сканером у застосунку Дія й підтвердьте авторизацію Дія.Підписом
QR-код буде дійсний ще 02:00
Як верифікуватись через Bankid?
Верифікація BankID відкриється у новому вікні. Якщо сторінка верифікації не відкрилася, вікно було заблоковане вашим браузером.
Щоб дозволити відкриття вікна, виконайте такі кроки:

1. Перевірте адресний рядок браузера на повідомлення про помилку або піктограму блокування. Натисніть на нього.
2. Якщо у вас встановлено блокувальник спливаючих вікон, тимчасово відключіть його для цього сайту.
3. Перевірте налаштування вашого браузера і переконайтеся, що блокування спливаючих вікон вимкнено або налаштовано на дозвіл відкриття цього вікна.

Якщо проблема залишається невирішеною, зверніться до нашої служби підтримки.
Як верифікуватись через Дію?
Верифікація Дія відкриється у новому вікні. Якщо сторінка верифікації не відкрилася, вікно було заблоковане вашим браузером.
Щоб дозволити відкриття вікна, виконайте такі кроки:

1. Перевірте адресний рядок браузера на повідомлення про помилку або піктограму блокування. Натисніть на нього.
2. Якщо у вас встановлено блокувальник спливаючих вікон, тимчасово відключіть його для цього сайту.
3. Перевірте налаштування вашого браузера і переконайтеся, що блокування спливаючих вікон вимкнено або налаштовано на дозвіл відкриття цього вікна.

Якщо проблема залишається невирішеною, зверніться до нашої служби підтримки.
Вітаємо!
Рекомендацію зараховано!
Незабаром рекомендація зʼявиться на сторінці рієлтора.
Рекомендацію не зараховано.
Ви вже залишали рекомендацію даному рієлтору.
В пропозиції є незбережені дані.