18 500 $/міс
7
$/м²
торгівельне приміщення, приміщення вільного призначення, виробниче приміщення, склад, приміщення для надання послуг, офісне приміщення, банківське приміщення
2500 м²
4 дні тому
5 міс. тому
48 (сьогодні 0,
вчора 2)
Опис
ПОВНІСТЮ ОБЛАДНАНИЙ МЕДИЧНИЙ ЦЕНТР
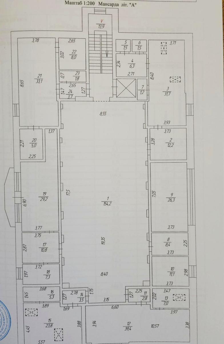
Здається в оренду окремо стояча будівля 2500кв.м.
Район Нова Дарниця, метро Харківська або Вирлиця - 10 хвилин пішки
Ідеально підійде під:-Клініку- кол-центр- пансіонат- офіс- готель- медичний заклад- школу
Санвузли в кожному кабінеті, новий ремонт, презентабельна вхідна група, ліфт
На нульовому поверсі:- басейн глибиною 1,80- джакузі- сауна-сольова кімната-тренажерний зал-котельня-серверна-велика кухня з піччю для піци-харчовий ліфт з кухні
1 поверх:- хол з reception-кабінети з санвузлами-загальні санвузли-open space
2 поверх:- коридор-10 кабінетів зі своїми санвузлами-балкони з кабінетів-загальний балкон
3 поверх:- коридор-10 кабінетів зі своїми санвузлами-балкони з кабінетів-загальний балкон
4 поверх:-великий open space-6 кабінетів.
Оперативний перегляд в будь-який час
Встановлено генератор.
Ціна оренди 18500$ включаючи ПДФО.
Торг можливий.
#31583450
Здається в оренду окремо стояча будівля 2500кв.м.
Район Нова Дарниця, метро Харківська або Вирлиця - 10 хвилин пішки
Ідеально підійде під:-Клініку- кол-центр- пансіонат- офіс- готель- медичний заклад- школу
Санвузли в кожному кабінеті, новий ремонт, презентабельна вхідна група, ліфт
На нульовому поверсі:- басейн глибиною 1,80- джакузі- сауна-сольова кімната-тренажерний зал-котельня-серверна-велика кухня з піччю для піци-харчовий ліфт з кухні
1 поверх:- хол з reception-кабінети з санвузлами-загальні санвузли-open space
2 поверх:- коридор-10 кабінетів зі своїми санвузлами-балкони з кабінетів-загальний балкон
3 поверх:- коридор-10 кабінетів зі своїми санвузлами-балкони з кабінетів-загальний балкон
4 поверх:-великий open space-6 кабінетів.
Оперативний перегляд в будь-який час
Встановлено генератор.
Ціна оренди 18500$ включаючи ПДФО.
Торг можливий.
#31583450
Деталі
Об'єкт комерційної нерухомості, Окремо стояча будівля, Банківське приміщення, Офісне приміщення, Приміщення для надання послуг, Склад, Виробниче приміщення, Приміщення вільного призначення, Торгівельне приміщення. Об'єкт на 1, 2, 3, 4 поверхах, У будівлі 4 поверхи. Приміщення вільного планування. Комісія за послуги 50 %










































































