2
7 596 $/міс
36  $/м²
торгівельне приміщення
211 м²
1980 рік побудови
2 дні тому
4 міс. тому
22 (сьогодні 0, вчора 0)
Опис
#RR11228
Оренда комерційного приміщення під магазин або бутік
вул. Басейна,11 біля ТРЦ Gulliver, Арена-Сіті, Хрещатик.
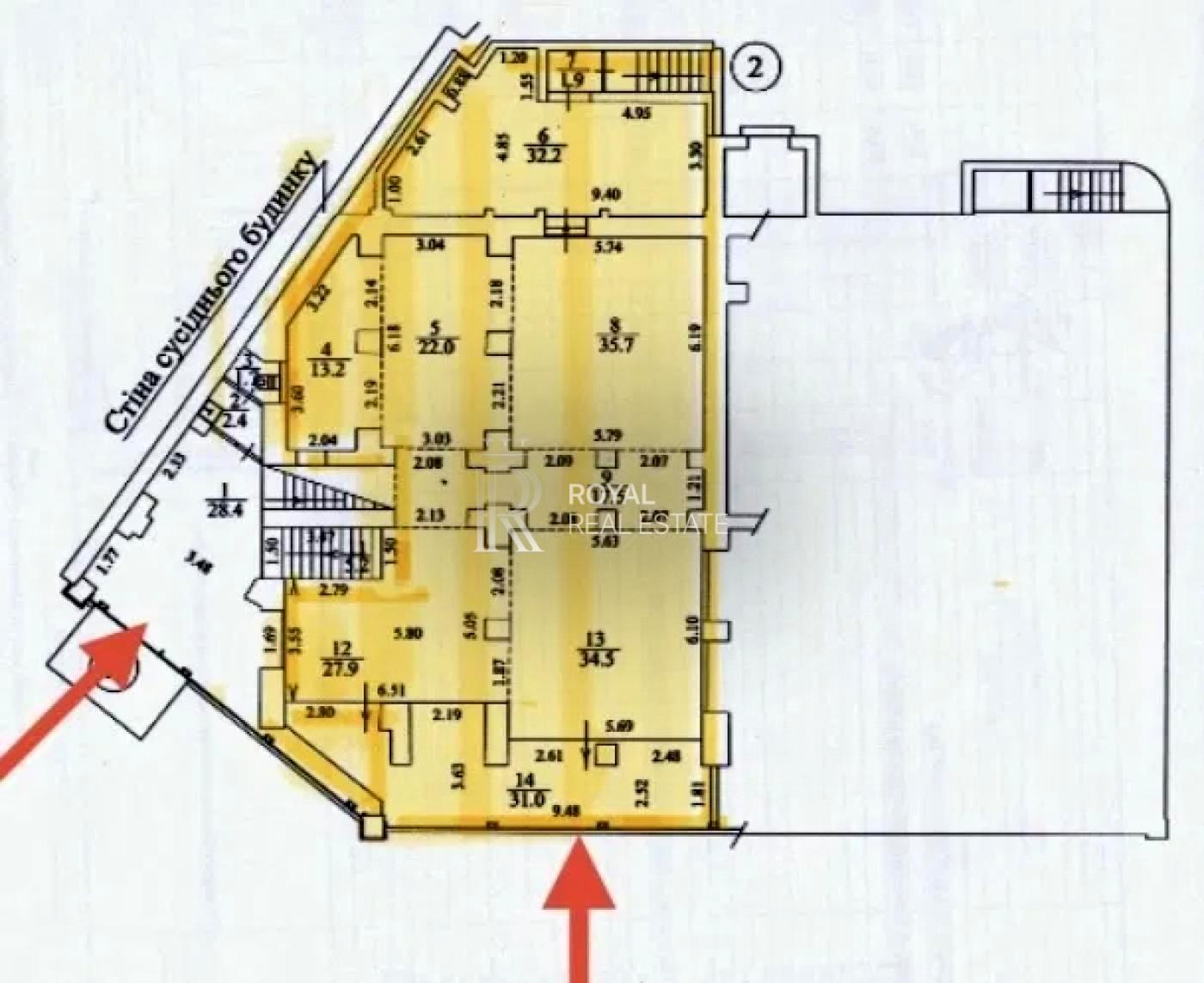
Загальна площа: 230 м²
Розташування: усе приміщення — на 1 поверсі
Фасад: презентабельний, з великими вітринами до підлоги, є багато місця для зовнішньої реклами
Характеристики:
Приміщення з ремонтом, готове для розміщення бутіка
Встановлена система припливно-витяжної вентиляції з рекуперацією
Охоронна та пожежна сигналізація, відеоспостереження
Кондиціонери
Локація:
Навпроти — ТРЦ Gulliver, БЦ Парус, поруч — ресторани, кафе, Бессарабський ринок, вул. Хрещатик.
Інтенсивний пішохідний та автомобільний трафік!
Вартість оренди:
30 $/м² ПДВ комунальні платежі
Деталі
Об'єкт комерційної нерухомості, Окремо стояча будівля, Торгівельне приміщення. Об'єкт на 1 поверсі, У будівлі 6 поверхів. Будинок побудований в 1980 році. У приміщенні 3 кімнати. Комісія за послуги 50 %
Royal Real Estate
Верифікований профіль
6
Років досвіду
4
Роки на сайті
Активних оголошень 168
Ексклюзивних об'єктів 0
Рекламна активність 46138
Останній візит на сайт вчора
Рекомендувати
Адреса
Вашу скаргу прийнято!
Оберіть спосіб підтвердження
Щоб вашу рекомендацію було зараховано, підтвердіть свою особистість
* Особисті дані не відображатимуться на сайті та слугуватимуть лише для підтвердження особистості.
Як верифікуватись через Дію?
Зчитайте QR-код сканером у застосунку Дія й підтвердьте авторизацію Дія.Підписом
QR-код буде дійсний ще 02:00
Як верифікуватись через Bankid?
Верифікація BankID відкриється у новому вікні. Якщо сторінка верифікації не відкрилася, вікно було заблоковане вашим браузером.
Щоб дозволити відкриття вікна, виконайте такі кроки:

1. Перевірте адресний рядок браузера на повідомлення про помилку або піктограму блокування. Натисніть на нього.
2. Якщо у вас встановлено блокувальник спливаючих вікон, тимчасово відключіть його для цього сайту.
3. Перевірте налаштування вашого браузера і переконайтеся, що блокування спливаючих вікон вимкнено або налаштовано на дозвіл відкриття цього вікна.

Якщо проблема залишається невирішеною, зверніться до нашої служби підтримки.
Як верифікуватись через Дію?
Верифікація Дія відкриється у новому вікні. Якщо сторінка верифікації не відкрилася, вікно було заблоковане вашим браузером.
Щоб дозволити відкриття вікна, виконайте такі кроки:

1. Перевірте адресний рядок браузера на повідомлення про помилку або піктограму блокування. Натисніть на нього.
2. Якщо у вас встановлено блокувальник спливаючих вікон, тимчасово відключіть його для цього сайту.
3. Перевірте налаштування вашого браузера і переконайтеся, що блокування спливаючих вікон вимкнено або налаштовано на дозвіл відкриття цього вікна.

Якщо проблема залишається невирішеною, зверніться до нашої служби підтримки.
Вітаємо!
Рекомендацію зараховано!
Незабаром рекомендація зʼявиться на сторінці рієлтора.
Рекомендацію не зараховано.
Ви вже залишали рекомендацію даному рієлтору.
В пропозиції є незбережені дані.