4 000 $/міс
23
$/м²
офісне приміщення
175 м²
4 тиж. тому
5 міс. тому
7 (сьогодні 0,
вчора 0)
Опис
Это не аренда дизайнерского офиса, это сплошное удовольствие работать в уникальном пространстве, аналогов которому нет в Украине, а если и есть - только у наших инвесторов!
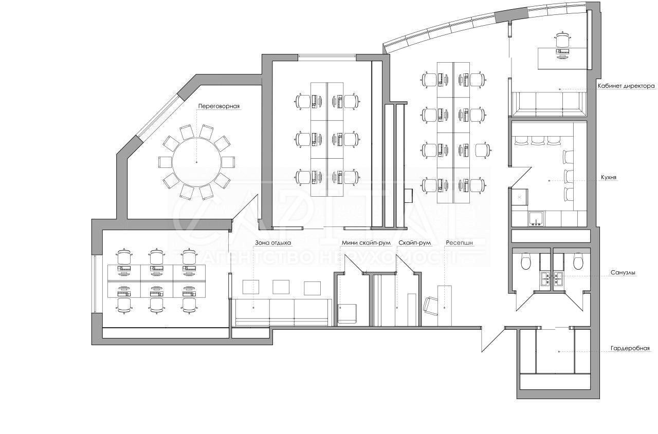
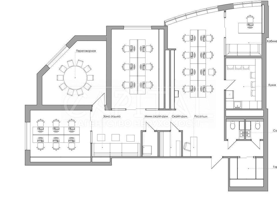
Общая площадь помещения 177 м2.
Общее количество рабочих мест - 22.
Функциональная планировка состоящая из:
- ресепшн;
- кабинет директора;
- скайп-рум;
- мини скайп-рум;
- зона отдыха;
- переговорная;
- 2 кабинета;
- open space;
- кухня;
- гардероб;
- 2 санузла (см.планировку).
Описание:
Видовой офис на 36 этаже, полностью укомплектован мебелью и техникой. Панорамные окна открывают вид на Печерск и центр столицы. Состояние помещения: свежий современный дизайнерский ремонт. Офис полностью укомплектован современной качественной мебелью. На кухне есть вся необходимая для офиса техника: холодильник, микроволновка, чайник. Бойлер. Система кондиционирования, климат-контроль.
О БЦ:
Дом имеет круглосуточную охрану и видеонаблюдение. Высокоскоростные современные лифты. Прекрасное месторасположение: удобная транспортная развязка и все необходимое для ведения успешного бизнеса в шаговой доступности.
Рядом:
БЦ Carnegie Center находится в центре города, хорошая транспортная развязка.
Рядом метро Кловская, Печерская, Gulliver, GoodWine, Sparks, Sho, и множество других заведений.
Метро: метро "Кловская" – 650 метров - 6 мин. пешком.
Находится в самом центре Киева на Печерске, по адресу Кловский спуск, дом 7 (самое высокое здание Украины).
The Capital
3 1 5 4 4 3 3
Общая площадь помещения 177 м2.
Общее количество рабочих мест - 22.
Функциональная планировка состоящая из:
- ресепшн;
- кабинет директора;
- скайп-рум;
- мини скайп-рум;
- зона отдыха;
- переговорная;
- 2 кабинета;
- open space;
- кухня;
- гардероб;
- 2 санузла (см.планировку).
Описание:
Видовой офис на 36 этаже, полностью укомплектован мебелью и техникой. Панорамные окна открывают вид на Печерск и центр столицы. Состояние помещения: свежий современный дизайнерский ремонт. Офис полностью укомплектован современной качественной мебелью. На кухне есть вся необходимая для офиса техника: холодильник, микроволновка, чайник. Бойлер. Система кондиционирования, климат-контроль.
О БЦ:
Дом имеет круглосуточную охрану и видеонаблюдение. Высокоскоростные современные лифты. Прекрасное месторасположение: удобная транспортная развязка и все необходимое для ведения успешного бизнеса в шаговой доступности.
Рядом:
БЦ Carnegie Center находится в центре города, хорошая транспортная развязка.
Рядом метро Кловская, Печерская, Gulliver, GoodWine, Sparks, Sho, и множество других заведений.
Метро: метро "Кловская" – 650 метров - 6 мин. пешком.
Находится в самом центре Киева на Печерске, по адресу Кловский спуск, дом 7 (самое высокое здание Украины).
The Capital
3 1 5 4 4 3 3
Деталі
Об'єкт комерційної нерухомості, Приміщення в офісному центрі, Офісне приміщення. Об'єкт на 36 поверсі, У будівлі 36 поверхів. У приміщенні 6 кімнат або більше. Комісія за послуги 50 %

















































