2 400 $/міс
8  $/м²
офісне приміщення
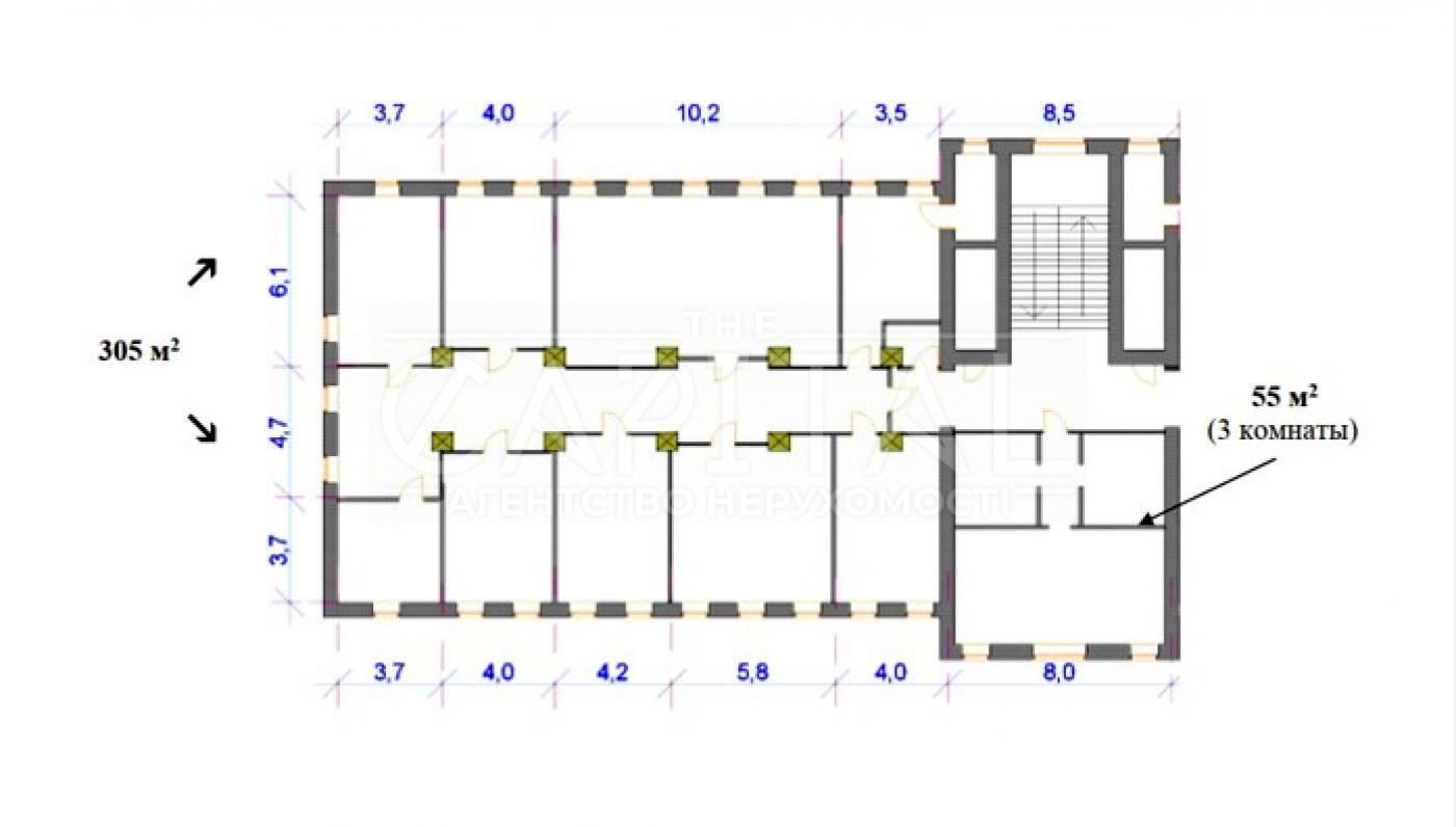
305 м²
2 тиж. тому
4 міс. тому
28 (сьогодні 0, вчора 0)
Опис
Офісний центр категорії «А»
метро Лісова (10 хв.)
вул. Червоноткацька
Поряд Даринок
2-й поверх, двоповерхової будівлі

Власна газова котельня
Власний потужний генератор (світло є завжди!!!!)
Висота стелі більше 3,20 м
- Металопластикові звукоізолюючі вікна
- Вентиляція, кондиціонування повітря
- Телефонні лінії: Оптіма, Укртелеком
- Інтернет АDSL 100,0 Мбіт/с
- Місця для паркування автотранспорту (за бажанням замовника)
- Пожежна, охоронна сигналізації
- Охорона 24 г/д
- Доступ 24/7
- Пропускна система
- Можлива здача приміщення з меблями

Є приміщення: 305м2, 175,7 м2, 55,2 м2, 22,1 м2 (окремі приміщення). Разом – 558 м2.
- Орендна ставка – 300 грн/м 2 з НДС
(включає: постачання води, каналізація, стоки, цілодобове паркування 1 автомобіля).
- Цілодобова охорона (охоронна сигналізація - спостереження за спрацюванням, технічне обслуговування), пожежна сигналізація (спостереження за спрацюванням, технічне обслуговування).

Є можливість орендувати складські приміщення поряд!

# 3 1 5 9 1 7 3 4 7 0 3 1
Деталі
Об'єкт комерційної нерухомості, Клас A, Приміщення в офісному центрі, Офісне приміщення. Об'єкт на 2 поверсі, У будівлі 5 поверхів. Під'їзд до будівлі - асфальт. Є електрика. Є холодна вода, є гаряча вода. Є опалення. Є санвузол. Є під охороною автопарковка. Охорона. Поруч є зупинки, супермаркет, кафе, ресторан, банкомат, відділення банку. У приміщенні 6 кімнат або більше. Комісія за послуги 50 %
THE Capital
Верифікований профіль
4
Роки досвіду
4
Місяці на сайті
Активних оголошень 1144
Ексклюзивних об'єктів 0
Рекламна активність 1806
Останній візит на сайт вчора
Рекомендувати
Адреса
Вашу скаргу прийнято!
Оберіть спосіб підтвердження
Щоб вашу рекомендацію було зараховано, підтвердіть свою особистість
* Особисті дані не відображатимуться на сайті та слугуватимуть лише для підтвердження особистості.
Як верифікуватись через Дію?
Зчитайте QR-код сканером у застосунку Дія й підтвердьте авторизацію Дія.Підписом
QR-код буде дійсний ще 02:00
Як верифікуватись через Bankid?
Верифікація BankID відкриється у новому вікні. Якщо сторінка верифікації не відкрилася, вікно було заблоковане вашим браузером.
Щоб дозволити відкриття вікна, виконайте такі кроки:

1. Перевірте адресний рядок браузера на повідомлення про помилку або піктограму блокування. Натисніть на нього.
2. Якщо у вас встановлено блокувальник спливаючих вікон, тимчасово відключіть його для цього сайту.
3. Перевірте налаштування вашого браузера і переконайтеся, що блокування спливаючих вікон вимкнено або налаштовано на дозвіл відкриття цього вікна.

Якщо проблема залишається невирішеною, зверніться до нашої служби підтримки.
Як верифікуватись через Дію?
Верифікація Дія відкриється у новому вікні. Якщо сторінка верифікації не відкрилася, вікно було заблоковане вашим браузером.
Щоб дозволити відкриття вікна, виконайте такі кроки:

1. Перевірте адресний рядок браузера на повідомлення про помилку або піктограму блокування. Натисніть на нього.
2. Якщо у вас встановлено блокувальник спливаючих вікон, тимчасово відключіть його для цього сайту.
3. Перевірте налаштування вашого браузера і переконайтеся, що блокування спливаючих вікон вимкнено або налаштовано на дозвіл відкриття цього вікна.

Якщо проблема залишається невирішеною, зверніться до нашої служби підтримки.
Вітаємо!
Рекомендацію зараховано!
Незабаром рекомендація зʼявиться на сторінці рієлтора.
Рекомендацію не зараховано.
Ви вже залишали рекомендацію даному рієлтору.
В пропозиції є незбережені дані.