4 892 $/міс
20  $/м²
офісне приміщення
244.6 м²
2014 рік побудови
2 дні тому
4 міс. тому
10 (сьогодні 0, вчора 0)
Опис
#25267

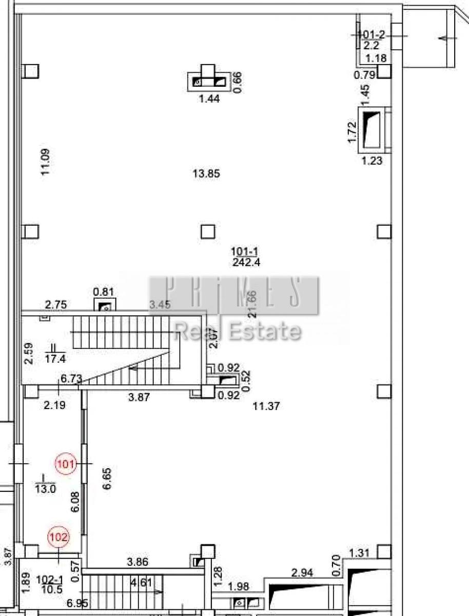
Оренда комерційного приміщення 244,6 м² в елітному ЖК «Престиж Холл»

Здається в оренду просторе комерційне приміщення, розташоване на першому поверсі 22-поверхового будинку у престижному житловому комплексі «Престиж Хол», за адресою: вул. Тютюнника, 37/1, секція B.

Основні характеристики:

-Площа: 244,6 м ²
-Поверх: 1/22
-Вільне планування - є можливість зонування під будь-які потреби бізнесу
-Окремий фасадний вхід із червоної лінії
-Панорамні вікна, що забезпечують багато природного світла
-Сучасний новий будинок бізнес-класу

Переваги приміщення:

-Підходити під будь-який вид діяльності: салон краси, клініка, шоурум, магазин, офіс, кафе, представництво тощо
-Зручна локація - 5 хвилин пішки до станцій метро Печерська та Дружби Народів
-У декількох хвилинах ходьби знаходиться Палац «Україна», поряд бізнес-центри, банки, ресторани, салони, офіси, навчальні заклади
-Високий пішохідний та автомобільний трафік
-Статусне оточення та платоспроможна аудиторія
-Вільне планування дозволяє реалізувати будь-який дизайн-проект

Додаткові переваги ЖК:

-Елітний житловий комплекс із сучасною інфраструктурою
-У будинку завжди є електроенергія, працює генератор, тому вам не доведеться підлаштовуватися під графіки відключень
-Охорона, відеоспостереження
-Зручна транспортна розв'язка, паркінг для клієнтів та резидентів

Це ідеальне приміщення для відкриття чи розширення бізнесу у центрі столиці.

Звоніть для запису на перегляд або отримання додаткової інформації!
Деталі
Об'єкт комерційної нерухомості, Клас B, Приміщення в офісному центрі, Офісне приміщення. Об'єкт на 1 поверсі, У будівлі 22 поверхи. Будинок побудований в 2014 році. У приміщенні 1 кімната. Комісія за послуги 50 %
Верифікований профіль
5
Місяців досвіду
4
Місяці на сайті
Активних оголошень 142
Ексклюзивних об'єктів 0
Рекламна активність 0
Останній візит на сайт вчора
Рекомендувати
Адреса
Вашу скаргу прийнято!
Оберіть спосіб підтвердження
Щоб вашу рекомендацію було зараховано, підтвердіть свою особистість
* Особисті дані не відображатимуться на сайті та слугуватимуть лише для підтвердження особистості.
Як верифікуватись через Дію?
Зчитайте QR-код сканером у застосунку Дія й підтвердьте авторизацію Дія.Підписом
QR-код буде дійсний ще 02:00
Як верифікуватись через Bankid?
Верифікація BankID відкриється у новому вікні. Якщо сторінка верифікації не відкрилася, вікно було заблоковане вашим браузером.
Щоб дозволити відкриття вікна, виконайте такі кроки:

1. Перевірте адресний рядок браузера на повідомлення про помилку або піктограму блокування. Натисніть на нього.
2. Якщо у вас встановлено блокувальник спливаючих вікон, тимчасово відключіть його для цього сайту.
3. Перевірте налаштування вашого браузера і переконайтеся, що блокування спливаючих вікон вимкнено або налаштовано на дозвіл відкриття цього вікна.

Якщо проблема залишається невирішеною, зверніться до нашої служби підтримки.
Як верифікуватись через Дію?
Верифікація Дія відкриється у новому вікні. Якщо сторінка верифікації не відкрилася, вікно було заблоковане вашим браузером.
Щоб дозволити відкриття вікна, виконайте такі кроки:

1. Перевірте адресний рядок браузера на повідомлення про помилку або піктограму блокування. Натисніть на нього.
2. Якщо у вас встановлено блокувальник спливаючих вікон, тимчасово відключіть його для цього сайту.
3. Перевірте налаштування вашого браузера і переконайтеся, що блокування спливаючих вікон вимкнено або налаштовано на дозвіл відкриття цього вікна.

Якщо проблема залишається невирішеною, зверніться до нашої служби підтримки.
Вітаємо!
Рекомендацію зараховано!
Незабаром рекомендація зʼявиться на сторінці рієлтора.
Рекомендацію не зараховано.
Ви вже залишали рекомендацію даному рієлтору.
В пропозиції є незбережені дані.