2 280 $/міс
12
$/м²
офісне приміщення
190 м²
2003 рік побудови
4 тиж. тому
3 міс. тому
16 (сьогодні 0,
вчора 0)
Опис
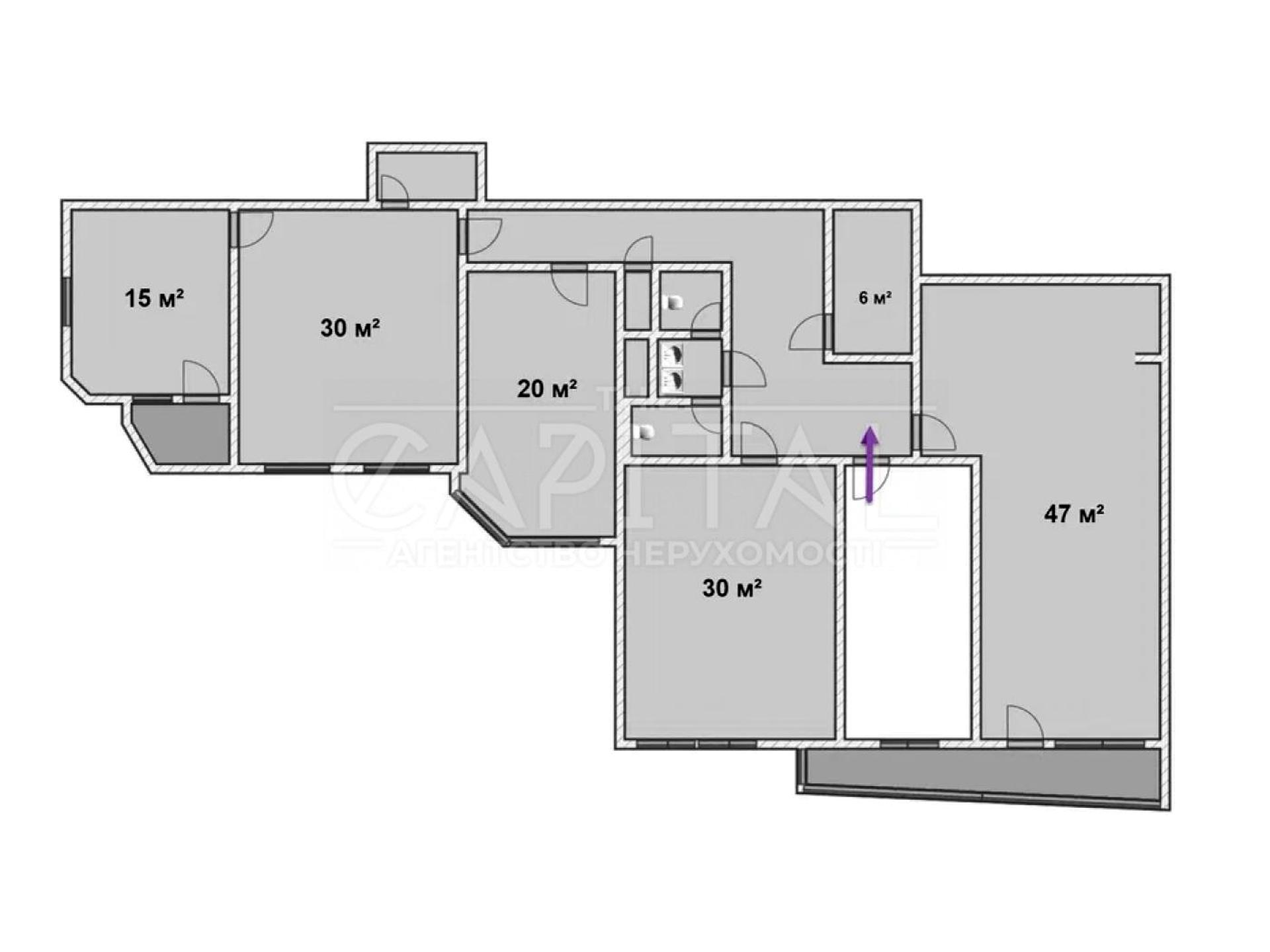
Оренда офісу площею 190 м2. 5 кабінетів, міні-кухня, серверна, 2 с/в. До метро Політехнічний Інститут (КПІ) 550 метрів (7 хвилин пішки). Телефонія, швидкісний інтернет, кондиціювання. Приміщення з окремим входом в житлово-офісному комплексі, є цілодобова охорона. Нежитловий фонд.
Адреса: вул. Провіантська (колишня Галі Тимофєєвої), 3. Шевченківський район. Метро Політехнічний Інститут.
Вартість: 2280 дол. (12 дол./м2)
Експлуатаційні: 4000 грн./міс.
Комунальні за лічильником.
Розвинута інфраструктура. В радіусі 250 метрів знаходяться: поштові відділення, банки, торговий центр Smart Plaza, кінотеатр, супермаркети, магазини, фастфуди, ресторани і кафе.
Приміщення включає в себе:
- Кабінет 15 м2
- Кабінет 30 м2
- Кабінет 20 м2
- Кабінет 30 м2
- Кабінет 47 м2
- Міні-кухня з холодильником і мікрохвильовкою
- Підсобне приміщення з висновками для підключення посудомийної машини і технічним краном
- Серверна
- 2 туалети
- 2 балкона
У кабінетах виведено багато розеток живлення, а також мережевих і телефонних розеток для гнучкої розстановки робочих місць і обладнання. Встановлена міні-АТС.
Охорона на вході в будівлю. У приміщенні встановлена сигналізація.
Офіційний договір оренди, безготівковий розрахунок.
3 1 5 9 1 7 3 5 4 2 1 3
Адреса: вул. Провіантська (колишня Галі Тимофєєвої), 3. Шевченківський район. Метро Політехнічний Інститут.
Вартість: 2280 дол. (12 дол./м2)
Експлуатаційні: 4000 грн./міс.
Комунальні за лічильником.
Розвинута інфраструктура. В радіусі 250 метрів знаходяться: поштові відділення, банки, торговий центр Smart Plaza, кінотеатр, супермаркети, магазини, фастфуди, ресторани і кафе.
Приміщення включає в себе:
- Кабінет 15 м2
- Кабінет 30 м2
- Кабінет 20 м2
- Кабінет 30 м2
- Кабінет 47 м2
- Міні-кухня з холодильником і мікрохвильовкою
- Підсобне приміщення з висновками для підключення посудомийної машини і технічним краном
- Серверна
- 2 туалети
- 2 балкона
У кабінетах виведено багато розеток живлення, а також мережевих і телефонних розеток для гнучкої розстановки робочих місць і обладнання. Встановлена міні-АТС.
Охорона на вході в будівлю. У приміщенні встановлена сигналізація.
Офіційний договір оренди, безготівковий розрахунок.
3 1 5 9 1 7 3 5 4 2 1 3
Деталі
Об'єкт комерційної нерухомості, Приміщення в офісному центрі, Офісне приміщення. Будинок побудований в 2003 році. Без комісії






















