9 213 $/міс
16  $/м²
офісне приміщення
580 м²
2 тиж. тому
2 міс. тому
1 (сьогодні 0, вчора 0)
Опис
Оренда офісу в бізнес-центрі | Голосіївський район

Пропонується в оренду офісне приміщення у сучасному бізнес-центрі за адресою м. Київ, Голосіївський район, вул. Охтирський, 7.

Орендна ставка: 9 213 $/міс. (16 $/м²)
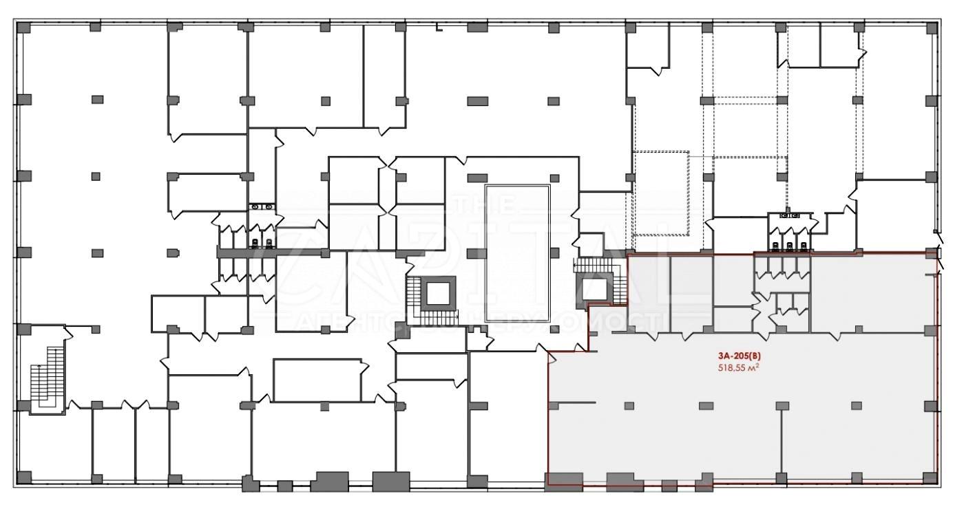
Загальна площа: 580 м²
Корисна площа: 518,55 м²
Поверх: 2 із 3
Стан: з ремонтом
Тип будівлі: новобудова, окремий будинок (не ЖК)

Офіс формату open space з частково організованими робочими зонами. Приміщення світле, з великими вікнами, стандартним офісним оздобленням та готове до розміщення команди.

Переваги бізнес-комплексу:

паркінг та майданчик для авто

місця для велосипедів

зарядні станції для електрокарів

відкрита BBQ-зона

спортмайданчик

кафе та кав’ярні

лаунж-зони та зони відпочинку у холах корпусів

⚡ Є генератор на офіс, що забезпечує безперебійну роботу.

Приміщення підійде для IT-компанії, call-центру, сервісного офісу, відділу продажів або корпоративної команди.

Телефонуйте для перегляду та узгодження умов оренди.

НЕ СПІВПРАЦЮЮ З РІЕЛТОРАМИ!!!

A26780
Деталі
Об'єкт комерційної нерухомості, Приміщення в офісному центрі, Офісне приміщення. Об'єкт на 2 поверсі, У будівлі 3 поверхи. Комісія за послуги 50 %
THE Capital
Верифікований профіль
4
Роки досвіду
5
Місяців на сайті
Активних оголошень 1138
Ексклюзивних об'єктів 0
Рекламна активність 3357
Останній візит на сайт 2 дні тому
Рекомендувати
Адреса
Вашу скаргу прийнято!
Оберіть спосіб підтвердження
Щоб вашу рекомендацію було зараховано, підтвердіть свою особистість
* Особисті дані не відображатимуться на сайті та слугуватимуть лише для підтвердження особистості.
Як верифікуватись через Дію?
Зчитайте QR-код сканером у застосунку Дія й підтвердьте авторизацію Дія.Підписом
QR-код буде дійсний ще 02:00
Як верифікуватись через Bankid?
Верифікація BankID відкриється у новому вікні. Якщо сторінка верифікації не відкрилася, вікно було заблоковане вашим браузером.
Щоб дозволити відкриття вікна, виконайте такі кроки:

1. Перевірте адресний рядок браузера на повідомлення про помилку або піктограму блокування. Натисніть на нього.
2. Якщо у вас встановлено блокувальник спливаючих вікон, тимчасово відключіть його для цього сайту.
3. Перевірте налаштування вашого браузера і переконайтеся, що блокування спливаючих вікон вимкнено або налаштовано на дозвіл відкриття цього вікна.

Якщо проблема залишається невирішеною, зверніться до нашої служби підтримки.
Як верифікуватись через Дію?
Верифікація Дія відкриється у новому вікні. Якщо сторінка верифікації не відкрилася, вікно було заблоковане вашим браузером.
Щоб дозволити відкриття вікна, виконайте такі кроки:

1. Перевірте адресний рядок браузера на повідомлення про помилку або піктограму блокування. Натисніть на нього.
2. Якщо у вас встановлено блокувальник спливаючих вікон, тимчасово відключіть його для цього сайту.
3. Перевірте налаштування вашого браузера і переконайтеся, що блокування спливаючих вікон вимкнено або налаштовано на дозвіл відкриття цього вікна.

Якщо проблема залишається невирішеною, зверніться до нашої служби підтримки.
Вітаємо!
Рекомендацію зараховано!
Незабаром рекомендація зʼявиться на сторінці рієлтора.
Рекомендацію не зараховано.
Ви вже залишали рекомендацію даному рієлтору.
В пропозиції є незбережені дані.