приміщення вільного призначення
948 м²
1960 рік побудови
сьогодні
3 міс. тому
17 (сьогодні 1, вчора 2)
Опис
#RR6865
Велике комерційне приміщення 948 м в ЖК Park Avenue VIP під будь-який вид діяльності!
Характеристики приміщення:
Адреса: вул. Деміївська, 27, Голосіївський район
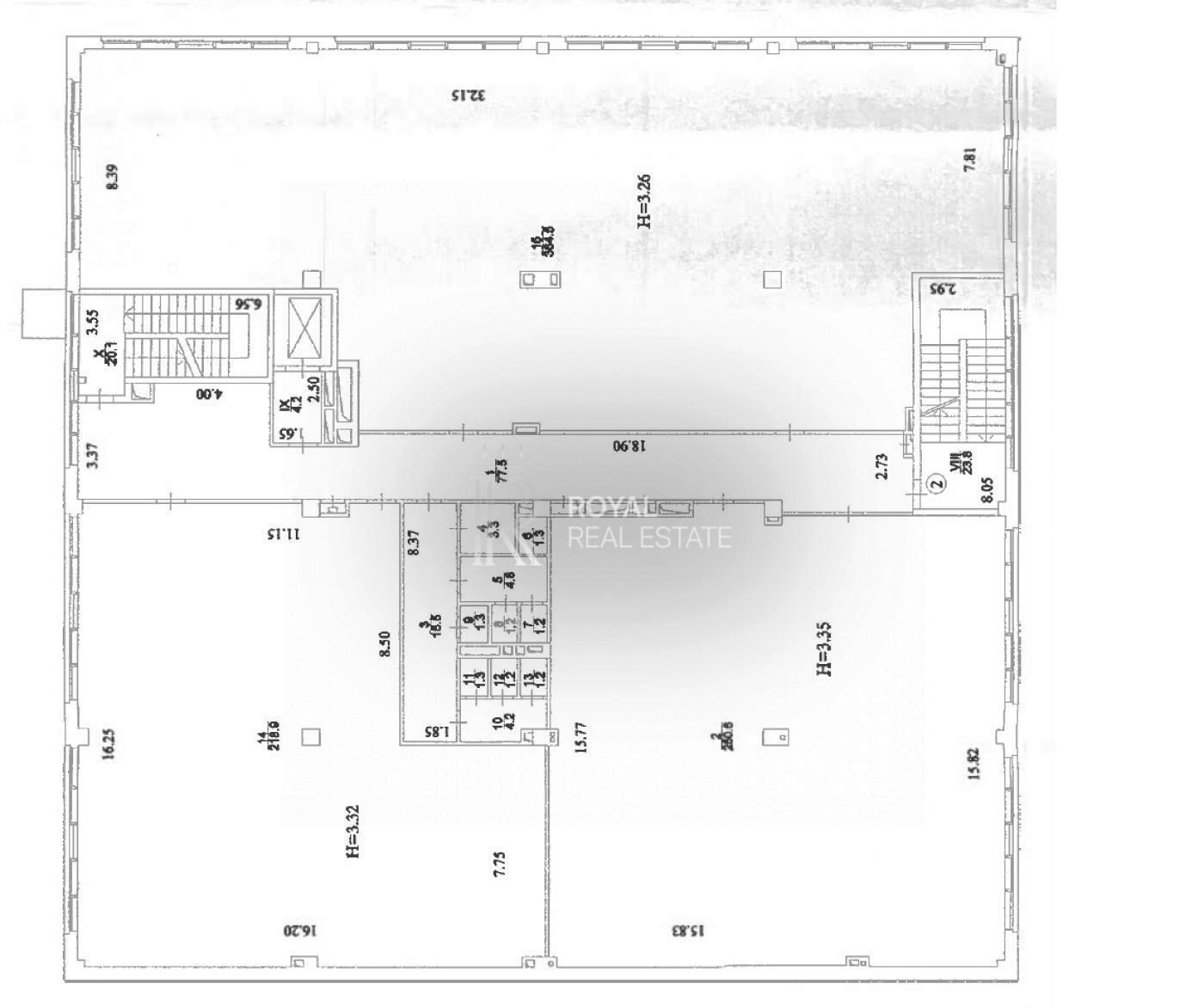
Площа: 948 м
Поверх: 2 з 3
Вільне планування
Приміщення розташоване на другому поверсі з фасадним входом, що забезпечує відмінну видимість та легкий доступ. Можливість оренди половини приміщення.
В наявності 12 паркомісць у паркінгу. Доступні ремонтні канікули для створення ідеального простору для вашого бізнесу.
Основні переваги:
- Зручно для будь-якого бізнесу: без ремонту та з опціями для адаптації простору під ваші потреби.
- Комплексна інфраструктура: вентиляційні та опалювальні системи вже передбачені для різних потреб.
- Оптимальні умови: доступ всіх необхідних комунікацій, включаючи електрику, воду, каналізацію та системи безпеки.
- Вигідна локація: в центрі Голосіївського району, з зручним доступом до транспорту та простору для вивантаження товарів.
Інфраструктура:
Комплекс Park Avenue VIP створює сучасне середовище з усіма зручностями, необхідними для успішної діяльності вашого бізнесу. Внутрішній двір з облаштованим місцем для завантаження/розвантаження товарів робить цей простір ідеальним для ресторанів, кафе, магазинів або офісів.
Не пропустіть можливість орендувати унікальний простір для вашого бізнесу!
Чекаємо на ваш дзвінок для організації перегляду!
Код RR6865
Деталі
Об'єкт комерційної нерухомості, Окремо стояча будівля, Приміщення вільного призначення. Об'єкт на 2 поверсі, У будівлі 3 поверхи. Будинок побудований в 1960 році. У приміщенні 3 кімнати. Комісія за послуги 50 %
Royal Real Estate
Верифікований профіль
6
Років досвіду
4
Роки на сайті
Активних оголошень 117
Ексклюзивних об'єктів 0
Рекламна активність 37589
Останній візит на сайт сьогодні
Рекомендувати
Адреса
Вашу скаргу прийнято!
Оберіть спосіб підтвердження
Щоб вашу рекомендацію було зараховано, підтвердіть свою особистість
* Особисті дані не відображатимуться на сайті та слугуватимуть лише для підтвердження особистості.
Як верифікуватись через Дію?
Зчитайте QR-код сканером у застосунку Дія й підтвердьте авторизацію Дія.Підписом
QR-код буде дійсний ще 02:00
Як верифікуватись через Bankid?
Верифікація BankID відкриється у новому вікні. Якщо сторінка верифікації не відкрилася, вікно було заблоковане вашим браузером.
Щоб дозволити відкриття вікна, виконайте такі кроки:

1. Перевірте адресний рядок браузера на повідомлення про помилку або піктограму блокування. Натисніть на нього.
2. Якщо у вас встановлено блокувальник спливаючих вікон, тимчасово відключіть його для цього сайту.
3. Перевірте налаштування вашого браузера і переконайтеся, що блокування спливаючих вікон вимкнено або налаштовано на дозвіл відкриття цього вікна.

Якщо проблема залишається невирішеною, зверніться до нашої служби підтримки.
Як верифікуватись через Дію?
Верифікація Дія відкриється у новому вікні. Якщо сторінка верифікації не відкрилася, вікно було заблоковане вашим браузером.
Щоб дозволити відкриття вікна, виконайте такі кроки:

1. Перевірте адресний рядок браузера на повідомлення про помилку або піктограму блокування. Натисніть на нього.
2. Якщо у вас встановлено блокувальник спливаючих вікон, тимчасово відключіть його для цього сайту.
3. Перевірте налаштування вашого браузера і переконайтеся, що блокування спливаючих вікон вимкнено або налаштовано на дозвіл відкриття цього вікна.

Якщо проблема залишається невирішеною, зверніться до нашої служби підтримки.
Вітаємо!
Рекомендацію зараховано!
Незабаром рекомендація зʼявиться на сторінці рієлтора.
Рекомендацію не зараховано.
Ви вже залишали рекомендацію даному рієлтору.
В пропозиції є незбережені дані.