22 958 $/міс
16  $/м²
офісне приміщення
1447 м²
2 тиж. тому
2 міс. тому
2 (сьогодні 0, вчора 0)
Опис
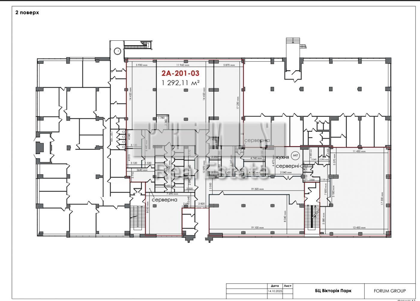
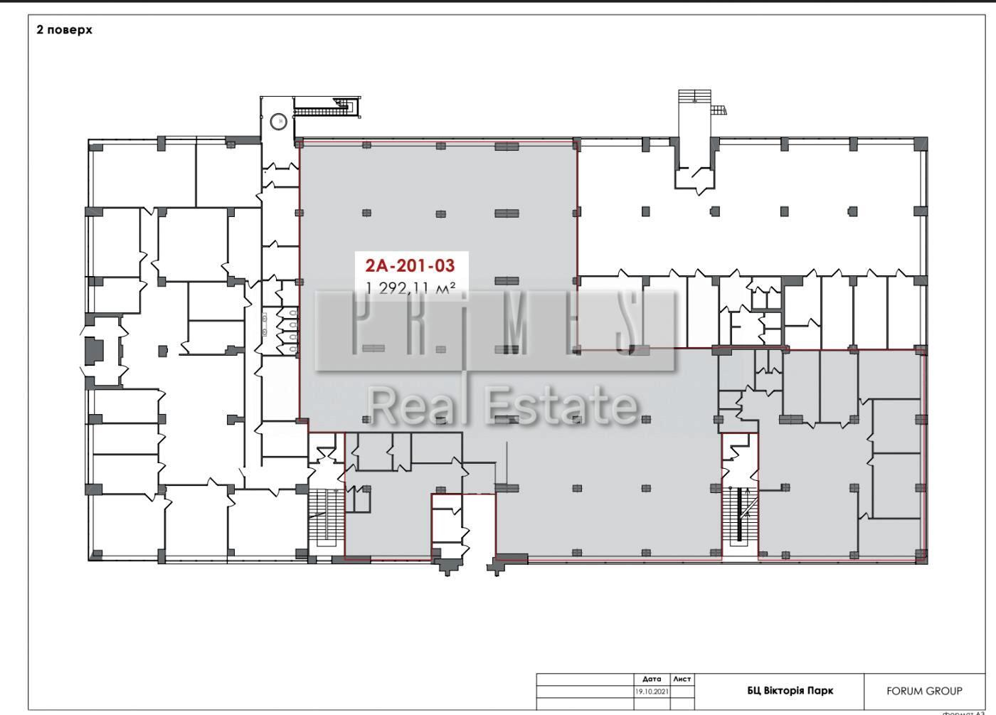
Пропонується в оренду офіс загальною площею 1 292 м² у бізнес-центрі Вікторія Парк класу B, корпус 1, другий поверх, приміщення.
Локація: перевулок Охтирський, 7 (перетин з вул. Максимовича). Від станції метро "Васильківська" 700 м (до 10 хвилин пішки), від ст. м. "Лібідська" курсує трансфер.

Характеристика офісу:
Кабінетна система планування;
Переговорні кімнати;
Простора зона рецепції;
Санвузол;
Ремонт;
Розташування на іншому поверсі.
Інженерні системи:
Автономне опалення;
Безперебійне електропостачання (генератор);
Автономне водопостачання та каналізація;
Мультизональна система кондиціонування та вентиляції;
Високошвидкісний інтернет та телефонія;
Система відеоспостереження;
Протипожежна безпека;
Доступ до приміщення 24/7;
Контроль пропускного режиму;
Цілодобова охорона.
Інфраструктура бізнес-комплексу:
Вишукане лобі з двоповерховим атріумом;
Стильні лаунж-зони у холах корпусів;
2 кавярні та столова;
Затишний дворик із ландшафтним дизайном;
Зона укриття;
Паркінг на 340 авто, стоянка для велосипедів, зарядні станції для електрокарів;
Банкомат та термінал;
Поштомат Нова Пошта;
Кімната для йоги, вуличні тренажери у зеленій зоні;
Зоні відпочинку з BBQ-беседками та пінг-понг столом.

Зв'яжіться з нами вже сьогодні, щоб домовитися про перегляд та дізнатися більше!
Ваш новий офіс на відстані одного дзвінка.
#33172
Деталі
Об'єкт комерційної нерухомості, Клас A, Офісний центр, Офісне приміщення. Об'єкт на 2 поверсі, У будівлі 4 поверхи. У приміщенні 6 кімнат або більше. Безбар'єрність: паркувальні місця для осіб з інвалідністю. Комісія за послуги 50 %
PRIMES
Верифікований профіль
2
Роки досвіду
6
Місяців на сайті
Активних оголошень 275
Ексклюзивних об'єктів 0
Рекламна активність 0
Останній візит на сайт вчора
Рекомендувати
Адреса
Вашу скаргу прийнято!
Оберіть спосіб підтвердження
Щоб вашу рекомендацію було зараховано, підтвердіть свою особистість
* Особисті дані не відображатимуться на сайті та слугуватимуть лише для підтвердження особистості.
Як верифікуватись через Дію?
Зчитайте QR-код сканером у застосунку Дія й підтвердьте авторизацію Дія.Підписом
QR-код буде дійсний ще 02:00
Як верифікуватись через Bankid?
Верифікація BankID відкриється у новому вікні. Якщо сторінка верифікації не відкрилася, вікно було заблоковане вашим браузером.
Щоб дозволити відкриття вікна, виконайте такі кроки:

1. Перевірте адресний рядок браузера на повідомлення про помилку або піктограму блокування. Натисніть на нього.
2. Якщо у вас встановлено блокувальник спливаючих вікон, тимчасово відключіть його для цього сайту.
3. Перевірте налаштування вашого браузера і переконайтеся, що блокування спливаючих вікон вимкнено або налаштовано на дозвіл відкриття цього вікна.

Якщо проблема залишається невирішеною, зверніться до нашої служби підтримки.
Як верифікуватись через Дію?
Верифікація Дія відкриється у новому вікні. Якщо сторінка верифікації не відкрилася, вікно було заблоковане вашим браузером.
Щоб дозволити відкриття вікна, виконайте такі кроки:

1. Перевірте адресний рядок браузера на повідомлення про помилку або піктограму блокування. Натисніть на нього.
2. Якщо у вас встановлено блокувальник спливаючих вікон, тимчасово відключіть його для цього сайту.
3. Перевірте налаштування вашого браузера і переконайтеся, що блокування спливаючих вікон вимкнено або налаштовано на дозвіл відкриття цього вікна.

Якщо проблема залишається невирішеною, зверніться до нашої служби підтримки.
Вітаємо!
Рекомендацію зараховано!
Незабаром рекомендація зʼявиться на сторінці рієлтора.
Рекомендацію не зараховано.
Ви вже залишали рекомендацію даному рієлтору.
В пропозиції є незбережені дані.