3 500 $/міс
15
$/м²
торгівельне приміщення, приміщення вільного призначення, приміщення для надання послуг, офісне приміщення, банківське приміщення
240 м²
2015 рік побудови
1 тиж. тому
2 міс. тому
7 (сьогодні 1,
вчора 0)
Опис
№ 33873
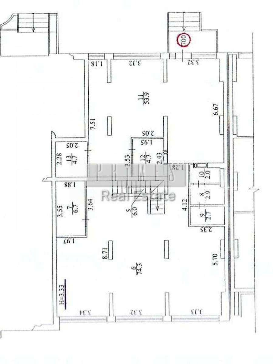
Оренда офісного приміщення на вул. Степана Рудницького 19/14 корпу 1Б, приміщень - 3, поверх - 1. Нежитлове фасадне дворівневе приміщення в Голосіївському районі (Теремки-2) в ЖК «Венеція» по вулиці Степана Рудницького (Вільямса), 19/14. Загальна площа 240 метри. Окремий фасадний вхід і вхід з двору. Великі фасадні вітрини з фасаду та з двору. У приміщенні зроблено ремонт і воно повністю готове до експлуатації. Потужність електрики 40 кВт. Наявність окремого вентиляційного каналу з виходом на дах. Опалення центральне зі встановленими лічильниками тепла або за допомогою теплових насосів. У приміщенні встановлено пожежну та охоронну сигналізацію, систему відеоспостереження. 95 % - корисна площа. 1) Перший поверх - 79 метрів. Фасадний окремий вхід і вітрини. Висота стелі 3, 7 метра. Open space. Санвузол. 2) Другий поверх - 161 метр. Висота стелі 3, 55 метра. Вхід по сходах з першого рівня та окремий вхід з двору. Три великі фасадні вітрини з фасаду приміщення і три вітрини з двору приміщення. Область застосування: 1) Магазин, торгове приміщення, салон краси. 2) Офісне, банк. 3) Ресторан, кафе.
Оренда офісного приміщення на вул. Степана Рудницького 19/14 корпу 1Б, приміщень - 3, поверх - 1. Нежитлове фасадне дворівневе приміщення в Голосіївському районі (Теремки-2) в ЖК «Венеція» по вулиці Степана Рудницького (Вільямса), 19/14. Загальна площа 240 метри. Окремий фасадний вхід і вхід з двору. Великі фасадні вітрини з фасаду та з двору. У приміщенні зроблено ремонт і воно повністю готове до експлуатації. Потужність електрики 40 кВт. Наявність окремого вентиляційного каналу з виходом на дах. Опалення центральне зі встановленими лічильниками тепла або за допомогою теплових насосів. У приміщенні встановлено пожежну та охоронну сигналізацію, систему відеоспостереження. 95 % - корисна площа. 1) Перший поверх - 79 метрів. Фасадний окремий вхід і вітрини. Висота стелі 3, 7 метра. Open space. Санвузол. 2) Другий поверх - 161 метр. Висота стелі 3, 55 метра. Вхід по сходах з першого рівня та окремий вхід з двору. Три великі фасадні вітрини з фасаду приміщення і три вітрини з двору приміщення. Область застосування: 1) Магазин, торгове приміщення, салон краси. 2) Офісне, банк. 3) Ресторан, кафе.
Деталі
Об'єкт комерційної нерухомості, Приміщення в житловому будинку, Банківське приміщення, Офісне приміщення, Приміщення для надання послуг, Приміщення вільного призначення, Торгівельне приміщення. Будинок побудований в 2015 році. Комісія за послуги 50 %

































