4 500 $/міс
30
$/м²
офісне приміщення
150 м²
2020 рік побудови
3 тиж. тому
3 міс. тому
3 (сьогодні 0,
вчора 0)
Опис
Оренда офісного приміщення на 30 поверсі за адресою вул. Драгомирова, 17 у житловому комплексі Новопечерські Липки.
Приміщення загальною площею 150 м2 з двома террасами загальною площею 200 м2 з дизайнерським ремонтом.
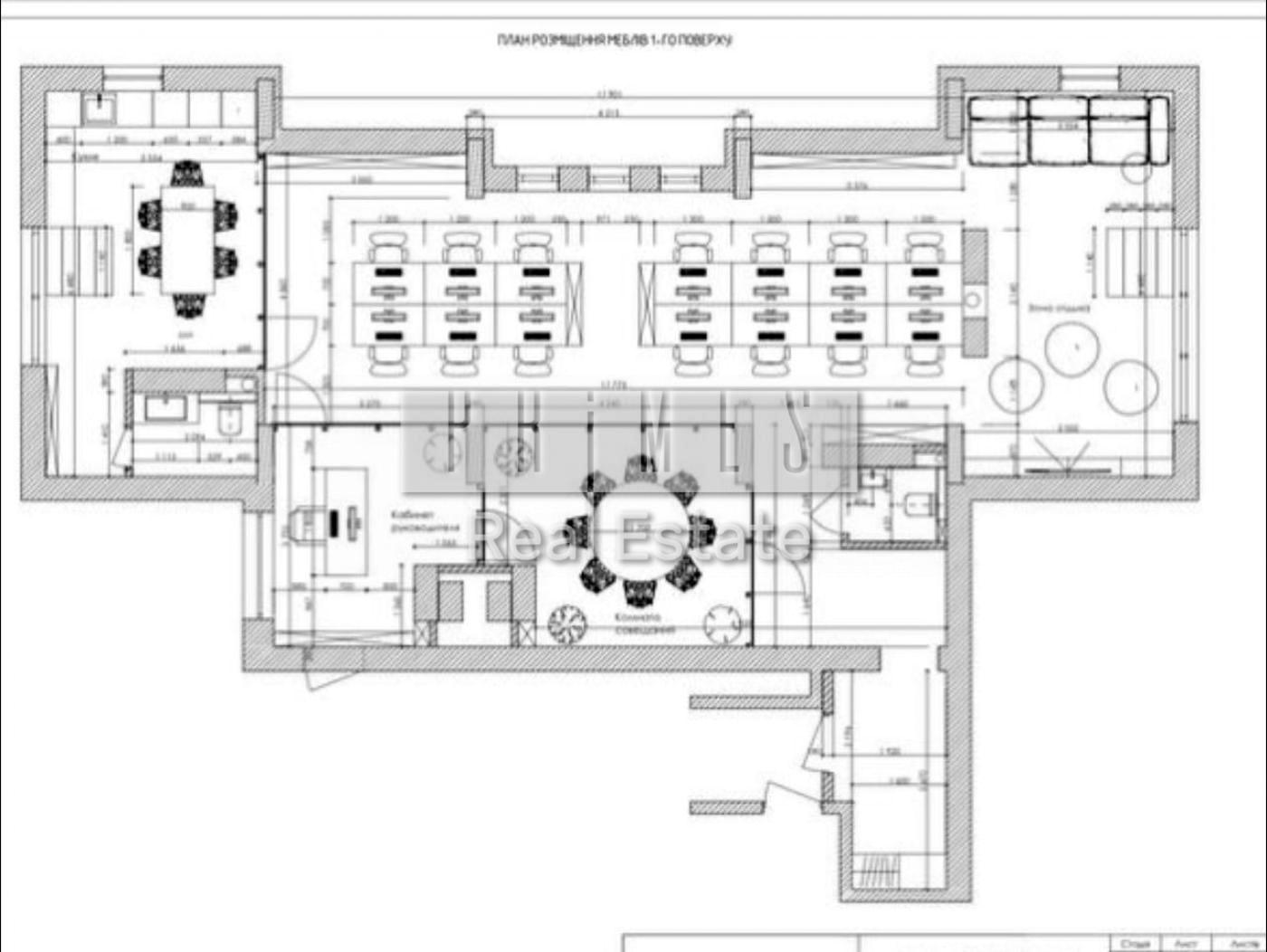
Опенспейс у центральній частині та два окремі кабінети, кухня, два санвузли. Розведено під різні варіації кількості робочих місць.
З вікон та тераси відкривається чудовий краєвид на Дніпро, Лавру, краєвиди міста.
Є підземний паркінг, вхід до офісного приміщення з окремою вхідною групою та ліфтом.
Система безперебійного живлення на ліфт, встановлена індивідуально для офісу.
Є можливість збільшити потужність і підключити офіс, при умові збільшення орендної плати до 5000 долларів США.
Високошвидкісний інтернет, два локальні провайдери.
В офісі все продумано до дрібниць.
Центральне опалення кондиціонер у кожному кабінеті.
М'який куточок, крісла-мішки, чайний столик та м'яке підвіконня під панорамними окнами для вечірнього чаювання.
Приміщення загальною площею 150 м2 з двома террасами загальною площею 200 м2 з дизайнерським ремонтом.
Опенспейс у центральній частині та два окремі кабінети, кухня, два санвузли. Розведено під різні варіації кількості робочих місць.
З вікон та тераси відкривається чудовий краєвид на Дніпро, Лавру, краєвиди міста.
Є підземний паркінг, вхід до офісного приміщення з окремою вхідною групою та ліфтом.
Система безперебійного живлення на ліфт, встановлена індивідуально для офісу.
Є можливість збільшити потужність і підключити офіс, при умові збільшення орендної плати до 5000 долларів США.
Високошвидкісний інтернет, два локальні провайдери.
В офісі все продумано до дрібниць.
Центральне опалення кондиціонер у кожному кабінеті.
М'який куточок, крісла-мішки, чайний столик та м'яке підвіконня під панорамними окнами для вечірнього чаювання.
Деталі
Об'єкт комерційної нерухомості, Приміщення в житловому будинку, Офісне приміщення. Об'єкт на 29 поверсі, У будівлі 29 поверхів. Будинок побудований в 2020 році. У приміщенні 4 кімнати. Комісія за послуги 50 %

| Активних оголошень | 37 |
| Ексклюзивних об'єктів | 0 |
| Рекламна активність | 19817 |
| Останній візит на сайт | 2 дні тому |
Рекомендувати
















































