12 500 $/міс
54  $/м²
офісне приміщення
230 м²
1 тиж. тому
2 міс. тому
3 (сьогодні 0, вчора 0)
Опис
Оренда офісу

Запрошуємо вас ознайомитися з унікальною можливістю оренди офысу прямо в серці Києва! Це приміщення розташоване в престижному Печерському районі за адресою вулиця Еспланадна, 32В і має великий потенціал для бізнесу.

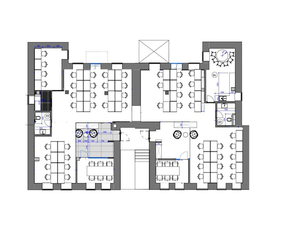
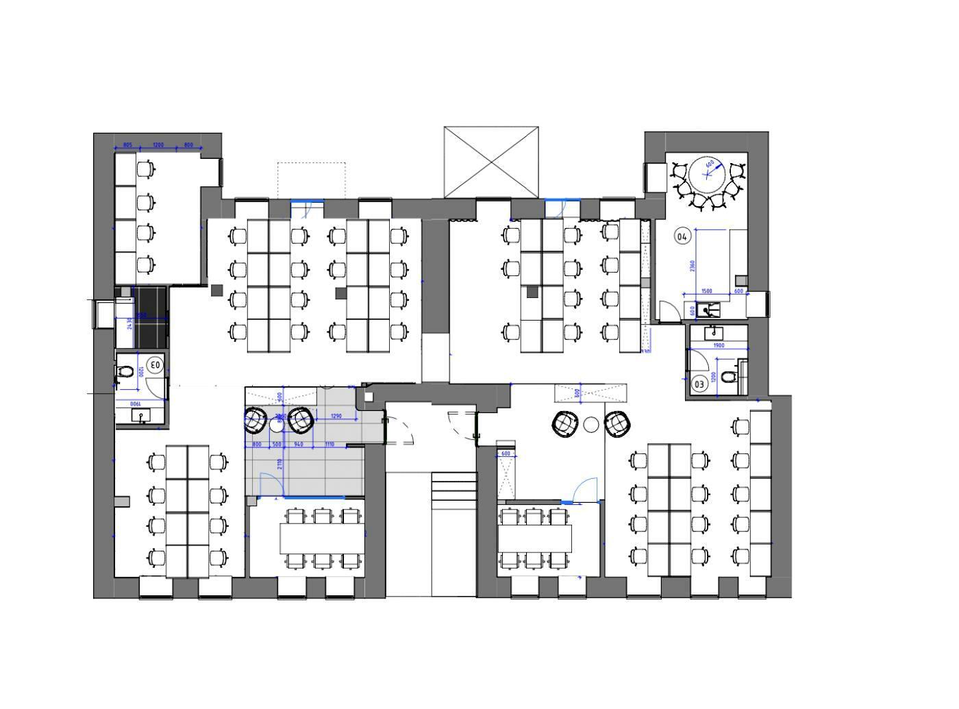
Офіс розпланований на 25 орендних місць

Загальна площа —230 м2
Висота стель — 3.6 м
Поверх — 4/6

Функціональне планування:
- рецепшн;
- 2 кабінети по 6 робочих місць (загалом 12);
- 1 кабінет на 9 робочих місць;
- кімната для перемовин на 8 осіб;
- кабінет директора;
- кухня;
- кімната для відпочинку;
- 2 санвузли.

Це не бізнес центр, а окремо стояча будівля. Площа ділянки — 8 соток. Власна закрита територія має парковку на 14 автомобілів, яка входить у власність, забезпечує зручність для вашої команди та клієнтів.

Будівля складається з 6 поверхів, високого цоколя та мансарди, що створює можливість для широкого спектру використання. Кожен поверх поділений на два крила, обладнаних опенспейсами, переговорними кімнатами, кабінетом директора, зонами кухні та санвузлами. Всього 11 офісних приміщень, що дозволяє гнучко організувати робочий простір.

Комунікації:
• Заведено 60 кВт потужності на 3 фази.
• Централізоване опалення, вода і каналізація.

Наразі будівля перебуває в процесі ремонту, який буде завершено протягом 6 місяців (можливо реалізувати проєкт раніше). Це дає вам унікальну можливість адаптувати приміщення під ваші потреби та вимоги. Будівля має повністю реконструйований фасад та залізобетонне перекриття.

Об’єкт розташований в пішій доступності від ТРЦ Gulliver, Палацу спорту, метро “Площа Українських Героїв” та Бессарабського Ринку.

На фото візуалізація готового фасаду та можливих реалізацій всередині!

Перегляди за домовленістю в будь-який зручний для вас час.

#A16108
Деталі
Об'єкт комерційної нерухомості, Частина будівлі, Офісне приміщення. Комісія за послуги 50 %
THE Capital
Верифікований профіль
8
Років досвіду
13
Верифікованих рекомендацій
4
Роки на сайті
Активних оголошень 390
Ексклюзивних об'єктів 0
Рекламна активність 198200
Останній візит на сайт вчора
Рекомендувати
Адреса
Вашу скаргу прийнято!
Оберіть спосіб підтвердження
Щоб вашу рекомендацію було зараховано, підтвердіть свою особистість
* Особисті дані не відображатимуться на сайті та слугуватимуть лише для підтвердження особистості.
Як верифікуватись через Дію?
Зчитайте QR-код сканером у застосунку Дія й підтвердьте авторизацію Дія.Підписом
QR-код буде дійсний ще 02:00
Як верифікуватись через Bankid?
Верифікація BankID відкриється у новому вікні. Якщо сторінка верифікації не відкрилася, вікно було заблоковане вашим браузером.
Щоб дозволити відкриття вікна, виконайте такі кроки:

1. Перевірте адресний рядок браузера на повідомлення про помилку або піктограму блокування. Натисніть на нього.
2. Якщо у вас встановлено блокувальник спливаючих вікон, тимчасово відключіть його для цього сайту.
3. Перевірте налаштування вашого браузера і переконайтеся, що блокування спливаючих вікон вимкнено або налаштовано на дозвіл відкриття цього вікна.

Якщо проблема залишається невирішеною, зверніться до нашої служби підтримки.
Як верифікуватись через Дію?
Верифікація Дія відкриється у новому вікні. Якщо сторінка верифікації не відкрилася, вікно було заблоковане вашим браузером.
Щоб дозволити відкриття вікна, виконайте такі кроки:

1. Перевірте адресний рядок браузера на повідомлення про помилку або піктограму блокування. Натисніть на нього.
2. Якщо у вас встановлено блокувальник спливаючих вікон, тимчасово відключіть його для цього сайту.
3. Перевірте налаштування вашого браузера і переконайтеся, що блокування спливаючих вікон вимкнено або налаштовано на дозвіл відкриття цього вікна.

Якщо проблема залишається невирішеною, зверніться до нашої служби підтримки.
Вітаємо!
Рекомендацію зараховано!
Незабаром рекомендація зʼявиться на сторінці рієлтора.
Рекомендацію не зараховано.
Ви вже залишали рекомендацію даному рієлтору.
В пропозиції є незбережені дані.