2 280 $/міс
12  $/м²
офісне приміщення
190 м²
2003 рік побудови
6 днів тому
1 міс. тому
8 (сьогодні 0, вчора 0)
Опис
БЕЗ КОМІСІЇ!
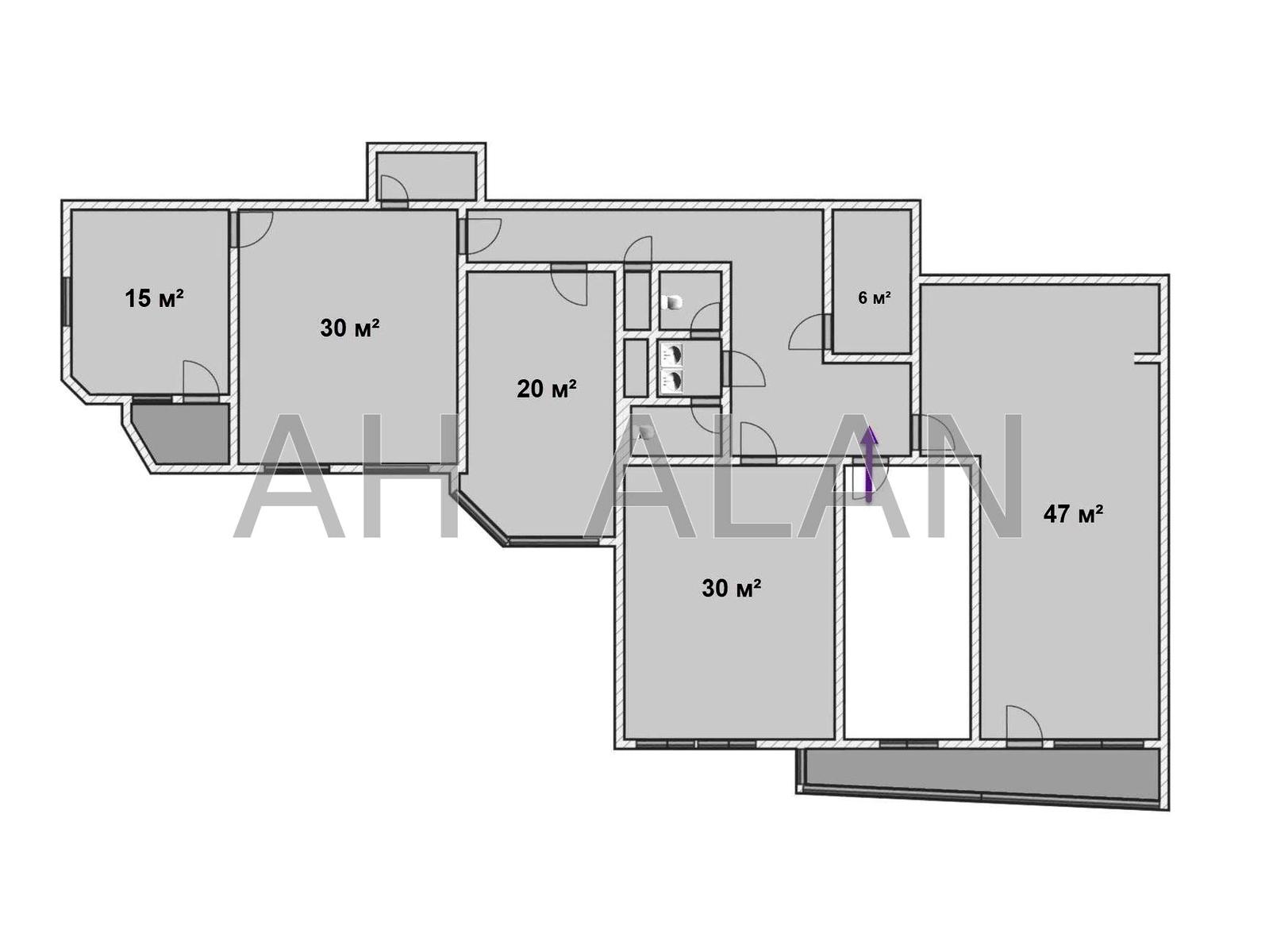
Пропонується в оренду офісне приміщення, розташоване на вулиці Провіантській. Загальна площа офісу — 190 м². Об’єкт знаходиться на третьому поверсі житлового будинку (нежитловий фонд).
Планування: п’ять кабінетів, міні-кухня, два санвузли, два балкони, серверна кімната та підсобне приміщення з технічним краном і можливістю підключення посудомийної машини.
Офіс обладнаний системами кондиціонування, пожежної та охоронної сигналізації, міні-АТС, заведено оптоволоконний інтернет. У будівлі забезпечена цілодобова фізична охорона. Комунальні послуги оплачуються додатково.
Деталі
Об'єкт комерційної нерухомості, Приміщення в житловому будинку, Офісне приміщення. Об'єкт на 3 поверсі, У будівлі 25 поверхів. Будинок побудований в 2003 році. У приміщенні 5 кімнат. Без комісії
ALAN
Верифікований профіль
9
Років досвіду
1
Верифікована рекомендація
3
Роки на сайті
Активних оголошень 147
Ексклюзивних об'єктів 0
Рекламна активність 5682
Останній візит на сайт сьогодні
Рекомендувати
Адреса
Вашу скаргу прийнято!
Оберіть спосіб підтвердження
Щоб вашу рекомендацію було зараховано, підтвердіть свою особистість
* Особисті дані не відображатимуться на сайті та слугуватимуть лише для підтвердження особистості.
Як верифікуватись через Дію?
Зчитайте QR-код сканером у застосунку Дія й підтвердьте авторизацію Дія.Підписом
QR-код буде дійсний ще 02:00
Як верифікуватись через Bankid?
Верифікація BankID відкриється у новому вікні. Якщо сторінка верифікації не відкрилася, вікно було заблоковане вашим браузером.
Щоб дозволити відкриття вікна, виконайте такі кроки:

1. Перевірте адресний рядок браузера на повідомлення про помилку або піктограму блокування. Натисніть на нього.
2. Якщо у вас встановлено блокувальник спливаючих вікон, тимчасово відключіть його для цього сайту.
3. Перевірте налаштування вашого браузера і переконайтеся, що блокування спливаючих вікон вимкнено або налаштовано на дозвіл відкриття цього вікна.

Якщо проблема залишається невирішеною, зверніться до нашої служби підтримки.
Як верифікуватись через Дію?
Верифікація Дія відкриється у новому вікні. Якщо сторінка верифікації не відкрилася, вікно було заблоковане вашим браузером.
Щоб дозволити відкриття вікна, виконайте такі кроки:

1. Перевірте адресний рядок браузера на повідомлення про помилку або піктограму блокування. Натисніть на нього.
2. Якщо у вас встановлено блокувальник спливаючих вікон, тимчасово відключіть його для цього сайту.
3. Перевірте налаштування вашого браузера і переконайтеся, що блокування спливаючих вікон вимкнено або налаштовано на дозвіл відкриття цього вікна.

Якщо проблема залишається невирішеною, зверніться до нашої служби підтримки.
Вітаємо!
Рекомендацію зараховано!
Незабаром рекомендація зʼявиться на сторінці рієлтора.
Рекомендацію не зараховано.
Ви вже залишали рекомендацію даному рієлтору.
В пропозиції є незбережені дані.