20 400 $/міс
12
$/м²
приміщення вільного призначення, приміщення для надання послуг, офісне приміщення, банківське приміщення
1700 м²
1 тиж. тому
2 міс. тому
5 (сьогодні 0,
вчора 0)
Опис
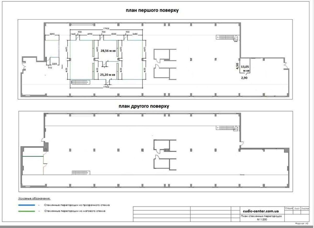
Оренда офісу 1700 м.2, в сучасному БЦ з генератором, власне укриття, котельня, дві станції метро 'Політехнічний інститут', 'Лукьнівська' в пішій доступності. БЦ має сучасні інженерні системи, 4 ліфта, припливно-витяжна вентиляція, оптоволоконні лінії звязку, швидкісний інтернет (5 провайдерів на вибір). Опалення та ГВП автономне. Електроенергія без перебою, генератор. Укриття в підземному паркінгу. Забезпечимо цілодобовою фізичною охороною: працює пропускна система, відеоспостереження, пожежна сигналізація. Дворівневе офісне приміщення в стилі Loft — сучасний інтер’єр з естетикою відкритих просторів, що надихає на продуктивність. Офіс на 1-му поверсі, в гарному стані, кабінети з скляними перегородками, open space, власні с/в із встановленим сучасним сантехнічним обладнанням, 4 (чотири) відкриті міні кухні з меблями. Приміщення здається без меблів, але є можливість обладнати приміщення меблями (оренда меблів за домовленістю, в залежності від комплектації). Планування: Площа: 1-й поверх + 2-й рівень = 1712,00 кв.м. (відповідно 1000,00 м кв + 712,00 м кв). Оренда: еквівалент 12 $/м2+ПДВ (курс НБУ) , ОРЕХ включено , додатково тільки електроенергія. Коефіцієнт загальних приміщень не застосовується. Пропозиція без комісії для орендаря.
Деталі
Об'єкт комерційної нерухомості, Офісний центр, Банківське приміщення, Офісне приміщення, Приміщення для надання послуг, Приміщення вільного призначення. Об'єкт на 1 поверсі, У будівлі 6 поверхів. Приміщення вільного планування. Без комісії



















