10 500 $/міс
7  $/м²
приміщення для надання послуг, офісне приміщення
1466 м²
2013 рік побудови
6 днів тому
1 міс. тому
3 (сьогодні 0, вчора 1)
Опис
Оренда офісного приміщення в офісно-складському комплексі
Солом’янський район, м. Київ

Пропонується в оренду просторий офіс у сучасному офісно-складському комплексі з вигідним та зручним розташуванням. Територія комплексу обладнана великою кількістю паркомісць, забезпечена цілодобовою охороною та системою відеоспостереження.
Наявне бомбосховище. Встановлено генератор, який забезпечує роботу ліфтів та зон загального користування.

Характеристики об’єкта:
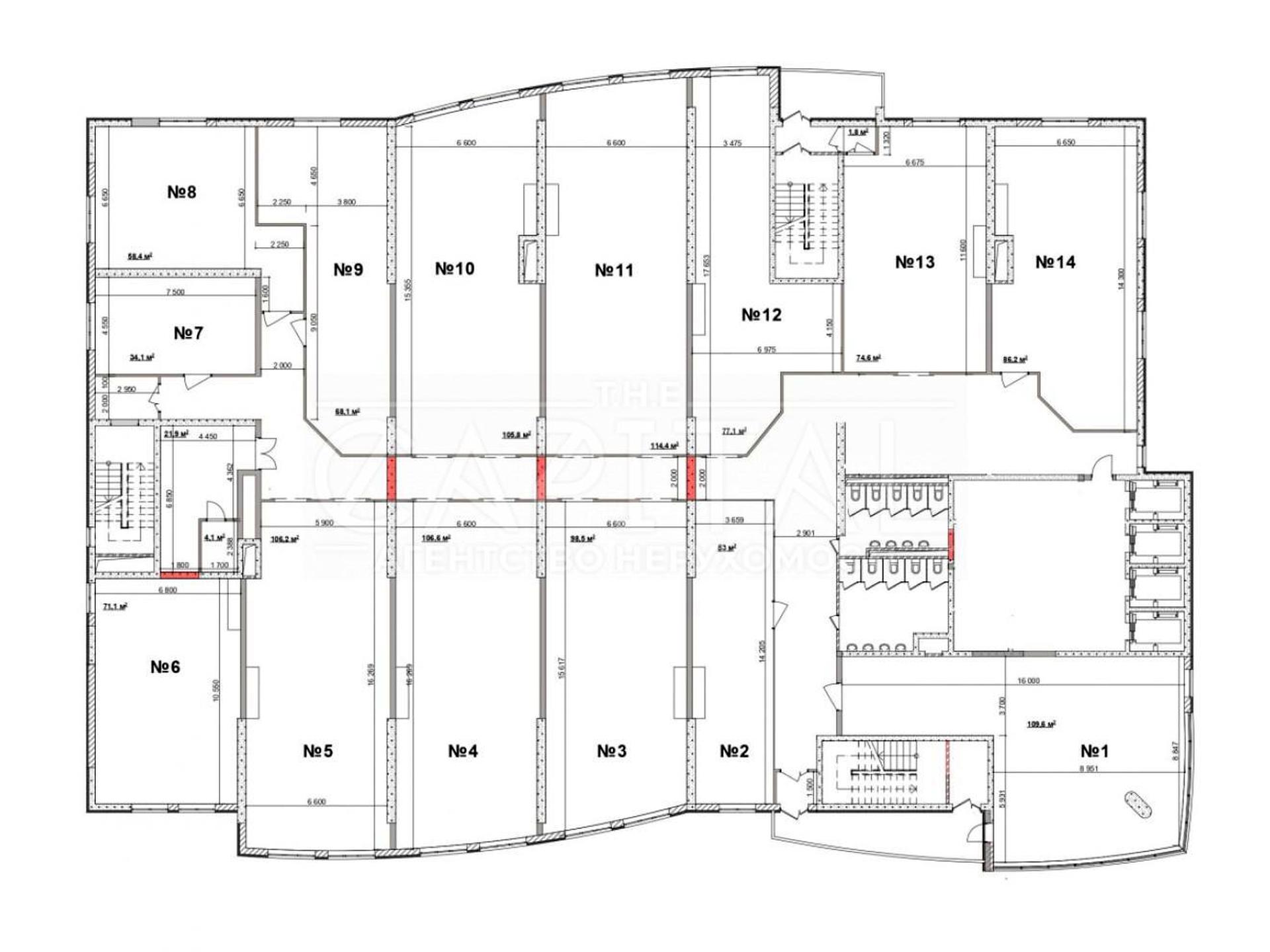
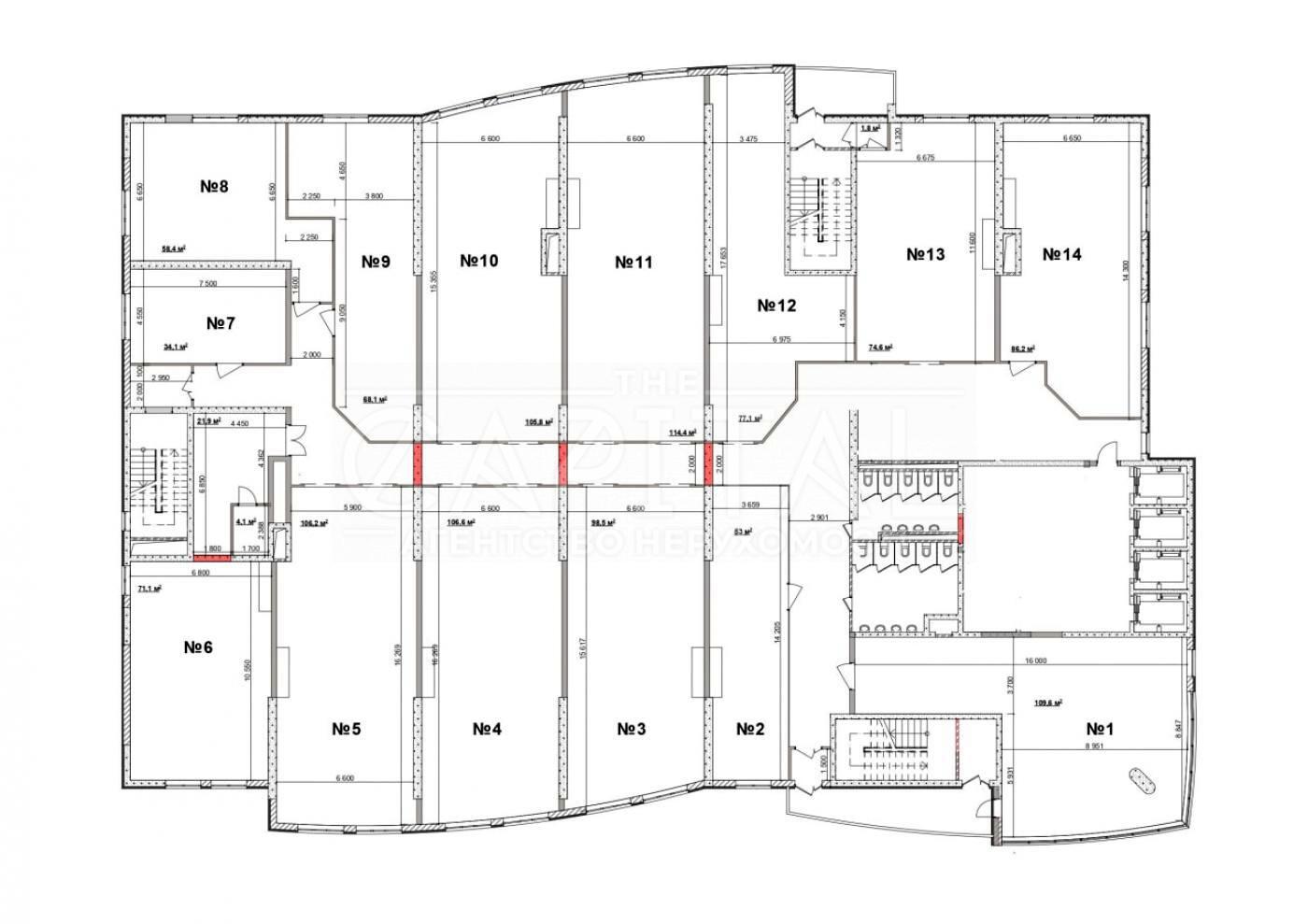
• Загальна площа офісу: 1 466 м²
• Система опалення: кондиціонери
• Стан приміщення: офісне, завершуються косметичні роботи

Фінансові умови:
• Орендна ставка: 220 грн/м² з ПДВ
• Експлуатаційні витрати: 75 грн/м² з ПДВ
• Комунальні платежі: за фактичним споживанням

Комунальні платежі за місця загального користування:
• Водопостачання — 1,5 грн/м² з ПДВ
(не нараховується за наявності власної «мокрої точки» в приміщенні)
• Загальне освітлення — 9,9 грн/м² з ПДВ

Загальна вартість оренди з додатковими платежами становить 449 200 грн місяць.

Умови оплати:
• При підписанні договору сплачується 1 авансовий та 1 гарантійний платіж
(оренда + експлуатаційні витрати)
• Щомісячна оплата здійснюється авансом до 15 числа поточного місяця за наступний
• Комунальні платежі коригуються за фактом споживання відповідно до Акту

Умови розірвання договору:
• У разі дострокового розірвання — попередження за 2 місяці
Деталі
Об'єкт комерційної нерухомості, Приміщення в офісному центрі, Офісне приміщення, Приміщення для надання послуг. Об'єкт на 9 поверсі, У будівлі 14 поверхів. Будинок побудований в 2013 році. У приміщенні 6 кімнат або більше. Комісія за послуги 50 %
THE Capital
Верифікований профіль
4
Роки досвіду
8
Місяців на сайті
Активних оголошень 167
Ексклюзивних об'єктів 0
Рекламна активність 596
Останній візит на сайт вчора
Рекомендувати
Адреса
Вашу скаргу прийнято!
Оберіть спосіб підтвердження
Щоб вашу рекомендацію було зараховано, підтвердіть свою особистість
* Особисті дані не відображатимуться на сайті та слугуватимуть лише для підтвердження особистості.
Як верифікуватись через Дію?
Зчитайте QR-код сканером у застосунку Дія й підтвердьте авторизацію Дія.Підписом
QR-код буде дійсний ще 02:00
Як верифікуватись через Bankid?
Верифікація BankID відкриється у новому вікні. Якщо сторінка верифікації не відкрилася, вікно було заблоковане вашим браузером.
Щоб дозволити відкриття вікна, виконайте такі кроки:

1. Перевірте адресний рядок браузера на повідомлення про помилку або піктограму блокування. Натисніть на нього.
2. Якщо у вас встановлено блокувальник спливаючих вікон, тимчасово відключіть його для цього сайту.
3. Перевірте налаштування вашого браузера і переконайтеся, що блокування спливаючих вікон вимкнено або налаштовано на дозвіл відкриття цього вікна.

Якщо проблема залишається невирішеною, зверніться до нашої служби підтримки.
Як верифікуватись через Дію?
Верифікація Дія відкриється у новому вікні. Якщо сторінка верифікації не відкрилася, вікно було заблоковане вашим браузером.
Щоб дозволити відкриття вікна, виконайте такі кроки:

1. Перевірте адресний рядок браузера на повідомлення про помилку або піктограму блокування. Натисніть на нього.
2. Якщо у вас встановлено блокувальник спливаючих вікон, тимчасово відключіть його для цього сайту.
3. Перевірте налаштування вашого браузера і переконайтеся, що блокування спливаючих вікон вимкнено або налаштовано на дозвіл відкриття цього вікна.

Якщо проблема залишається невирішеною, зверніться до нашої служби підтримки.
Вітаємо!
Рекомендацію зараховано!
Незабаром рекомендація зʼявиться на сторінці рієлтора.
Рекомендацію не зараховано.
Ви вже залишали рекомендацію даному рієлтору.
В пропозиції є незбережені дані.