3 213 $/міс
21  $/м²
офісне приміщення
153 м²
1 тиж. тому
1 тиж. тому
2 (сьогодні 0, вчора 0)
Опис
#27856
Оренда стильного офісу біля самого серця Воздвиженки - історичного району з сучасною енергією.
Просторий офіс з панорамними окнами, власною террасою з краєвидом на Поділ та якісним ремонтом. Ідеально підходить для IT-компанії, шоуруму, креативної студії чи представництва.

Характеристики:
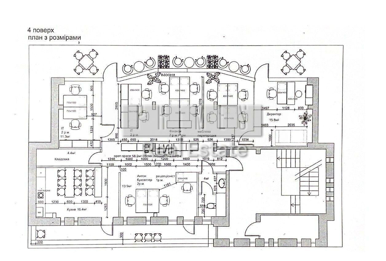
- Площа: 153 м
- Поверх: 4 ​​із 4 (без ліфта)
- Планування: 2 окремі кабінети open-space
- Окремий санвузол та комора
- Простора тераса з видом на Воздвиженку балкон на внутрішній двор
- Панорамні вікна
- Парковка біля будівлі та вдоль вулиці

Інженерні рішення:
- Кондиціонування, вентиляція, інтернет
- Тепловий насос для опалення та охолодження - суттєва економія на комунальних витратах
- Генератор - офіс залишається автономним навіть у разі вимкнення електроенергії
- Можливість підключення сигналізації та відеоспостереження

Будівля: 2020 року. Усі комунікації - нові, працюють справно.
Поруч кав'ярні, ресторани, спортзал ЄБШ. Тихий квартал, де поєднуються житлові будинки та сучасні офіси.

Приміщення вільне та доступне до переглядів.
Мінімальний строк оренди: 12 місяців
Умови: 19 $/м 2 $/м експлуатаційні витрати комунальні за лічильниками
Деталі
Об'єкт комерційної нерухомості, Частина будівлі, Офісне приміщення. Об'єкт на 4 поверсі, У будівлі 4 поверхи. Комісія за послуги 50 %
PRIMES
Верифікований профіль
3
Роки досвіду
2
Місяці на сайті
Активних оголошень 732
Ексклюзивних об'єктів 0
Рекламна активність 0
Останній візит на сайт сьогодні
Рекомендувати
Адреса
Вашу скаргу прийнято!
Оберіть спосіб підтвердження
Щоб вашу рекомендацію було зараховано, підтвердіть свою особистість
* Особисті дані не відображатимуться на сайті та слугуватимуть лише для підтвердження особистості.
Як верифікуватись через Дію?
Зчитайте QR-код сканером у застосунку Дія й підтвердьте авторизацію Дія.Підписом
QR-код буде дійсний ще 02:00
Як верифікуватись через Bankid?
Верифікація BankID відкриється у новому вікні. Якщо сторінка верифікації не відкрилася, вікно було заблоковане вашим браузером.
Щоб дозволити відкриття вікна, виконайте такі кроки:

1. Перевірте адресний рядок браузера на повідомлення про помилку або піктограму блокування. Натисніть на нього.
2. Якщо у вас встановлено блокувальник спливаючих вікон, тимчасово відключіть його для цього сайту.
3. Перевірте налаштування вашого браузера і переконайтеся, що блокування спливаючих вікон вимкнено або налаштовано на дозвіл відкриття цього вікна.

Якщо проблема залишається невирішеною, зверніться до нашої служби підтримки.
Як верифікуватись через Дію?
Верифікація Дія відкриється у новому вікні. Якщо сторінка верифікації не відкрилася, вікно було заблоковане вашим браузером.
Щоб дозволити відкриття вікна, виконайте такі кроки:

1. Перевірте адресний рядок браузера на повідомлення про помилку або піктограму блокування. Натисніть на нього.
2. Якщо у вас встановлено блокувальник спливаючих вікон, тимчасово відключіть його для цього сайту.
3. Перевірте налаштування вашого браузера і переконайтеся, що блокування спливаючих вікон вимкнено або налаштовано на дозвіл відкриття цього вікна.

Якщо проблема залишається невирішеною, зверніться до нашої служби підтримки.
Вітаємо!
Рекомендацію зараховано!
Незабаром рекомендація зʼявиться на сторінці рієлтора.
Рекомендацію не зараховано.
Ви вже залишали рекомендацію даному рієлтору.
В пропозиції є незбережені дані.