1 340 $/міс
335  $/м²
приміщення вільного призначення
4 м²
1994 рік побудови
6 днів тому
6 днів тому
0 (сьогодні 0, вчора 0)
Опис
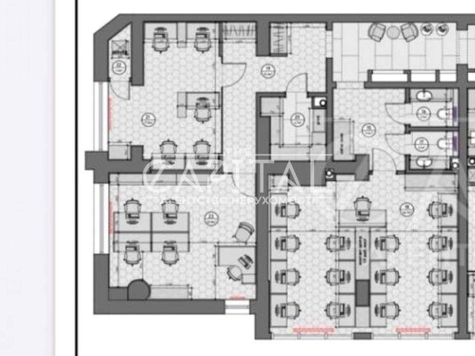
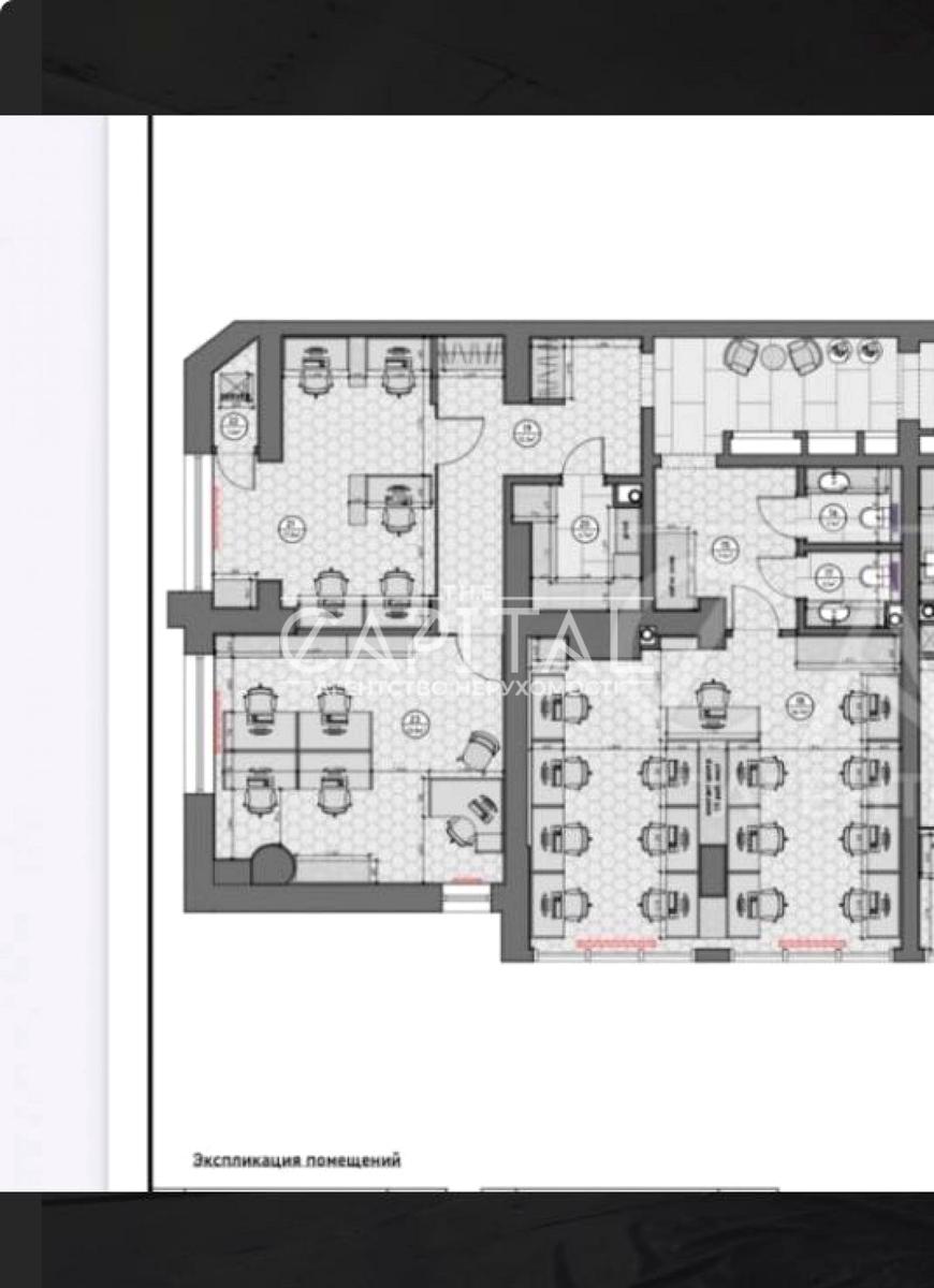
Здається в оренду частина офісу 134м2 з кабінетною системою під чистове оздоблення в новому ЖК Smart Plaza Obolon. Офіс розташований у пішій доступності до метро Мінська та має зручну транспортну розв'язку. Офісний блок знаходиться в будівлі з розвиненою інфраструктурою житлового комплексу, де є торгові площі та ресторани. Кабінетна система дозволяє орендарю організувати зручний простір для роботи та комфортного перебування співробітників. Офіс має загальну площу 294 кв.м. та підходить для різних видів діяльності. Він знаходиться на 5 поверсі будівлі та має свій вихід на прогулянкову терасу ЖК. Частина яка пропонується має площу 134м2 Офіс надається під чистове оздоблення, що дозволяє орендарю створити свою унікальну робочу обстановку. Є можливість орендувати приміщення частково. Не пропустіть можливість орендувати офіс з кабінетною системою в новому ЖК Smart Plaza Obolon. Зв'яжіться з нами для отримання додаткової інформації та організації перегляду. A 1 2 3 6 5

Артикул: #A12365
Деталі
Об'єкт комерційної нерухомості, Приміщення в житловому будинку, Приміщення вільного призначення. Об'єкт на 6 поверсі, У будівлі 9 поверхів. Є електрика. Будинок побудований в 1994 році. Поруч є супермаркет, кафе, ресторан. Комісія за послуги 50 %
THE Capital
Верифікований профіль
3
Роки досвіду
2
Роки на сайті
Активних оголошень 710
Ексклюзивних об'єктів 0
Рекламна активність 285
Останній візит на сайт сьогодні
Рекомендувати
Адреса
Вашу скаргу прийнято!
Оберіть спосіб підтвердження
Щоб вашу рекомендацію було зараховано, підтвердіть свою особистість
* Особисті дані не відображатимуться на сайті та слугуватимуть лише для підтвердження особистості.
Як верифікуватись через Дію?
Зчитайте QR-код сканером у застосунку Дія й підтвердьте авторизацію Дія.Підписом
QR-код буде дійсний ще 02:00
Як верифікуватись через Bankid?
Верифікація BankID відкриється у новому вікні. Якщо сторінка верифікації не відкрилася, вікно було заблоковане вашим браузером.
Щоб дозволити відкриття вікна, виконайте такі кроки:

1. Перевірте адресний рядок браузера на повідомлення про помилку або піктограму блокування. Натисніть на нього.
2. Якщо у вас встановлено блокувальник спливаючих вікон, тимчасово відключіть його для цього сайту.
3. Перевірте налаштування вашого браузера і переконайтеся, що блокування спливаючих вікон вимкнено або налаштовано на дозвіл відкриття цього вікна.

Якщо проблема залишається невирішеною, зверніться до нашої служби підтримки.
Як верифікуватись через Дію?
Верифікація Дія відкриється у новому вікні. Якщо сторінка верифікації не відкрилася, вікно було заблоковане вашим браузером.
Щоб дозволити відкриття вікна, виконайте такі кроки:

1. Перевірте адресний рядок браузера на повідомлення про помилку або піктограму блокування. Натисніть на нього.
2. Якщо у вас встановлено блокувальник спливаючих вікон, тимчасово відключіть його для цього сайту.
3. Перевірте налаштування вашого браузера і переконайтеся, що блокування спливаючих вікон вимкнено або налаштовано на дозвіл відкриття цього вікна.

Якщо проблема залишається невирішеною, зверніться до нашої служби підтримки.
Вітаємо!
Рекомендацію зараховано!
Незабаром рекомендація зʼявиться на сторінці рієлтора.
Рекомендацію не зараховано.
Ви вже залишали рекомендацію даному рієлтору.
В пропозиції є незбережені дані.