приміщення вільного призначення, приміщення для надання послуг, офісне приміщення
508 м²
сьогодні
1 тиж. тому
4 (сьогодні 2, вчора 0)
Опис
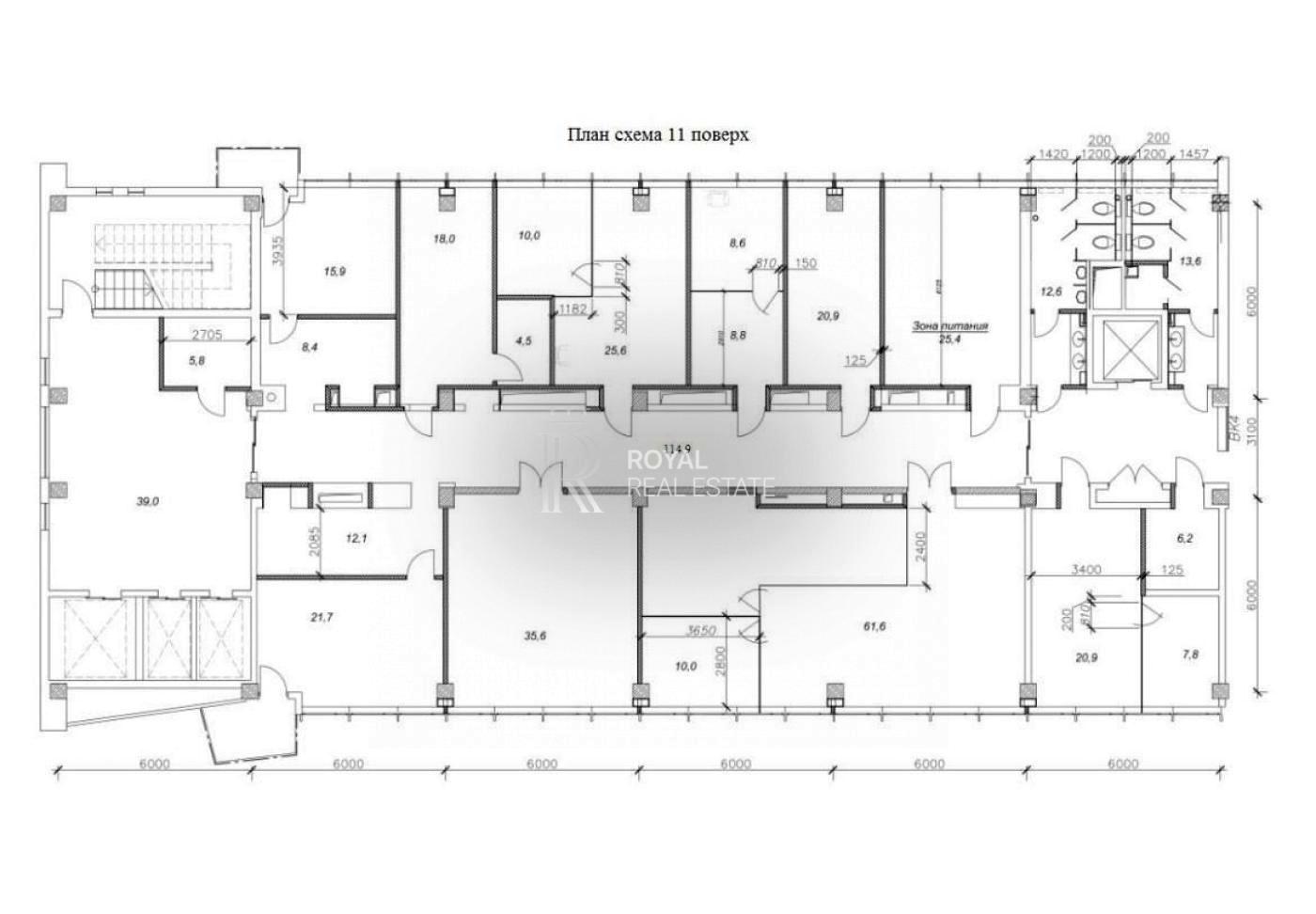
Оренда офісного приміщення що розташовано на 10 поверсі, за адресою Шота Руставелі 39/41.
Площа - 508 кв.м
Характеристики :
•Кабінетна система
• Функціональні зони загального користування (гардеробні, кухні)
• Сучасні інженерні системи
• Кімнати перемовин для проведення зустрічей та нарад
• Система контролю доступу
На території БЦ власний кейтерінг-сервіс «MR PRESIDENT», обладнане укриття на -1 поверсі.

Ціна - 10 000 у.о
Додатково комунальні послуги

RR 1 7012
Деталі
Об'єкт комерційної нерухомості, Приміщення в офісному центрі, Офісне приміщення, Приміщення для надання послуг, Приміщення вільного призначення. Об'єкт на 11 поверсі, У будівлі 14 поверхів. У приміщенні 6 кімнат або більше. Комісія за послуги 50 %
Royal Real Estate
Верифікований профіль
2
Роки досвіду
1
Тиждень на сайті
Активних оголошень 24
Ексклюзивних об'єктів 0
Рекламна активність 20273
Останній візит на сайт сьогодні
Рекомендувати
Адреса
Вашу скаргу прийнято!
Оберіть спосіб підтвердження
Щоб вашу рекомендацію було зараховано, підтвердіть свою особистість
* Особисті дані не відображатимуться на сайті та слугуватимуть лише для підтвердження особистості.
Як верифікуватись через Дію?
Зчитайте QR-код сканером у застосунку Дія й підтвердьте авторизацію Дія.Підписом
QR-код буде дійсний ще 02:00
Як верифікуватись через Bankid?
Верифікація BankID відкриється у новому вікні. Якщо сторінка верифікації не відкрилася, вікно було заблоковане вашим браузером.
Щоб дозволити відкриття вікна, виконайте такі кроки:

1. Перевірте адресний рядок браузера на повідомлення про помилку або піктограму блокування. Натисніть на нього.
2. Якщо у вас встановлено блокувальник спливаючих вікон, тимчасово відключіть його для цього сайту.
3. Перевірте налаштування вашого браузера і переконайтеся, що блокування спливаючих вікон вимкнено або налаштовано на дозвіл відкриття цього вікна.

Якщо проблема залишається невирішеною, зверніться до нашої служби підтримки.
Як верифікуватись через Дію?
Верифікація Дія відкриється у новому вікні. Якщо сторінка верифікації не відкрилася, вікно було заблоковане вашим браузером.
Щоб дозволити відкриття вікна, виконайте такі кроки:

1. Перевірте адресний рядок браузера на повідомлення про помилку або піктограму блокування. Натисніть на нього.
2. Якщо у вас встановлено блокувальник спливаючих вікон, тимчасово відключіть його для цього сайту.
3. Перевірте налаштування вашого браузера і переконайтеся, що блокування спливаючих вікон вимкнено або налаштовано на дозвіл відкриття цього вікна.

Якщо проблема залишається невирішеною, зверніться до нашої служби підтримки.
Вітаємо!
Рекомендацію зараховано!
Незабаром рекомендація зʼявиться на сторінці рієлтора.
Рекомендацію не зараховано.
Ви вже залишали рекомендацію даному рієлтору.
В пропозиції є незбережені дані.