5 182 $/міс
18  $/м²
офісне приміщення
293.4 м²
вчора
вчора
1 (сьогодні 0, вчора 1)
Опис
#26606
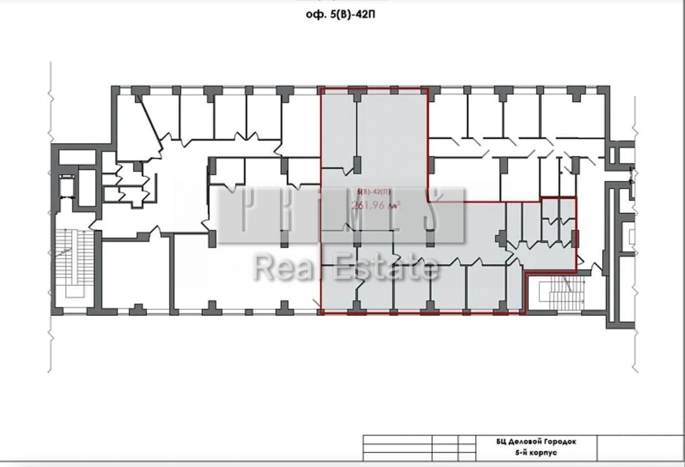
Оренда офісу 261, 96 м² у Бізнес-центрі Форум Груп «Ділове містечко» (корпус 5, поверх 4, офіс 5В-42
Локація:
м. Київ, вул. Пимоненка, 13
________________________________________
Характеристика офісу:
Загальна площа 261, 96 м², розрахункова 293, 40 м²
Планування: змішане
Поверх 4
Світле просторе приміщення з панорамними вікнами на три сторони
Білофарбовані стіни, ковролін на підлозі, підвісна стеля Armstrong
Радіаторне опалення
________________________________________
Інженерні системи та комунікації:
Автономне опалення
Дизель-генератор (забезпечує повну автономність електропостачання)
Автономне водопостачання та каналізація
Мультізональна система вентиляції та кондиціонування
Високошвидкісний інтернет, телефонія
Система відеоспостереження
Сучасні швидкісні ліфти KONE
Доступ 24/7
Контроль доступу та цілодобова охорона
Система протипожежної безпеки
________________________________________
Переваги Business City:
Стильні лаунж-зони у холах
2 кавярні, їдальня
Просторе укриття
Паркінг на 430 авто, стоянка для велосипедів, зарядки для електрокарів
Банкомат, термінал, поштомат Нової Пошти
Затишний внутрішній дворик із BBQ-зоною та альтанками
Вуличні тренажери, йога-кімната
Спортстудія FitFacty та клуб Spt&Spa з програмами лояльності
Кабінети остеопата та стоматолога
Безкоштовний сучасний конференц-зал для резидентів
________________________________________
Звертайтеся за додатковою інформацією підберемо оптимальне приміщення саме для вас!
Форум Груп ваш надійний партнер у світі комерційної нерухомості.
Деталі
Об'єкт комерційної нерухомості, Клас B, Приміщення в офісному центрі, Офісне приміщення. Об'єкт на 4 поверсі, У будівлі 5 поверхів. У приміщенні 6 кімнат або більше. Комісія за послуги 50 %
PRIMES
Верифікований профіль
3
Роки досвіду
2
Місяці на сайті
Активних оголошень 732
Ексклюзивних об'єктів 0
Рекламна активність 0
Останній візит на сайт вчора
Рекомендувати
Адреса
Вашу скаргу прийнято!
Оберіть спосіб підтвердження
Щоб вашу рекомендацію було зараховано, підтвердіть свою особистість
* Особисті дані не відображатимуться на сайті та слугуватимуть лише для підтвердження особистості.
Як верифікуватись через Дію?
Зчитайте QR-код сканером у застосунку Дія й підтвердьте авторизацію Дія.Підписом
QR-код буде дійсний ще 02:00
Як верифікуватись через Bankid?
Верифікація BankID відкриється у новому вікні. Якщо сторінка верифікації не відкрилася, вікно було заблоковане вашим браузером.
Щоб дозволити відкриття вікна, виконайте такі кроки:

1. Перевірте адресний рядок браузера на повідомлення про помилку або піктограму блокування. Натисніть на нього.
2. Якщо у вас встановлено блокувальник спливаючих вікон, тимчасово відключіть його для цього сайту.
3. Перевірте налаштування вашого браузера і переконайтеся, що блокування спливаючих вікон вимкнено або налаштовано на дозвіл відкриття цього вікна.

Якщо проблема залишається невирішеною, зверніться до нашої служби підтримки.
Як верифікуватись через Дію?
Верифікація Дія відкриється у новому вікні. Якщо сторінка верифікації не відкрилася, вікно було заблоковане вашим браузером.
Щоб дозволити відкриття вікна, виконайте такі кроки:

1. Перевірте адресний рядок браузера на повідомлення про помилку або піктограму блокування. Натисніть на нього.
2. Якщо у вас встановлено блокувальник спливаючих вікон, тимчасово відключіть його для цього сайту.
3. Перевірте налаштування вашого браузера і переконайтеся, що блокування спливаючих вікон вимкнено або налаштовано на дозвіл відкриття цього вікна.

Якщо проблема залишається невирішеною, зверніться до нашої служби підтримки.
Вітаємо!
Рекомендацію зараховано!
Незабаром рекомендація зʼявиться на сторінці рієлтора.
Рекомендацію не зараховано.
Ви вже залишали рекомендацію даному рієлтору.
В пропозиції є незбережені дані.