1 875 $/міс
15  $/м²
приміщення вільного призначення, приміщення для надання послуг, офісне приміщення
125 м²
2004 рік побудови
сьогодні
5 днів тому
0 (сьогодні 0, вчора 0)
Опис
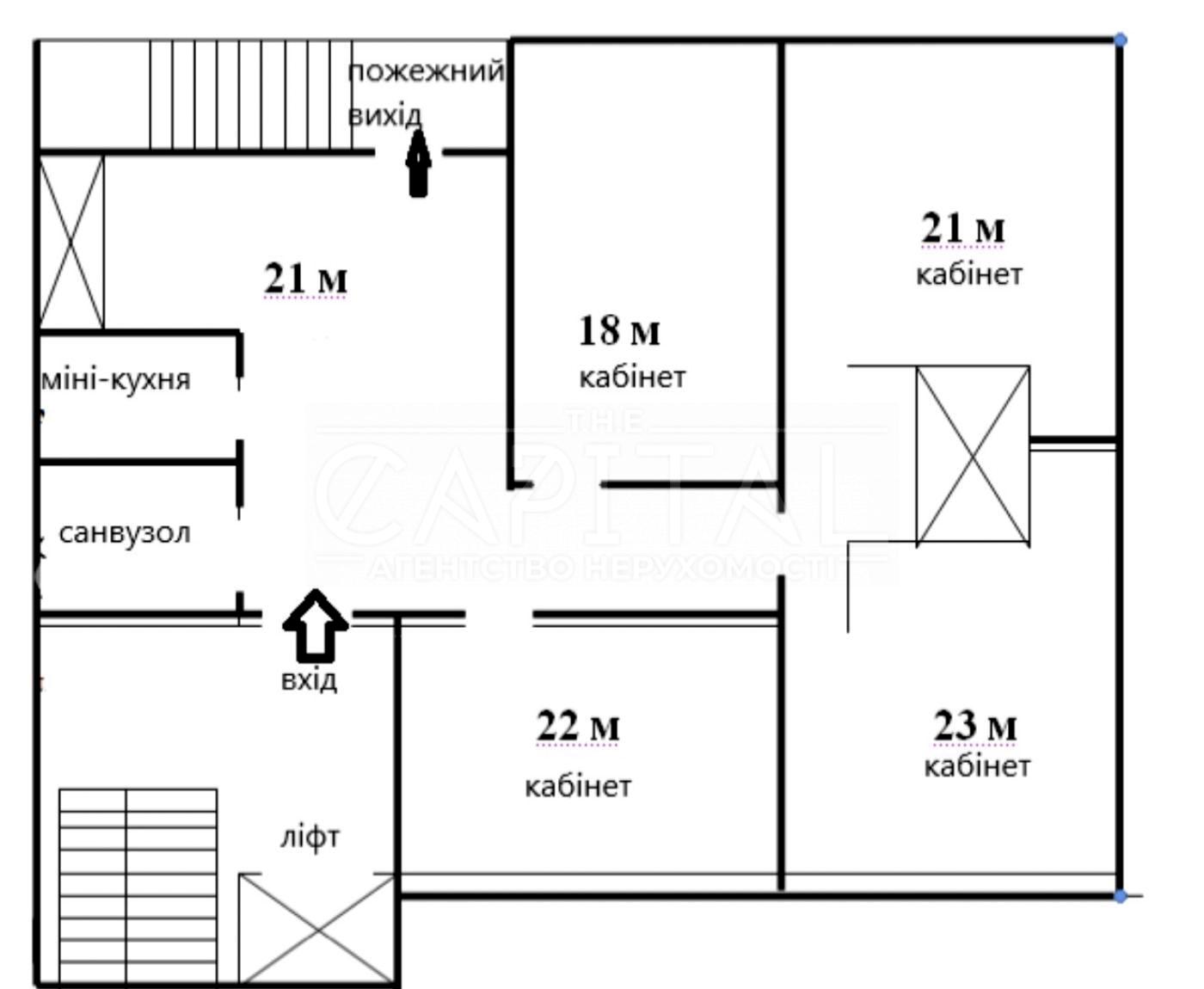
Оренда сучасного офісу в престижній локації — вул. Предславинська, 31/11.

Пропонується функціональний офіс площею 125 м² у діловому центрі Києва. Ідеальний варіант для компанії, яка цінує комфорт, безпеку та зручне розташування.

Планування:
• 4 окремі кабінети
• простора зона reception для зустрічі клієнтів
• кухня для співробітників
• санвузол в офісі

Переваги:
• центральна система кондиціонування по всьому приміщенню (вбудована в стелю)
• охоронна сигналізація
• пожежна сигналізація
• встановлені вогнегасники
• комфортний офісний формат для роботи команди

Локація:
Престижний район із розвиненою інфраструктурою, зручний доїзд, поруч метро, бізнес-центри, ресторани та вся необхідна інфраструктура.

Офіс готовий до заїзду та роботи.
Телефонуйте для перегляду та деталей.

A29826
Деталі
Об'єкт комерційної нерухомості, Клас B, Приміщення в житловому будинку, Офісне приміщення, Приміщення для надання послуг, Приміщення вільного призначення. Об'єкт на 3 поверсі, У будівлі 20 поверхів. Будинок побудований в 2004 році. У приміщенні 4 кімнати. Комісія за послуги 50 %
THE Capital
Верифікований профіль
3
Роки досвіду
6
Місяців на сайті
Активних оголошень 215
Ексклюзивних об'єктів 0
Рекламна активність 4709
Останній візит на сайт сьогодні
Рекомендувати
Адреса
Вашу скаргу прийнято!
Оберіть спосіб підтвердження
Щоб вашу рекомендацію було зараховано, підтвердіть свою особистість
* Особисті дані не відображатимуться на сайті та слугуватимуть лише для підтвердження особистості.
Як верифікуватись через Дію?
Зчитайте QR-код сканером у застосунку Дія й підтвердьте авторизацію Дія.Підписом
QR-код буде дійсний ще 02:00
Як верифікуватись через Bankid?
Верифікація BankID відкриється у новому вікні. Якщо сторінка верифікації не відкрилася, вікно було заблоковане вашим браузером.
Щоб дозволити відкриття вікна, виконайте такі кроки:

1. Перевірте адресний рядок браузера на повідомлення про помилку або піктограму блокування. Натисніть на нього.
2. Якщо у вас встановлено блокувальник спливаючих вікон, тимчасово відключіть його для цього сайту.
3. Перевірте налаштування вашого браузера і переконайтеся, що блокування спливаючих вікон вимкнено або налаштовано на дозвіл відкриття цього вікна.

Якщо проблема залишається невирішеною, зверніться до нашої служби підтримки.
Як верифікуватись через Дію?
Верифікація Дія відкриється у новому вікні. Якщо сторінка верифікації не відкрилася, вікно було заблоковане вашим браузером.
Щоб дозволити відкриття вікна, виконайте такі кроки:

1. Перевірте адресний рядок браузера на повідомлення про помилку або піктограму блокування. Натисніть на нього.
2. Якщо у вас встановлено блокувальник спливаючих вікон, тимчасово відключіть його для цього сайту.
3. Перевірте налаштування вашого браузера і переконайтеся, що блокування спливаючих вікон вимкнено або налаштовано на дозвіл відкриття цього вікна.

Якщо проблема залишається невирішеною, зверніться до нашої служби підтримки.
Вітаємо!
Рекомендацію зараховано!
Незабаром рекомендація зʼявиться на сторінці рієлтора.
Рекомендацію не зараховано.
Ви вже залишали рекомендацію даному рієлтору.
В пропозиції є незбережені дані.