7 790 $/міс
27  $/м²
офісне приміщення
289 м²
2005 рік побудови
2 дні тому
2 дні тому
1 (сьогодні 0, вчора 0)
Опис
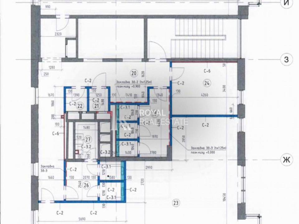
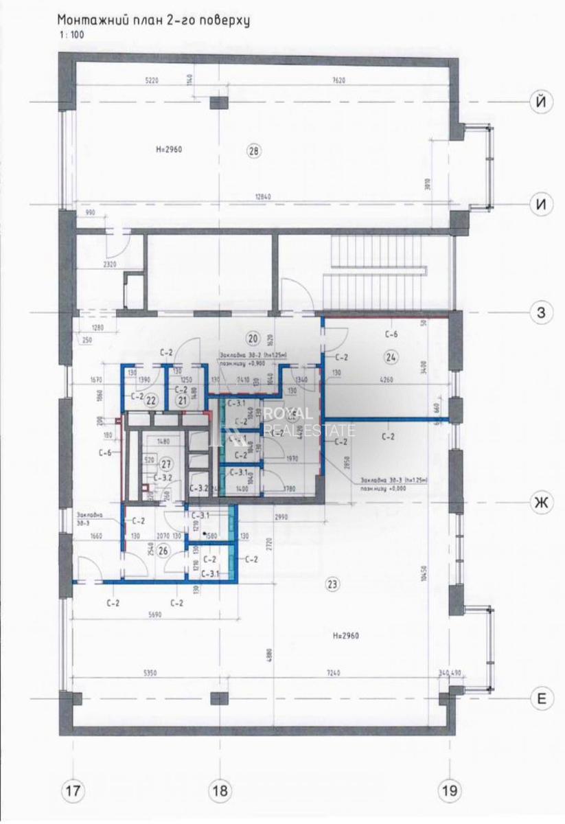
Оренда офісного приміщення площею 285,8 м2 у Центрі столиці.

Планування: має 2 просторі кабінети open-space, meeting-рум, call-рум, кухня, санвузли, гардеробна, ліфтовий хол.

Оренда меблів, що знаходяться в приміщеннях, можлива за окремим договором.

В офісі зроблено дизайнерський ремонт у 2021 році. Використані сучасні матеріали та передові технології. Центральна система кондиціювання Daikin (Японія), панорамні енергозберігаючі двокамерні вікна (Німеччина), сталеві радіатори KERMI (Німеччина), опалювальна система, сантехніка FLAMINIA, KLUDI, сучасна пропускна система TISO, протипожежна система, відеоспостереження, охорона.

Офіс має власний підземний паркінг на 18 паркомісця.

Генератор.

Найближча ст.м. - Університет 5 хв, ст.м. Площа Українських Героїв - 10 хв.

Загальні по поверхові суми в доларах США, що наведені нижче, включають в себе: орендну плату,
сервісні/експлуатаційні платежі, включаючи централізовану цілодобову охорону Будівлі.

Другий поверх: площа 285,8 м2 вартість оренди становить $7789,5 (сума вказана з ПДВ) та включає в себе: орендну плату,
сервісні/експлуатаційні платежі, включаючи централізовану цілодобову охорону Будівлі.

Комунальні послуги оплачуються окремо.
Витрати на зв’язок, Інтернет орендар замовляє та сплачує самостійно.

RR92
Деталі
Об'єкт комерційної нерухомості, Офісний центр, Офісне приміщення. Об'єкт на 2 поверсі, У будівлі 6 поверхів. Будинок побудований в 2005 році. У приміщенні 4 кімнати. Комісія за послуги 50 %
Royal Real Estate
Верифікований профіль
Silver partner
3
Роки досвіду
1
Рік на сайті
Активних оголошень 50
Ексклюзивних об'єктів 0
Рекламна активність 6137
Останній візит на сайт вчора
Рекомендувати
Адреса
Вашу скаргу прийнято!
Оберіть спосіб підтвердження
Щоб вашу рекомендацію було зараховано, підтвердіть свою особистість
* Особисті дані не відображатимуться на сайті та слугуватимуть лише для підтвердження особистості.
Як верифікуватись через Дію?
Зчитайте QR-код сканером у застосунку Дія й підтвердьте авторизацію Дія.Підписом
QR-код буде дійсний ще 02:00
Як верифікуватись через Bankid?
Верифікація BankID відкриється у новому вікні. Якщо сторінка верифікації не відкрилася, вікно було заблоковане вашим браузером.
Щоб дозволити відкриття вікна, виконайте такі кроки:

1. Перевірте адресний рядок браузера на повідомлення про помилку або піктограму блокування. Натисніть на нього.
2. Якщо у вас встановлено блокувальник спливаючих вікон, тимчасово відключіть його для цього сайту.
3. Перевірте налаштування вашого браузера і переконайтеся, що блокування спливаючих вікон вимкнено або налаштовано на дозвіл відкриття цього вікна.

Якщо проблема залишається невирішеною, зверніться до нашої служби підтримки.
Як верифікуватись через Дію?
Верифікація Дія відкриється у новому вікні. Якщо сторінка верифікації не відкрилася, вікно було заблоковане вашим браузером.
Щоб дозволити відкриття вікна, виконайте такі кроки:

1. Перевірте адресний рядок браузера на повідомлення про помилку або піктограму блокування. Натисніть на нього.
2. Якщо у вас встановлено блокувальник спливаючих вікон, тимчасово відключіть його для цього сайту.
3. Перевірте налаштування вашого браузера і переконайтеся, що блокування спливаючих вікон вимкнено або налаштовано на дозвіл відкриття цього вікна.

Якщо проблема залишається невирішеною, зверніться до нашої служби підтримки.
Вітаємо!
Рекомендацію зараховано!
Незабаром рекомендація зʼявиться на сторінці рієлтора.
Рекомендацію не зараховано.
Ви вже залишали рекомендацію даному рієлтору.
В пропозиції є незбережені дані.