18 000 $/міс
12  $/м²
офісне приміщення
1501 м²
вчора
вчора
2 (сьогодні 1, вчора 1)
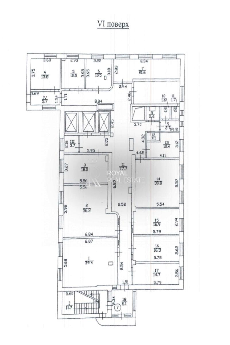
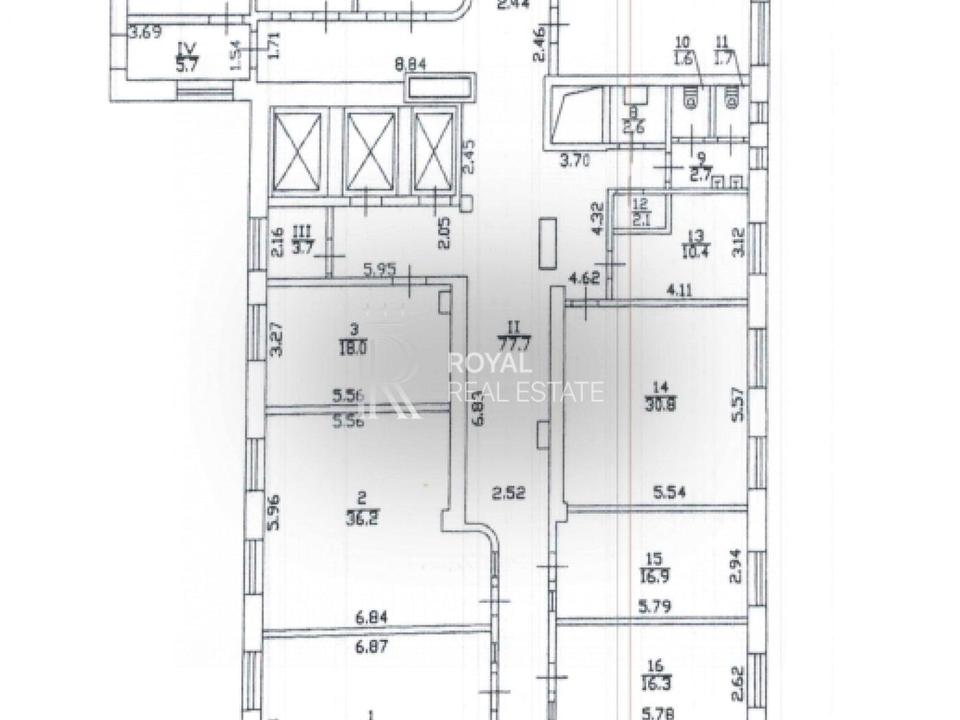
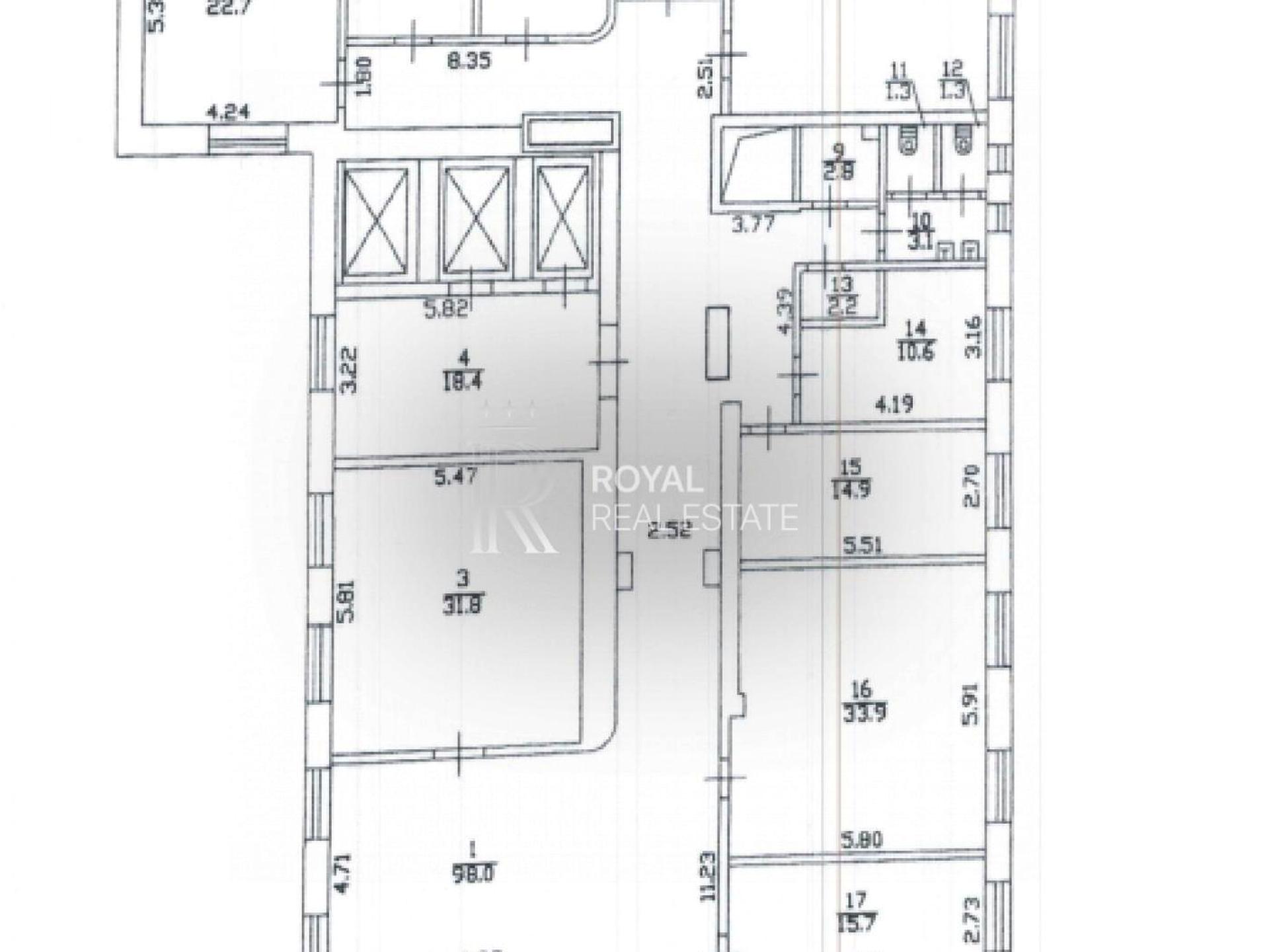
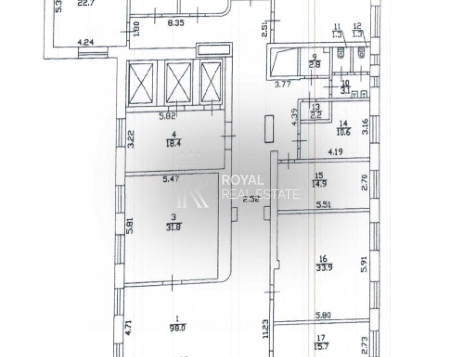
Опис
Фасадне комерційне приміщення в оренду в Печерському районі, бул. Міхновського, 38 (район метро Звіринецька, ~300 м). Об’єкт розташований у діловій частині Києва з активним пішохідним та автомобільним трафіком, поруч офіси великих компаній та інфраструктура.
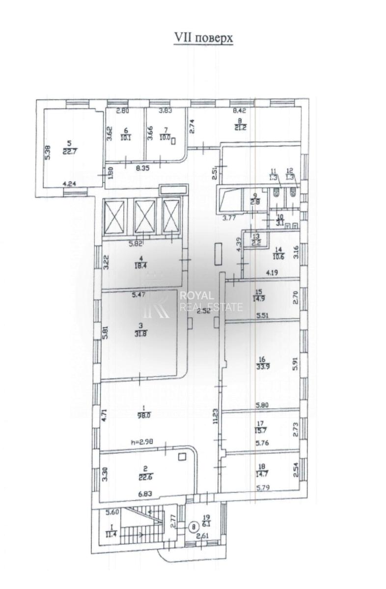
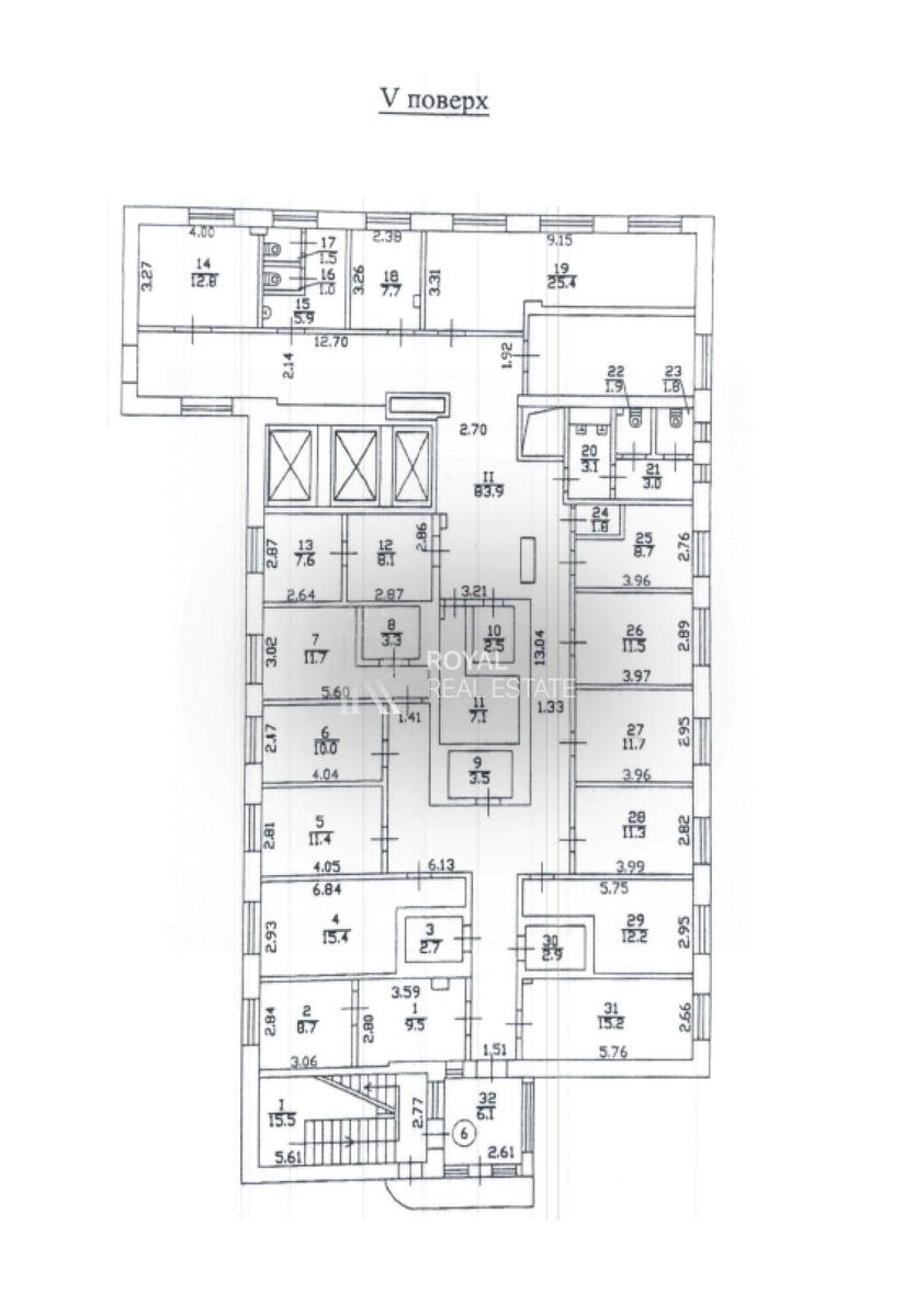
Приміщення займає 4 поверхи з кількома окремими фасадними входами, загальна площа — від 200 до 4000 м². Є кабінетне планування, що підходить під офіс, представництво або комерцію.
Стан — після орендаря (підлога ламінат/плитка, стеля амстронг/гіпсокартон). Об’єкт раніше використовувався як VIP-корпус банку (з депозитарієм, операційними залами та офісами).
Орендна ставка — 12 у.е./м² + ПДВ, коефіцієнт загальних площ — 1,2.
RR17273
Деталі
Об'єкт комерційної нерухомості, Приміщення в офісному центрі, Офісне приміщення. Об'єкт на 5 поверсі, У будівлі 7 поверхів. У приміщенні 6 кімнат або більше. Комісія за послуги 50 %
Royal Real Estate
Верифікований профіль
Silver partner
3
Роки досвіду
1
Рік на сайті
Активних оголошень 50
Ексклюзивних об'єктів 0
Рекламна активність 6137
Останній візит на сайт сьогодні
Рекомендувати
Адреса
Вашу скаргу прийнято!
Оберіть спосіб підтвердження
Щоб вашу рекомендацію було зараховано, підтвердіть свою особистість
* Особисті дані не відображатимуться на сайті та слугуватимуть лише для підтвердження особистості.
Як верифікуватись через Дію?
Зчитайте QR-код сканером у застосунку Дія й підтвердьте авторизацію Дія.Підписом
QR-код буде дійсний ще 02:00
Як верифікуватись через Bankid?
Верифікація BankID відкриється у новому вікні. Якщо сторінка верифікації не відкрилася, вікно було заблоковане вашим браузером.
Щоб дозволити відкриття вікна, виконайте такі кроки:

1. Перевірте адресний рядок браузера на повідомлення про помилку або піктограму блокування. Натисніть на нього.
2. Якщо у вас встановлено блокувальник спливаючих вікон, тимчасово відключіть його для цього сайту.
3. Перевірте налаштування вашого браузера і переконайтеся, що блокування спливаючих вікон вимкнено або налаштовано на дозвіл відкриття цього вікна.

Якщо проблема залишається невирішеною, зверніться до нашої служби підтримки.
Як верифікуватись через Дію?
Верифікація Дія відкриється у новому вікні. Якщо сторінка верифікації не відкрилася, вікно було заблоковане вашим браузером.
Щоб дозволити відкриття вікна, виконайте такі кроки:

1. Перевірте адресний рядок браузера на повідомлення про помилку або піктограму блокування. Натисніть на нього.
2. Якщо у вас встановлено блокувальник спливаючих вікон, тимчасово відключіть його для цього сайту.
3. Перевірте налаштування вашого браузера і переконайтеся, що блокування спливаючих вікон вимкнено або налаштовано на дозвіл відкриття цього вікна.

Якщо проблема залишається невирішеною, зверніться до нашої служби підтримки.
Вітаємо!
Рекомендацію зараховано!
Незабаром рекомендація зʼявиться на сторінці рієлтора.
Рекомендацію не зараховано.
Ви вже залишали рекомендацію даному рієлтору.
В пропозиції є незбережені дані.